
|
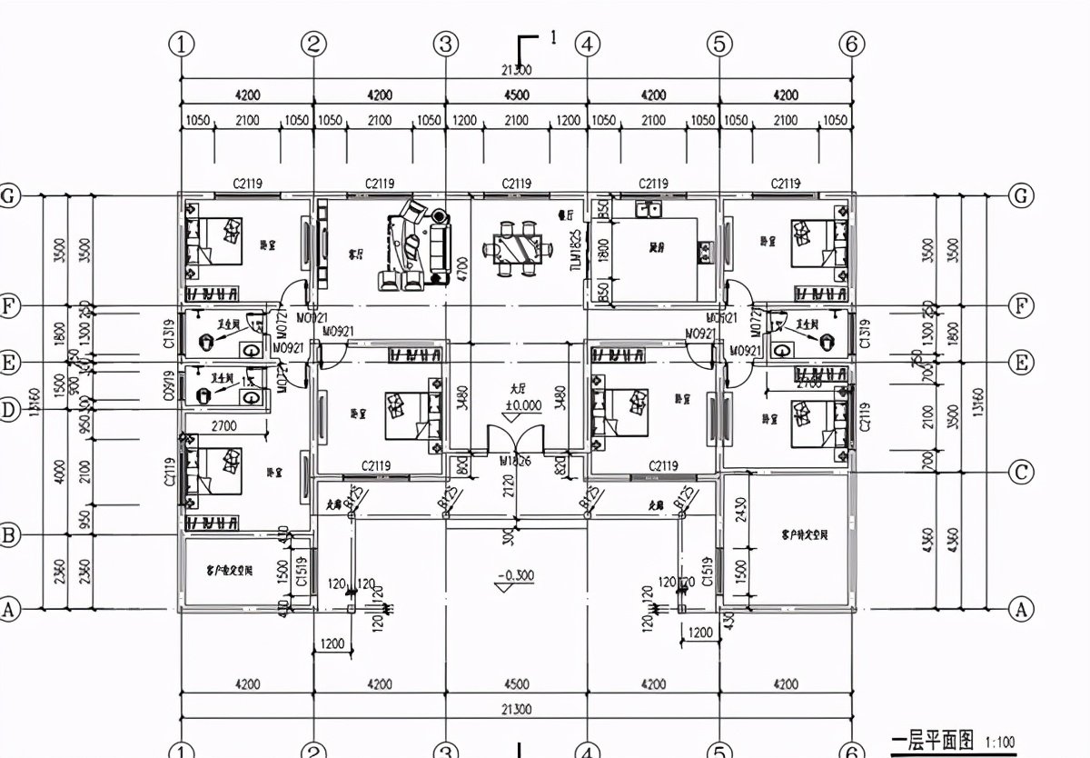
選一農村僻靜處,建一棟中式宅子,再規劃一個院子,夏賞花冬賞雪,過著瀟灑自在的生活,白墻灰瓦,古色古香,建在風光秀麗的農村,再合適不過了。今天小編就推薦三款一層中式四合院設計圖以及戶型圖,來看看吧! 第一款:一層三合院自建房屋設計圖以及戶型圖,外觀古樸洋氣![]() ![]() ![]() 這款別墅戶型實用。不僅住著舒服,而且造價經濟實惠,適合回農村養老。 占地面積:21.3m*13.1m,230平方米左右; 建筑層高:一層; 建筑高度:6.4米(含屋頂); 設計功能:過廳、客廳、餐廳、廚房、主臥(帶衛生間)、臥室×5、衛生間×2、客戶待定空間 ![]() 第二款:農村中式一層三合院自建房設計圖以及戶型圖,妙搭中式庭院![]() 頤養天年,設計師以客廳為中心點,并在兩側布置了臥室。客廳南北通透,室內空間較為開朗開闊,并且在靠近窗邊的位置,預留了連廊,方便家里的老人曬太陽。廂房中,共布置了兩間臥室,可供親人留宿。立面上選用了中式傳統建筑的白墻黛瓦風格,屋頂則沿用了硬山頂設計,有利于防風防火的同時,亦保持著精美的建筑之風。 占地面積:16.76m*18.8m,222平方米左右(含連廊); 建筑層高:一層; 建筑高度:6.36米(含屋頂); 設計功能: 一層戶型:客廳、廚房、餐廳、臥室(帶衛生間和衣帽間)X2、臥室(帶衛生間和書房)、臥室、雜物間、衛生間 ![]() 第三款:中式農村一層三合院效果圖及戶型圖,帶堂屋設計![]() ![]() ![]() 這款住著比別墅舒服,接地氣,尤其是老人特別喜歡。建筑為三合院形式,整體配色淡雅,以白墻展現主體雕塑感。搭配有木頭柱子,整體感覺古樸典雅。 占地面積:20.8m*20.7m,300平方米左右 建筑層高:一層 建筑高度:7.11米(含屋頂) 設計功能:堂屋、客廳、餐廳、廚房、臥室(帶衛生間)×3、臥室×4、公衛、書房、儲藏室 ![]() 以上就是小編推薦的農村自建四合院設計,喜歡哪款?評論區告訴我,每一款都有全套施工圖紙哦!
圖紙之家-專注農村別墅/自建房設計18年,集合國內200余位經驗豐富的設計師,被評為口碑最好的農村建筑設計公司! |

堂屋共用五間雙拼別墅設計圖,適合二兄弟的二層別墅
占地:292.5平方米左右
農村一層四間平房設計圖方案,含外觀圖片,預算10萬
占地:190平方米
160平方米新農村三層半別墅設計圖11X16米65萬以內
占地:160平方米
170平方米歐式農村兩層小別墅設計圖紙帶外觀圖,精致好看
占地:多種戶型
南方北方新農村房屋設計圖紙(含效果圖),三層住宅設計圖紙
占地:164平方米
新農村帶陽臺三層樓房圖紙,占地180平米左右,豪華大氣
占地:180平方米
面寬13米二層新農村別墅自建房設計圖,功能實用,外觀大氣
占地:168.96平方米
美爆的三層經典復式別墅設計圖紙及效果圖,建好更漂亮
占地:130平方米左右
150平農村三層歐式別墅設計圖紙,盡顯豪華與精致,讓人羨慕不已
占地:147.62平方米
100平客廳挑高三層樓房設計圖,復式結構
占地:100平方米
新農村現代簡約別墅建筑設計圖紙(含外觀效果圖),28萬左右
占地:107平方米
帶車庫現代三層樓房設計圖,外觀效果圖時尚、美觀
占地:160平方米
帶地下室+挑空客廳,農村三層洋樓別墅誰家圖在
占地:97.74平方米
90平方米新農村住宅設計二層小別墅設計圖紙11x9米
占地:90平方米
三層新中式別墅建筑設計圖紙及圖片,11.66m*9.76m,典雅耐看
占地:114平方米
農村三間三層豪宅設計圖,自建別墅推薦戶型,帶地下室
占地:170平方米
經濟實用二層農村自建房設計圖,新中式風格12x11米
占地:114平方米
偏中式徽派的二層房屋農村別墅設計圖,馬頭墻小青瓦
占地:123.36平方米
小戶型二層農村別墅設計圖,占地140平經典漂亮
占地:139.54平方米
農村四間二層別墅設計方案圖,外觀精致、時尚
占地:152平方米
推薦:10套新農村自建房設計圖,2026年最新設計
閱讀次數:4825737次
100套鄉村別墅圖片大全,2026年最新設計
閱讀次數:2492203次
6款農村蓋一層平房的設計圖,10萬元就能建起來
閱讀次數:1852637次
這11個一層農村自建房別墅火爆了朋友圈!我最喜歡戶型十!你呢
閱讀次數:750268次
農村6萬元建一層小別墅圖,你敢相信嗎
閱讀次數:567686次
農村5萬塊就能自建房,6套普通房子設計圖分享,你沒看錯!
閱讀次數:419410次
8套農村漂亮三間平房圖片,非常適合在農村修建!
閱讀次數:411197次
農村自建房化糞池怎么做?附方案及施工過程
閱讀次數:391783次
農村一層三間平房設計圖,告別土氣養老房,讓人忍不住點贊
閱讀次數:350581次
新農村二層樓房圖片造價12萬,挑一套回家建房吧!
閱讀次數:349126次
