
|
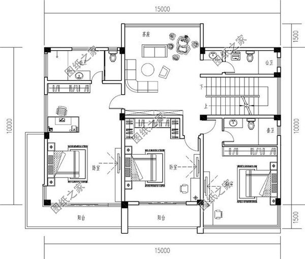
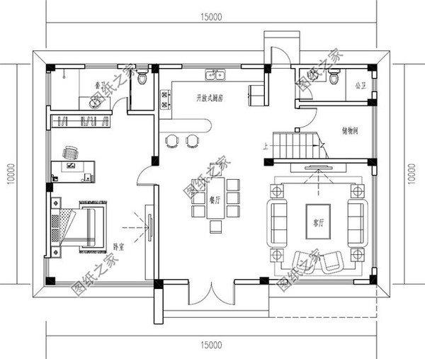
農村建房,更多講究的是實用設計,在外打工了那么久往往最需要的是回鄉后有著一棟舒適的房子,過著慢節奏日出而作,日落而息的田園生活,但如今建房越來越困難,農村大多是雷同設計,導致了他家的雖然很好而不一定適合你,如此今天小編帶來了三款農村自建房150平米設計圖以及戶型圖,隨著小編來觀摩這棟別墅吧! 第一款:帶院子的一層農村別墅自建房效果圖以及戶型圖,造價不高![]() 家里有老人家一般比較適合住一樓。別墅外觀是以灰色為主,搭配藍色坡屋頂,整體大氣沉穩,精致美觀,內部布局合理,院子里可以放松休息,同時還能種點花花草草,聽起來還是很美好的。 占地面積:11.83m*12.5m,144.819平方米; 建筑層高:一層; 建筑高度:6.741米(含屋頂); 設計功能: 一層戶型:客廳、廚房、餐廳、臥室X3、臥室(帶衛生間)、儲藏室、衛生間 ![]() 第二款:150平方米自建現代二層別墅設計圖以及戶型圖,平屋頂設計![]() ![]() ![]() 這款超現代風格的別墅設計, 新型材料的運用,幾何形狀的設計,藝術裝飾的設計,別墅的上上下下無不充斥著現代、時尚的感覺。室內功能分區十分合理,二層是臥室作息區域,設有茶座,三間臥室緊緊相連,能很好的促進日常的交流和互動。還設有陽臺,能很好的滿足日常的需求,也能使室內有良好的采光和通風效果。 占地面積:15m*10m,150平方米左右; 建筑層高:二層; 建筑高度:10.2米(含屋頂); 設計功能: 一層戶型:客廳、廚房、餐廳、臥室(帶衛生間)、儲物間、衛生間; 二層戶型:茶座、臥室(帶衛生間)x2、臥室、衛生間、陽臺; ![]() ![]() 第三款:鄉村二層半別墅圖紙設計圖以及戶型圖,歐式風格、屋頂錯落有致![]() 造價不到40萬,打造自己的幸福生活,暖色的外墻,讓別墅看起來更加溫馨,在細節處理上也非常有講究,優雅的門窗很好的勾勒出建筑的立面造型,顏值完全在線。再加上旁邊的環境烘托,簡直太有代入感了。三代同堂,完全沒有問題。 占地面積:12.8m*13.7m,149.76平方米; 建筑層高:三層; 建筑高度:12.8米(含屋頂); 設計功能: 一層戶型:堂屋、客廳、餐廳、廚房、臥室(帶衛生間)、臥室、衛生間、儲物間; 二層戶型:客廳上空、小客廳、臥室(帶衛生間衣帽間)、臥室、KTV、衛生間、陽臺、露臺; 三層戶型:娛樂區、臥室、棋牌室、衛生間、露臺 ![]() ![]() ![]() 今天推薦的三款150平的自建房設計圖以及戶型圖,一層到三層都有喜歡什么樣的評論區說說啊!
圖紙之家-專注農村別墅/自建房設計18年,集合國內200余位經驗豐富的設計師,被評為口碑最好的農村建筑設計公司! |

130平新農村三層房屋設計圖紙,預算30萬以內,蓋房推薦
占地:132平方米
110平方米新農村二層別墅設計圖及效果圖,12.36x9.36米
占地:115平方米
160平方米現代新農村四合院兩層別墅施工圖紙及效果圖
占地:157平方米
農村四間兩層樓房設計圖,帶車庫,時尚經濟,最適合農村施工的
占地:180平方米
100平新農村三層復式房屋別墅設計圖紙,造價30萬左右
占地:106平方米
小戶型農村三層房屋設計圖,占地120平米,布局非常合理,外表典
占地:120平方米
140平方米新農村三層房屋設計圖,磚混結構帶地下室
占地:138平方米左右
二層農村兄弟雙拼別墅設計圖,一墻之隔互不干擾,鄰居看了都喜
占地:164.24平方米
豪華大氣三層農村房屋設計圖,對稱的主體設計大氣恢宏
占地:240平方米
農村二層住宅設計圖,大窗戶客廳,一起享受大面積采光的溫暖
占地:220平方米
140平方米三層豪華新中式別墅設計圖紙帶外觀效果圖
占地:141.35平方米
面寬13米簡簡單單一層農村自建別墅設計圖,方正大氣經濟宜居
占地:126.1平方米
2026新款四層樓房設計圖,占地120平方米左右,客廳中空
占地:120平方米
150平方米自建現代二層別墅施工設計圖帶外觀圖,15x10米
占地:多戶型可選
豪華高端三層帶地下室別墅設計圖,可帶電梯
占地:210平方米
兩戶190平方米新農村雙拼別墅全套設計方案及效果圖
占地:191平方米
大開間小進深的一層別墅設計圖,進深僅8.7米,獨立餐廚照樣美觀
占地:130.32平方米
農村實用三層樓房圖片,占地140平米左右,客廳中空
占地:140平方米
120平農村三層房屋設計圖,含外觀圖片
占地:120平方米
帶院子的四間二層別墅房屋設計圖,帶獨立車庫
占地:350平方米
推薦:10套新農村自建房設計圖,2026年最新設計
閱讀次數:4825737次
100套鄉村別墅圖片大全,2026年最新設計
閱讀次數:2492203次
6款農村蓋一層平房的設計圖,10萬元就能建起來
閱讀次數:1852637次
這11個一層農村自建房別墅火爆了朋友圈!我最喜歡戶型十!你呢
閱讀次數:750268次
農村6萬元建一層小別墅圖,你敢相信嗎
閱讀次數:567686次
農村5萬塊就能自建房,6套普通房子設計圖分享,你沒看錯!
閱讀次數:419410次
8套農村漂亮三間平房圖片,非常適合在農村修建!
閱讀次數:411197次
農村自建房化糞池怎么做?附方案及施工過程
閱讀次數:391783次
農村一層三間平房設計圖,告別土氣養老房,讓人忍不住點贊
閱讀次數:350581次
新農村二層樓房圖片造價12萬,挑一套回家建房吧!
閱讀次數:349126次
