
|
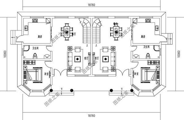
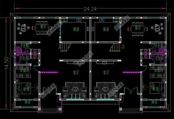
雙拼別墅最大的好處就是節約成本,而且外觀比單獨別墅更顯得大氣一些。對于家里有兩個孩子,預算不寬裕的朋友來說,一定是最適合的選擇。而且兄弟姐妹待在一起也未嘗不是一件好事,平時生活上可以互相照顧,親情上不會疏遠。今天來看看這三款自建六開間的雙拼別墅吧! 第一款:高端新農村中式三層雙拼設計圖以及戶型圖,外觀效果很大氣![]() 大戶型設計,兄弟倆能在村里建上這棟房子就厲害了屋頂用藍色的釉面瓷瓦,大面積用上米白色真石漆,落地窗處用少量的棕色的真石漆,一層底部少量淡灰色的外墻磚。布局南北通透,在廚房后面開窗,方便散失油煙,還方便采光;客廳中空設計,三層布局可按需調節,如果每家還有幾個兒子的話,正好一家一層,在每個樓層就可以滿足基本生活需求。主體造價均攤到每家不到40萬左右,戶型周正有氣勢,適用于大家庭的戶型。 占地面積:24.24m*14.5m,340.92平方米左右,單戶170.46平左右; 建筑層高:三層; 建筑高度:13.7米(含屋頂); 設計功能: 一層:客廳、餐廳、廚房、茶室、臥室(帶衣帽間、衛生間)、衛生間、陽臺(室內); 二層:客廳上空、起居室、臥室(帶衣帽間、衛生間)、臥室x2、衛生間、陽臺; 三層:臥室(帶衣帽間,書房、衛生間)、儲藏室、健身房、衛生間、陽臺 ![]() ![]() ![]() 第二款:帶地下室的三層農村自建房雙拼別墅設計圖以及戶型圖,外觀美觀大氣![]() 復式戶型,面寬23米。這套別墅戶型設計十分氣派,對稱的設計給人整潔大方的感覺,有多陽臺及多露臺設計,外墻面用淺黃色真石漆裝飾,外觀色調搭配也很穩重,正面的兩個大的落地挑高的大窗,與建筑搭配恰到好處。出式門檐和陽臺不僅增加了利用空間而且使房子凹凸有致,看起來大氣又舒適,大門處用方形羅馬柱裝飾,藍色琉璃瓦的覆蓋,沉穩端莊,大氣,一種非舒心的感覺。美輪美奐羅馬柱和金色雕花等細部構件為別墅增添歐式元素,浪漫典雅! 占地面積:23m*13.1m,261.6平方米左右,單戶130.8平左右; 建筑層高:三層; 建筑高度:13.111米(含屋頂); 設計功能: 地下室戶型:休息廳、采光井、影音室; 一層:大廳、客廳、臥室(帶衛生間)、廚房、餐廳、衛生間; 二層:客廳上空、起居室、娛樂室、臥室(帶衛生間)、臥室、衛生間、陽臺; 三層:活動室、書房、臥室(帶衣帽間、衛生間、梳妝臺)、陽臺、露臺 ![]() ![]() ![]() ![]() 第三款:170平方米雙拼別墅設計圖以及戶型圖,小戶經濟型復式客廳![]() ![]() ![]() 此款農村二層雙拼別墅,在色調上搭配相對簡單,只采用了灰色和白色兩種色調,兩種色調相結合,使得整體外觀簡約大方。尤其是朱砂紅大門的設計低調不失奢華的韻味 占地面積:18.76m*10.06m,170平方米左右,單戶85平方米左右; 建筑層高:二層 建筑高度:9.86米 設計功能: 一層房屋戶型:客廳、廚房、餐廳、衛生間、臥室; 二層房屋戶型:客廳上空、休息區、臥室x3、衛生間、陽臺 ![]() ![]() 以上就是小編推薦的三款雙拼別墅設計圖以及戶型圖,你喜歡哪款?可以給家里人看看!
圖紙之家-專注農村別墅/自建房設計18年,集合國內200余位經驗豐富的設計師,被評為口碑最好的農村建筑設計公司! |

帶地下室三層新農村房屋設計圖紙,外觀效果大氣
占地:220平方米
12.8乘10米一層平房別墅設計圖,四室二廳南北通透
占地:128.85平方米
農村一層小別墅設計圖,經濟大氣,16米乘9米
占地:124.12平方米
80平方米新農村三層房屋設計圖,新農村住宅圖紙精選
占地:80平方米
110平米一層小別墅設計方案,布局四室兩廳一廚兩衛
占地:110.5平方米
一層半復式帶閣樓別墅設計圖,含外觀圖片
占地:150平方米
現代風格二層別墅設計圖,外觀時尚、大氣
占地:153平方米
“L”字形二層別墅設計圖,獨立餐廚加連體露臺,太美了
占地:多戶型可選
160-170平方米二層自建別墅設計CAD圖紙帶效果圖,田園風
占地:167平方米左右
最新12x9米一層平房別墅設計圖,好看不貴居住舒適!
占地:108平方米
超大氣的農村一層雙拼自建別墅設計方案,絕對讓人羨慕的“平房
占地:424平方米
簡單漂亮實用的三層自建房設計圖,帶露臺,占地170平方米
占地:170平方米
20萬農村一層半小洋樓圖,自建別墅設計方案推薦
占地:155平方米
一層中式七字型房屋設計圖,帶院子經典設計,耐看不過時
占地:163.18平方米
100來平復式旋轉樓梯二層簡歐別墅設計圖,戶型實用
占地:101.523平方米
農村二層小樓的設計圖紙,整體外觀凹凸有致,紅色的坡面屋頂
占地:180平方米
可以傳家的新中式二層別墅,經典耐看,再過幾十年也不過時
占地:146.81平方米
歐式二層別墅設計圖,漂亮實用性價比還高,13米乘10米
占地:130平方米
二層帶地下室樓房設計方案,效果圖+全套施工圖
占地:160平方米
帶KTV的四開間的二層別墅設計圖,造型美觀經濟實用
占地:240.22平方米
推薦:10套新農村自建房設計圖,2026年最新設計
閱讀次數:4825737次
100套鄉村別墅圖片大全,2026年最新設計
閱讀次數:2492203次
6款農村蓋一層平房的設計圖,10萬元就能建起來
閱讀次數:1852637次
這11個一層農村自建房別墅火爆了朋友圈!我最喜歡戶型十!你呢
閱讀次數:750268次
農村6萬元建一層小別墅圖,你敢相信嗎
閱讀次數:567686次
農村5萬塊就能自建房,6套普通房子設計圖分享,你沒看錯!
閱讀次數:419410次
8套農村漂亮三間平房圖片,非常適合在農村修建!
閱讀次數:411197次
農村自建房化糞池怎么做?附方案及施工過程
閱讀次數:391783次
農村一層三間平房設計圖,告別土氣養老房,讓人忍不住點贊
閱讀次數:350581次
新農村二層樓房圖片造價12萬,挑一套回家建房吧!
閱讀次數:349126次
