
|
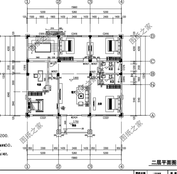
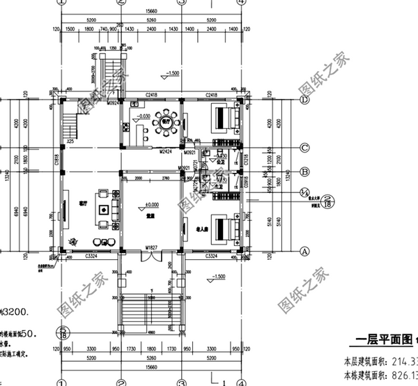
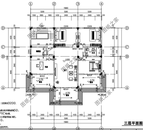
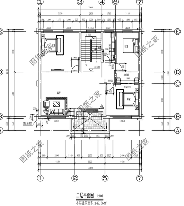
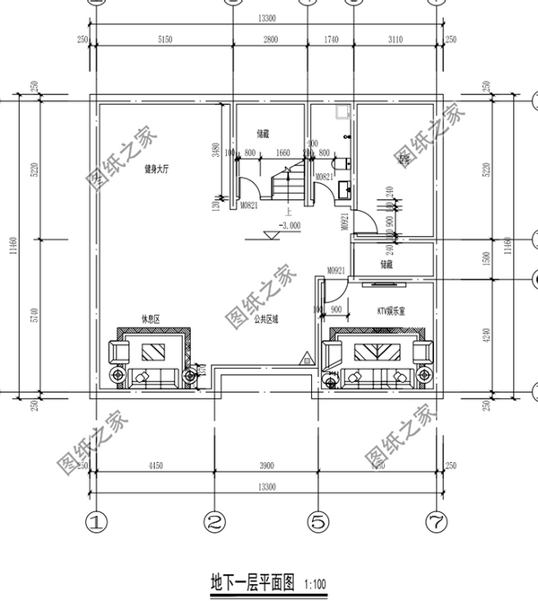
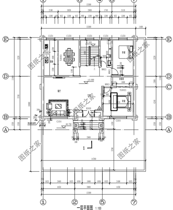
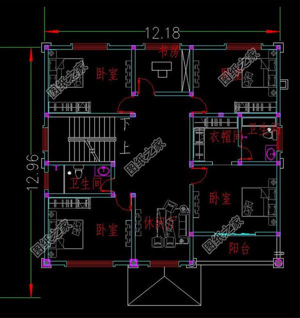
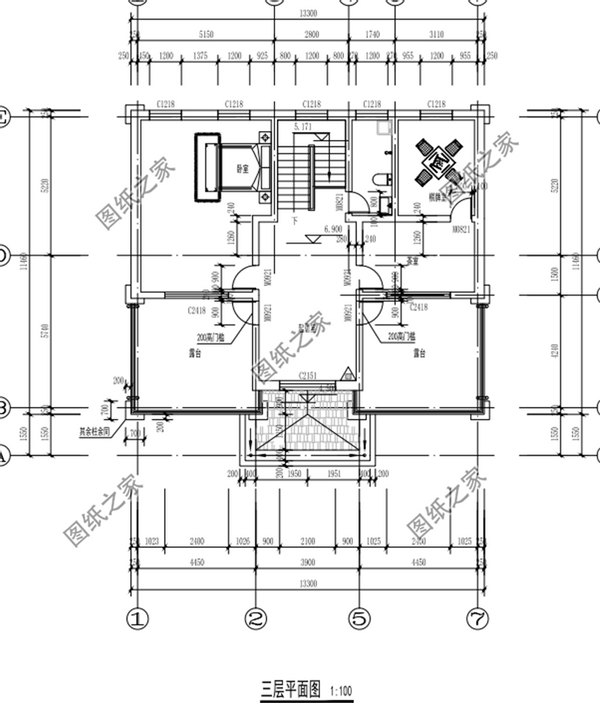
家是我們的港灣,是一個自由沒有限制的空間,所以大多數人選擇回到自己的港灣,在農村老家蓋一棟屬于自己的別墅,一家人住在一起非常幸福。今天給大家推薦三款農村帶地下室三層別墅設計圖,布局簡直可以給滿分,外觀時尚大方,讓人看了就想來一棟一樣的,最重要的是房間很多,家里每一位成員都可以有自己的獨立空間。 方案一:農村三層樓房設計圖,帶堂屋設計,占地214平米圖紙介紹:本戶型占地214平米左右,帶堂屋設計和地下室設計,一層設有堂屋,別墅簡約而溫馨,磚紅色坡屋頂耀眼奪目,淡黃色寶瓶欄桿、落地大窗、羅馬柱、大露臺更顯氣派,屋頂的兩個小老虎窗為外觀設計增添了一絲美感。 占地面積:15.66m*13.24m,214平方米左右; 建筑層高:三層; 建筑高度:13米(含屋頂); 設計功能: 地下室:功能自理; 一層戶型:堂屋、客廳、餐廳、廚房、老人房(帶衛生間)、臥室、衛生間; 二層戶型:客廳、臥室x2、書房、主臥(帶衛生間)、臥室(帶書房)、衛生間、陽臺; 三層戶型:客廳、臥室x3、儲藏室、書房、衛生間、露臺; ![]() ![]() ![]() ![]() ![]() 方案二:農村三層別墅設計圖,占地150平米,帶地下室設計圖紙介紹:本戶型占地150平米左右,帶地下室設計,地下室帶有酒窖、儲藏室、娛樂室、休息區和健身大廳,功能非常齊全。外觀大氣時尚,符合農村朋友審美,室內功能齊全,三樓帶大露臺設計。 占地面積:13.3m*11.4m,一層占地150平方米左右; 建筑層高:三層; 建筑高度:12.7米(含屋頂); 設計功能: 地下室:酒窖、儲藏室、娛樂室、休息區、健身大廳; 一 層:客廳、廚房、餐廳、臥室(帶衣帽間)、臥室、衛生間; 二 層:客廳、臥室(帶衣帽間)、臥室x2、衛生間; 三 層:起居室、臥室、棋牌室、茶室、衛生間、大露臺×2; ![]() ![]() ![]() ![]() ![]() 方案三:農村三層自建房設計圖,占地140平米,帶地下室設計圖紙介紹:本戶型占地140平方米左右,帶地下室(地下儲藏間)設計,外觀高端大氣,室內居住起來非常舒適。多窗多陽臺設計,采光足,屋內顯得十分亮堂。三層露臺設計部分涼亭與內屋相連,起到了一種內外相通的效果。 占地面積:12.18m*12.96m,138.12平方米左右; 建筑層高:三層; 建筑高度:12.7米(含屋頂); 設計功能: 地下室: 儲物間; 一層戶型:客廳、餐廳、廚房、棋牌室、臥室、衛生間; 二層戶型:休閑廳、臥室(帶衣帽間、衛生間)、臥室x3、書房、衛生間、陽臺; 三層戶型:臥室x2、雜物間、衛生間、露臺; ![]() ![]() ![]() ![]() ![]() 這樣的房子誰能說不喜歡?反正我是最喜歡最后一套,不知道大家最喜歡哪一套呢?
圖紙之家-專注農村別墅/自建房設計18年,集合國內200余位經驗豐富的設計師,被評為口碑最好的農村建筑設計公司! |

一層農村自建房別墅設計方案,左右對稱布局好
占地:154平方米
一層農村自建房設計圖,造型美觀大氣,占地150平
占地:153.415平方米
農村小戶型三層別墅設計圖,平屋頂,造價20萬左右
占地:80平方米
150平米一層7字型別墅設計方案,功能齊全舒適簡約,設計感十足
占地:154.48平方米
農村二層樓房設計圖帶外觀圖片,造價20多萬,13.3x11
占地:146平方米
17X12米三層雙拼別墅自建房設計圖,歐式風格,戶型方正
占地:190平方米
面寬17米農村一層平房設計圖,簡約空間敞亮
占地:169.393平方米
110平農村二層房屋設計圖,戶型特別接地氣,造價經濟還實用
占地:110.05平方米
農村一層中式三合院別墅設計圖,戶型經典實用,19米乘15米
占地:243.21平方米
240平農村二層自建別墅設計圖紙,帶你體驗家的溫馨
占地:240平方米
鄉村別墅現代風平屋頂四層自建房設計圖,簡約時尚
占地:144.7平方米
精致典雅的90平和100平方米二層樓房圖紙,藏不住的經典
占地:多種戶型
徽派3層農村小別墅設計圖,廣東新農村住宅設計圖集
占地:110平方米
歐式三層雙拼別墅設計圖,精致大氣布局實用,兄弟建房上上之選
占地:234平方米
農村三層復式自建樓房設計圖,外觀圖大氣
占地:130平方米
115平方米農村三層別墅設計圖,預算30萬左右
占地:115平方米
150平米經典二層中式別墅設計圖 ,現代中式相結合
占地:154平方米左右
農村二層仿古尖屋頂別墅設計圖,外觀古樸耐看
占地:87平方米左右
造價15萬經濟美觀一層農村別墅設計圖,占地150平米
占地:多戶型可選
簡歐風格三層別墅設計圖,外觀看起來很高端、上檔次
占地:139平方米
推薦:10套新農村自建房設計圖,2026年最新設計
閱讀次數:4825737次
100套鄉村別墅圖片大全,2026年最新設計
閱讀次數:2492203次
6款農村蓋一層平房的設計圖,10萬元就能建起來
閱讀次數:1852637次
這11個一層農村自建房別墅火爆了朋友圈!我最喜歡戶型十!你呢
閱讀次數:750268次
農村6萬元建一層小別墅圖,你敢相信嗎
閱讀次數:567686次
農村5萬塊就能自建房,6套普通房子設計圖分享,你沒看錯!
閱讀次數:419410次
8套農村漂亮三間平房圖片,非常適合在農村修建!
閱讀次數:411197次
農村自建房化糞池怎么做?附方案及施工過程
閱讀次數:391783次
農村一層三間平房設計圖,告別土氣養老房,讓人忍不住點贊
閱讀次數:350581次
新農村二層樓房圖片造價12萬,挑一套回家建房吧!
閱讀次數:349126次
