
|
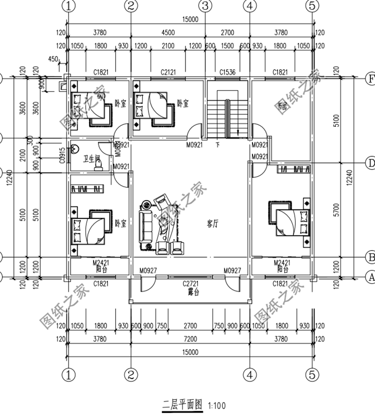
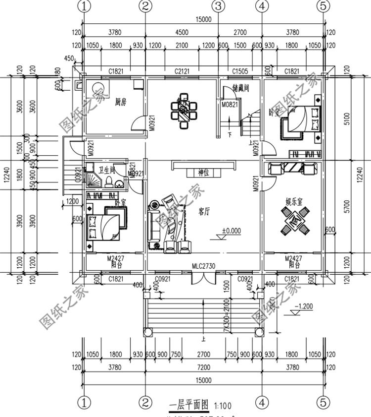
現在農村建房子的很多,主要是看著別人家都住上新房子了,自己也不能太落后。即使自己在城里打工不常年住著,但是父母他們在老家生活習慣了也不愿意離開農村,所以建個房子是非常合適的了。今天推薦三款農村獨棟二層別墅設計圖,外觀大氣,室內布局合理,非常適合農村自建。 第一款:農村二層別墅設計圖,占地180平米,外觀凹凸有致圖紙介紹:這款二層樓房占地180平米左右,外觀凹凸有致,紅色的坡面屋頂與暖黃色的墻壁交相呼應,非常美觀;室內布局合理,共有六間臥室設計,足夠居住,另外還有娛樂室。 占地面積:15.0m*12.2m,180平方米左右; 建筑層高:二層; 建筑高度:9.3米(含屋頂); 設計功能: 一層戶型:客廳、餐廳、廚房、臥室×2、娛樂室、衛生間、儲藏間; 二層戶型:客廳、臥室×4、陽臺、書房、衛生間、陽臺×2; ![]() ![]() ![]() ![]() 第二款:農村二層樓房設計圖,占地125平米,外觀時尚美觀圖紙介紹:這款二層樓房占地125平米左右,外觀精致漂亮,時尚美觀,一層外墻用文化石點綴,二層用黃色真石漆,搭配藍色屋頂,清新亮眼,整體布局合理,每一空間都體現出它的價值。二層的小陽臺既可以晾曬又可以觀景,非常實用。 占地面積:14.00m*10.20m,125平方米左右; 建筑層高:二層; 建筑高度:9.50米(含屋頂); 設計功能: 一層戶型:大堂、餐廳、廚房 、主臥(帶衛生間、衣帽間)、臥室、衛生間、洗衣間; 二層戶型:大堂、臥室x2、主臥(帶衛生間)、主臥(帶衛生間、衣帽間)、衛生間、陽臺; ![]() ![]() ![]() ![]() 第三款:農村二層樓房設計圖,簡歐風格,占地90平米左右圖紙介紹:本戶型占地90平米左右,簡歐風格,外觀簡單不失精致,時尚大氣,結合當下流行的現代風元素,個性十足。占地方正,四平八穩,別墅一層采用棕色外墻磚,凹凸有致與從不同。坡屋頂預留氣窗,防潮通風,為視覺效果添姿添彩,美觀又實用。 占地面積:10.36m*9.26m,92.12平方米左右; 建筑層高:二層; 建筑高度:9.454米(含屋頂); 設計功能: 一層戶型:客廳、廚房、餐廳、臥室、衛生間; 二層戶型:客廳、書房、臥室(帶衣帽間、衛生間)、臥室x2、衛生間、陽臺; ![]() ![]() ![]() 要建房的朋友可以參考這三款戶型,喜歡的話千萬不要錯過哦。
圖紙之家-專注農村別墅/自建房設計18年,集合國內200余位經驗豐富的設計師,被評為口碑最好的農村建筑設計公司! |

農村一層半房屋設計圖,帶外觀效果圖,外觀時尚
占地:155平方米
二層復式雙拼別墅設計圖(客廳中空),含外觀效果圖
占地:195平方米
新中式農村三層樓房設計圖,帶地下室,主體建筑面積110平米
占地:110平方米
帶車庫的一層雙拼別墅設計方案,出入方便保安全,大氣優雅還長
占地:179.7平方米
帶車庫二層農村豪華別墅設計圖,主體25萬左右
占地:170平方米左右
五開間農村豪華三層別墅設計圖,大格局大氣派,大家庭建房首選
占地:227.04平方米
新農村三層豪華歐式別墅,復式高端自建房設計圖紙及效果圖
占地:多種戶型
120平方米農村四層別墅施工設計圖紙及效果圖
占地:120平方米
南方新農村三層別墅設計圖紙,含效果圖,帶車庫
占地:120平方米
新中式三層豪華大氣三層別墅自建房屋設計圖,帶地下室,土豪專
占地:194平方米
占地180平方米二層鄉村小洋樓設計戶型圖及圖紙,外觀華麗
占地:180平方米
中式徽派二層農村別墅設計圖,白墻黛瓦馬頭墻,永不過時
占地:171平方米
三層平頂現代風格,農村自建房設計圖,可帶電梯,百看不厭
占地:259.55平方米
樓中樓客廳挑高二層別墅設計圖,復式別墅方案推薦
占地:122平方米
田園風格別墅設計圖紙及效果圖,三層鄉村小別墅設計方案
占地:166.4平方米
現代風平屋頂三層半農村小別墅設計圖,面寬僅7米
占地:90平方米
最新款農村三層自建房戶型設計圖及外觀圖片照片,鄉村蓋房精選
占地:112.56平方米
17X12米三層雙拼別墅自建房設計圖,歐式風格,戶型方正
占地:190平方米
18×15米新中式高檔農村三層別墅設計圖,低調奢華又實用
占地:195.91平方米
15萬左右一層農村自建房設計圖,一家住剛剛好
占地:131.33平方米
推薦:10套新農村自建房設計圖,2026年最新設計
閱讀次數:4825737次
100套鄉村別墅圖片大全,2026年最新設計
閱讀次數:2492203次
6款農村蓋一層平房的設計圖,10萬元就能建起來
閱讀次數:1852637次
這11個一層農村自建房別墅火爆了朋友圈!我最喜歡戶型十!你呢
閱讀次數:750268次
農村6萬元建一層小別墅圖,你敢相信嗎
閱讀次數:567686次
農村5萬塊就能自建房,6套普通房子設計圖分享,你沒看錯!
閱讀次數:419410次
8套農村漂亮三間平房圖片,非常適合在農村修建!
閱讀次數:411197次
農村自建房化糞池怎么做?附方案及施工過程
閱讀次數:391783次
農村一層三間平房設計圖,告別土氣養老房,讓人忍不住點贊
閱讀次數:350581次
新農村二層樓房圖片造價12萬,挑一套回家建房吧!
閱讀次數:349126次
