
|
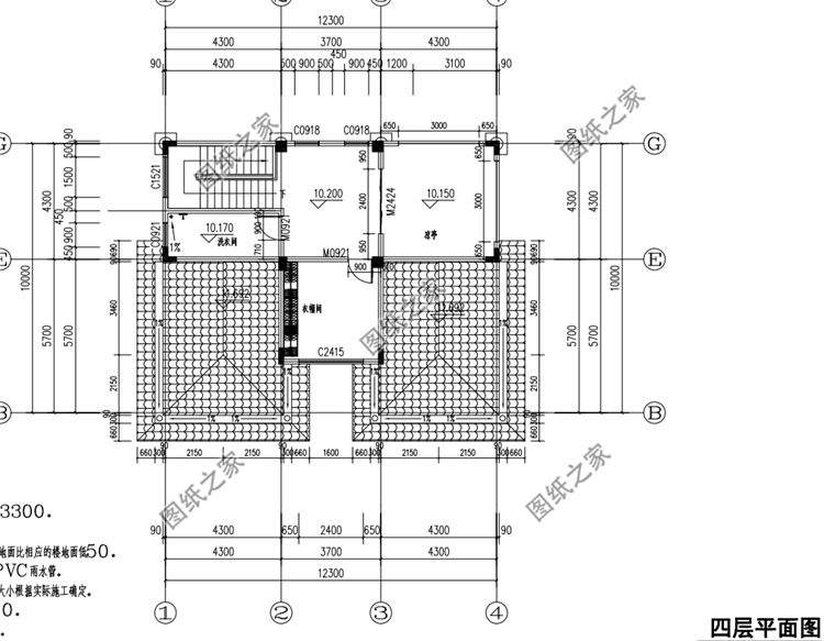
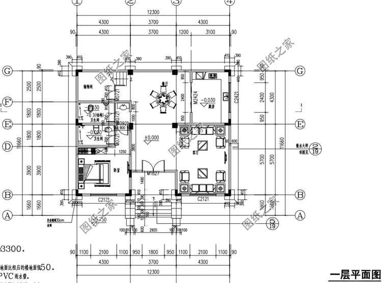
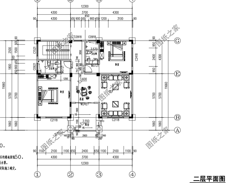
由于大多數地區宅基地受到限制,所以導致房子不能建 方案一:農村四層別墅設計圖,占地120平米,豪華大氣圖紙介紹:本戶型占地120平方米左右,歐式風格,坡屋頂設計美觀、便于排水,是大多數建房人的共同選擇。大門處正面進出,首層配有一室一廳一廚兩衛,設有儲藏間;二層配兩套間一廳,外帶茶座和陽臺設計;三層的布局和二層一樣,四層有洗衣房,衣帽間和涼亭。 占地面積:12.3m*11.7m,120平方米; 建筑層高:四層; 建筑高度:15.3米(含屋頂); 設計功能: 一層戶型: 儲物間,餐廳,廚房,衛生間,臥室(帶衛生間),客廳; 二層戶型: 臥室(帶衛生間)X2,茶座,客廳,陽臺 ; 三層戶型:臥室(帶衛生間)X2,茶座,客廳上空,陽臺X2; 四層戶型:洗衣間,衣帽間,涼亭; ![]() ![]() ![]() ![]() ![]() 方案二:農村四層別墅設計圖,占地120平米,客廳中空設計圖紙介紹:這款四層占地120平方米左右,客廳中空設計,三、四樓都帶有大露臺,外觀豪華氣派,建好后可以在村里橫著走了。 占地面積:11.5m*10.5m,120平方米左右; 建筑層高:四層; 建筑高度:15.3米(含屋頂); 設計功能: 一層戶型展示:堂屋、客廳、餐廳、廚房、儲藏間、健身房、臥室、衛生間; 二層戶型展示:客廳上空、起居室、臥室(帶衛生間)、臥室(帶衣帽間)、衛生間、陽臺; 三層戶型展示:主臥(帶衛生間)、臥室×2、書房、衛生間、露臺; 四層戶型展示:娛樂室、衛生間、露臺; ![]() ![]() ![]() ![]() ![]() 方案三:農村四層樓房設計圖,占地176平米,歐式風格高端大氣圖紙介紹:本戶型占地176平米,客廳挑空復式戶型設計,外墻面主要用到的是黃色的裝飾涂料,并搭配一些構件加強美觀性,大門處配方柱子很顯氣派性,使用多邊形窗來加強造型的立體感。客廳挑空設計,挑空的面積非常大,將旋轉樓梯處一塊挑空,二層配有三間臥室,其中主臥室內帶主衛,并設有茶室。三層四間臥室設計,配有足夠的室內活動廳空間,室外設一觀景陽臺。四層三間臥室外配一大露臺和觀景涼亭。 占地面積:15.6m*11.8m,176.97平方米左右; 建筑層高:四層; 建筑高度:16.13米(含屋頂); 設計功能: 一層戶型:客廳、廚房、餐廳、臥室x2、衛生間; 二層戶型:客廳上空、客廳、茶室、臥室(帶衛生間)、臥室x2、衛生間、陽臺; 三層戶型:客廳、臥室(帶衛生間)、臥室x3、衛生間、陽臺; 四層戶型:書房、臥室(帶衛生間)、臥室x2、衛生間、露臺、涼亭; ![]() ![]() ![]() ![]() ![]() 這三款戶型不知道大家最喜歡哪一款呢?歡迎下方評論留言。
圖紙之家-專注農村別墅/自建房設計18年,集合國內200余位經驗豐富的設計師,被評為口碑最好的農村建筑設計公司! |

新農村共用堂屋和樓梯的雙拼別墅設計圖紙,戶型布局空間利用率
占地:207平方米左右
3層20萬農村自建房設計圖,占地110平米
占地:110平方米
農村三層雙拼別墅戶型圖設計圖,整體外觀氣派
占地:220平方米
給爸媽建養老房?100 平人字坡一層房太合適!簡約低調還實用
占地:102.6平方米
農村10萬元一層小別墅設計圖紙,戶型實用又合理
占地:130平方米
二開間小戶型設計三層農村自建房方案,經濟型適合小宅基地建房
占地:107.02平方米
小型新中式二層小別墅圖紙設計方案,好看造價不高
占地:232.98平方米
二層歐式農村小別墅設計圖,9.5米乘13米,戶型好到鄰居求圖紙
占地:118.32平方米
開間14米!農村養老一層別墅神戶型,爸媽住得安心,施工隊狂贊太
占地:160.86平方米
農村四層樓房外形設計圖,主臥配有陽臺和衣帽間還有衛生間
占地:126平方米
130平新農村三層房屋設計圖紙,預算30萬以內,蓋房推薦
占地:132平方米
適合農村建的二層別墅設計圖,簡約美觀,讓人心動不已
占地:153平方米
120平方米農村經典二層房屋設計圖紙,造型精致好看
占地:121平方米
高端豪華三層別墅住宅設計方案圖,歐式外觀風格
占地:170平方米
村里三層新中式風自建別墅圖,對稱設計,氣派好看
占地:135.3平方米
經典二層農村自建房屋別墅設計圖紙,占地110平米左右
占地:110平方米
最實用一層小別墅設計方案,造價不高顏值高,家家都喜歡!
占地:143.48平方米
185平方米二層自建別墅設計施工圖紙及外觀效果圖,15x13米
占地:186平方米
鄉下建房一層半戶型圖,占地160平米,帶閣樓
占地:多種戶型
農村一層四開間自建別墅,美麗住宅如詩如畫里15米乘10米
占地:142平方米
推薦:10套新農村自建房設計圖,2026年最新設計
閱讀次數:4825737次
100套鄉村別墅圖片大全,2026年最新設計
閱讀次數:2492203次
6款農村蓋一層平房的設計圖,10萬元就能建起來
閱讀次數:1852637次
這11個一層農村自建房別墅火爆了朋友圈!我最喜歡戶型十!你呢
閱讀次數:750268次
農村6萬元建一層小別墅圖,你敢相信嗎
閱讀次數:567686次
農村5萬塊就能自建房,6套普通房子設計圖分享,你沒看錯!
閱讀次數:419410次
8套農村漂亮三間平房圖片,非常適合在農村修建!
閱讀次數:411197次
農村自建房化糞池怎么做?附方案及施工過程
閱讀次數:391783次
農村一層三間平房設計圖,告別土氣養老房,讓人忍不住點贊
閱讀次數:350581次
新農村二層樓房圖片造價12萬,挑一套回家建房吧!
閱讀次數:349126次
