
|
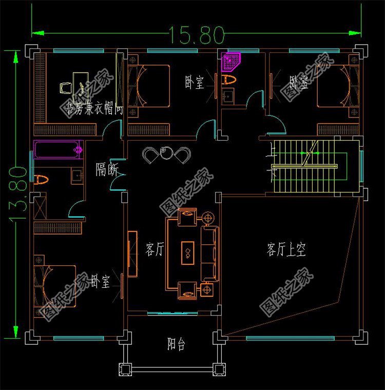
年輕的時候選擇在城里買房,那是為了方便自己的工作,還有就是要安家落戶,但是隨著年齡的增長,落葉歸根這個想法也逐漸提上日程,農村老家才是自己內心最溫暖的的地方。所以很多朋友選擇回到農村老家建棟養老房,等到將來住,今天推薦的這三款最新農村別墅圖,非常適合建造,喜歡可以參考。 款式一:農村三層別墅設計圖,占地140平米左右,新中式風格圖紙介紹:本戶型占地140平米左右,新中式風格設計,戶型方案不錯,外觀帶中國風,適合農村自建。以樓頂老虎窗的巧妙設計增加美觀的同時也可以方便閣樓通風,三樓陽光房拉開窗簾便可以看到遠處群山,近處花樹,超大露臺為家中晾曬提供了場地,也可以作為室外休閑區域加以使用。 占地面積:12.2m*12.8m,140.62平方米左右; 建筑層高:三層; 建筑高度:12.31米(含屋頂); 設計功能: 一層戶型:客廳、餐廳、廚房、臥室X2、衛生間; 二層戶型:客廳、書房、臥室x3、衛生間、陽臺; 三層戶型:客廳、臥室、書房、陽光房、衛生間、露臺、陽臺; ![]() ![]() ![]() ![]() 款式二:農村三層別墅設計圖,占地119平米左右,帶地下室設計圖紙介紹:本戶型占地119平米左右,現代風別墅,外觀顏值高,讓你看上一眼就喜歡!別墅布局合理,居住舒適。多開窗的設計,保證室內陽光充足明亮。封閉的廚房很好的減少了油煙的污染,遠離客廳臥室,出門就是餐廳,十分的便捷。二層三間臥室,書房靠近陽臺,環境舒適。三層大露臺能夠很好的滿足日常晾曬,和朋友在露臺上喝杯下午茶,吃飯聚餐都是非常好的選擇視野開闊,環境宜人。 占地面積:12.5m*10.3m,119.79平方米左右; 建筑層高:三層; 建筑高度:12.038米(含屋頂); 設計功能: 地下室戶型:儲物間、影音室、臺球室、 一層戶型:玄關、客廳、廚房、餐廳、臥室、衛生間; 二層戶型:書房、臥室(帶衣帽間、衛生間)、臥室x2、衛生間、陽臺x3; 三層戶型:起居室、臥室、臥室(帶衣帽間、衛生間)、衛生間、露臺x2; ![]() ![]() ![]() ![]() ![]() 款式三:農村三層別墅設計圖,歐式風格,挑空客廳設計圖紙介紹:本戶型占地228平米左右,歐式復式風格,挑空客廳多露臺設計。米色真石漆外墻搭配深藍色坡屋頂,設計感十足。一間帶獨衛的父母房和一間休閑棋牌室設計,廚房和餐廳的做法既方便又私密;主臥設計在二樓,設計成了一個套件的形式,有書房,衣帽間,內衛,工作休息,兩不誤,還能提高生活品質!三層有兩間臥室備用,配備室內娛樂區域和室外觀景露臺。 占地面積:15.8m*13.8m,228.34平方米左右; 建筑層高:三層; 建筑高度:14.3米(含屋頂); 設計功能: 一層戶型:玄關、客廳、餐廳、廚房、棋牌室、茶臺、臥室(帶衛生間)、衛生間; 二層戶型:客廳挑空、客廳、臥室(帶衛生間、書房兼衣帽間)、臥室x2、衛生間、陽臺; 三層戶型:健身室、洗衣房、KTV室、茶臺、書房兼衣帽間、臥室x2、衛生間、露臺x2; ![]() ![]() ![]() ![]() 這三款戶型不知道大家最喜歡哪一款?歡迎下方評論留言。
圖紙之家-專注農村別墅/自建房設計18年,集合國內200余位經驗豐富的設計師,被評為口碑最好的農村建筑設計公司! |

200平米二層自建房別墅設計圖,外觀漂亮布局實用
占地:207.09平方米
農村三層帶車庫、帶露臺別墅設計圖,經典自建別墅設計方案
占地:160平方米
大氣的150平方米新中式三層別墅建筑圖及效果圖
占地:150平方米左右
帶地下室三層豪華大氣新農村房屋設計圖,占地150平米左右
占地:150平方米
歐式二層別墅設計圖,漂亮實用性價比還高,13米乘10米
占地:130平方米
復式三層別墅設計圖片及全套圖紙,客廳中空,外觀為歐式建筑的
占地:175平方米
占地200平米簡歐三層農村別墅設計圖,既顯華麗又接地氣
占地:209.27平方米
現代風格建房圖紙二層別墅設計方案,外觀百看不厭
占地:多戶型可選
二層帶架空層的農村別墅設計圖,功能齊全,超越十里八村
占地:130平方米
戶型好的三層帶獨立車庫的樓房設計圖,含外觀效果圖
占地:148平方米
農村18萬元二層小樓圖,占地120平面,戶型緊湊合理
占地:120平方米
最漂亮的農村二層小樓圖,平屋頂的設計對于農村來說尤為便利
占地:170平方米
130平方米歐式實用農村二層樓別墅圖紙帶外觀圖12X13米
占地:132平方米
新中式農村50萬三層別墅款式圖,占地面積160平米左右
占地:150平方米
農村三層樓房圖造價26萬,客廳中空,占地90平米
占地:90平方米
面寬8米農村二間二層小別墅設計方案,施工簡單造價低
占地:73.77平方米
二層簡歐別墅設計圖挑空客廳+旋轉樓梯,看過的人都說氣派
占地:154.699平方米
140平歐式二層半帶露臺的獨棟別墅圖片,含全套設計圖
占地:140平方米
最新140平米三層自建房屋設計圖紙,本戶型帶小院
占地:140平米
別致美觀的簡歐二層別墅房屋設計圖,含外觀效果圖
占地:145平方米
推薦:10套新農村自建房設計圖,2026年最新設計
閱讀次數:4825737次
100套鄉村別墅圖片大全,2026年最新設計
閱讀次數:2492203次
6款農村蓋一層平房的設計圖,10萬元就能建起來
閱讀次數:1852637次
這11個一層農村自建房別墅火爆了朋友圈!我最喜歡戶型十!你呢
閱讀次數:750268次
農村6萬元建一層小別墅圖,你敢相信嗎
閱讀次數:567686次
農村5萬塊就能自建房,6套普通房子設計圖分享,你沒看錯!
閱讀次數:419410次
8套農村漂亮三間平房圖片,非常適合在農村修建!
閱讀次數:411197次
農村自建房化糞池怎么做?附方案及施工過程
閱讀次數:391783次
農村一層三間平房設計圖,告別土氣養老房,讓人忍不住點贊
閱讀次數:350581次
新農村二層樓房圖片造價12萬,挑一套回家建房吧!
閱讀次數:349126次
