
|
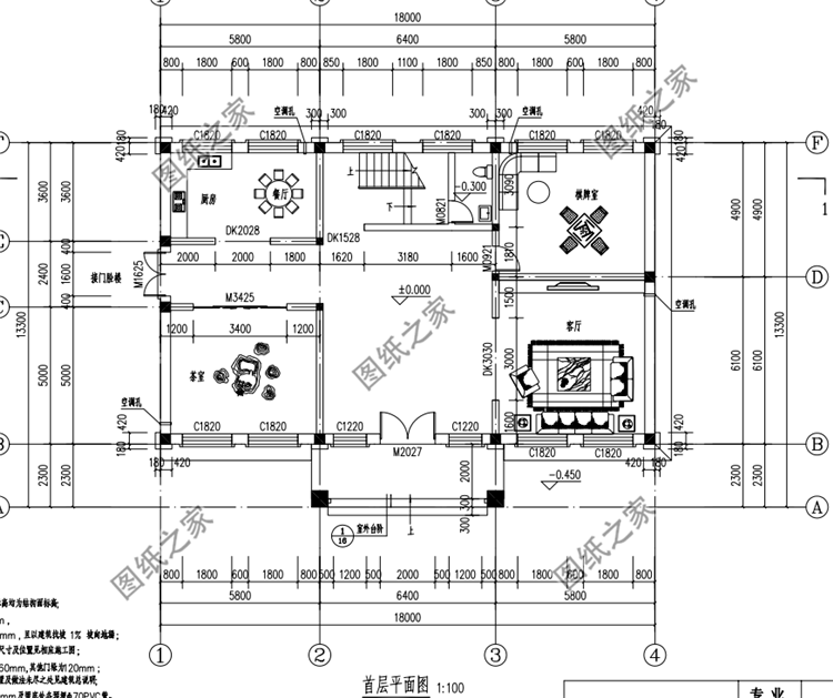
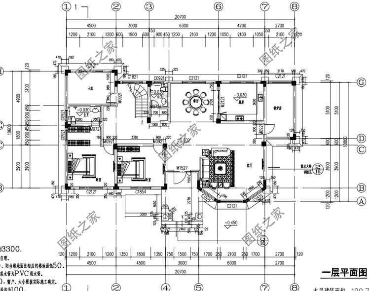
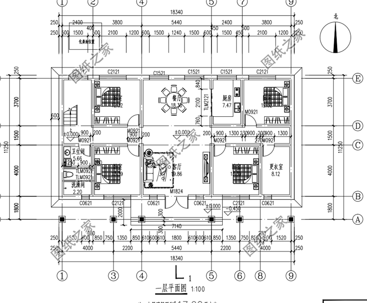
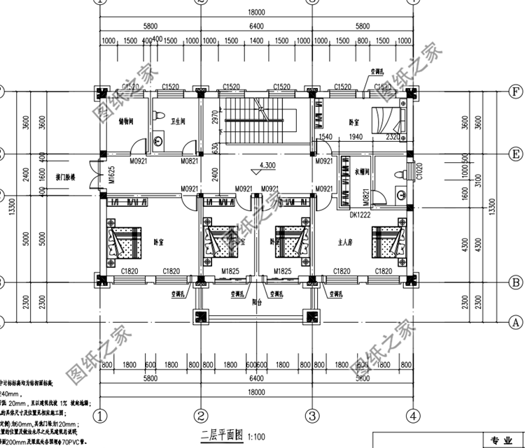
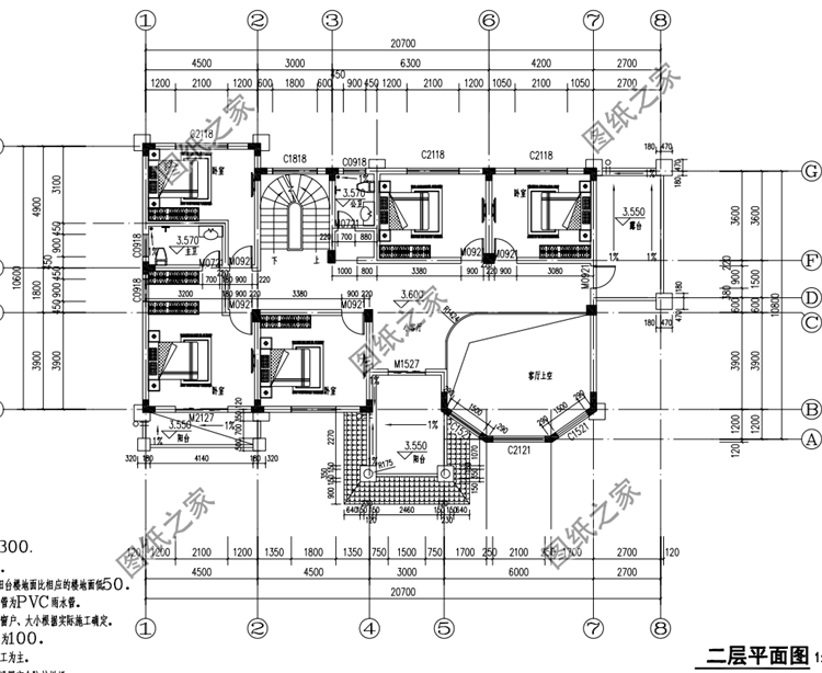
中國人對于家鄉總是有一種特殊的情感,那就是落葉歸根,對于有追求的人來說,不僅要在城里買房,還要在老家村里建棟小樓,一般情況下就是父母住不慣城里就在老家住,所以今天給大家推薦三款農村兩層樓房圖紙,想在村里建一棟讓人有面子的房子,可以參考這三款,戶型非常好看,喜歡收藏。 戶型一:農村二層別墅設計圖,外觀好看,造價經濟實惠圖紙介紹:這款二層別墅占地200平米左右,外觀簡易好看,造價經濟實惠,施工也簡單,最適合農村建造。造型時尚,采用歐式現代風格,外墻使用真石漆,優雅清新的米白色使人感到舒適,也提升了建筑的檔次。 占地面積:18.0m*13.3m,200平方米左右; 建筑層高:二層; 建筑高度:11.55米(含屋頂); 設計功能: 一層戶型:客廳、餐廳、廚房、衛生間、茶室、棋牌室; 二層戶型:主臥(帶衣帽間、衛生間)、臥室x4、衛生間、雜物間、陽臺; ![]() ![]() ![]() ![]() 戶型二:農村二層自建房設計圖,占地200平米,歐式風格洋氣十足圖紙介紹:這款四間二層小洋樓占地200平米,歐式外觀非常洋氣,帶土炕和鍋爐房,冬天把屋子燒 占地面積:20.7m*10.8m,200平方米; 建筑層高:二層; 建筑高度:10.2米(含屋頂); 設計功能: 一層戶型:土炕,主臥(主衛),臥室,公衛,廚房,餐廳,客廳,鍋爐房; 二層戶型:臥室X4,公衛,主臥(主衛),露臺,陽臺,客廳,客廳上空; ![]() ![]() ![]() ![]() 戶型三:農村180平米二層別墅設計圖,現代風格設計,外觀好看圖紙介紹:本戶型占地 180多平方米,現代風格簡約時尚,造價低。戶型格局有傳統戶型的部分功能,一層 更衣室 客廳 臥室 餐廳 廚房,平時家人用餐時在餐廳內就餐,當家里人多有客人朋友做客時,可以在客廳再擺上一桌,廚房和客廳的位置也方便上菜。二層主要為休息空間,有四個臥室,一個休息室和一間書房,兩個南向的大臥室都有獨立使用的露臺。 占地面積:18.3m*11.3m,187平方米; 建筑層高:二層; 建筑高度:9.4米(含屋頂); 設計功能: 一層戶型:臥室X4,餐廳,廚房,客廳,更衣室,衛生間,洗澡間; 二層戶型:休息室(或棋牌室),書房,臥室X4,更衣室,露臺X2,客廳,陽臺,衛生間,洗澡間 ; ![]() ![]() ![]() ![]() 喜歡這三款戶型的朋友可以收藏參考,不要輕易錯過。
圖紙之家-專注農村別墅/自建房設計18年,集合國內200余位經驗豐富的設計師,被評為口碑最好的農村建筑設計公司! |

現代簡約時尚二層帶超大露臺農村別墅戶型,既可以休閑又可晾曬
占地:100.06平方米
獨棟兩層四開間房子施工設計圖紙及效果圖片,大氣時尚
占地:170平方米
驚艷全村的三層別墅設計圖,12×16米美觀大氣布局超合理
占地:179.8平方米
一層農村自建房別墅設計圖,簡潔時尚的設計,給父母建養老房
占地:144平方米
爆款農村一層別墅圖紙設計,看過的都說漂亮實用
占地:144.91平方米
125平方米復式三層別墅房屋設計圖,房間多,采光好
占地:125平方米
農村四間二層別墅設計方案圖,外觀精致、時尚
占地:152平方米
帶架空層的農村一層小別墅設計圖,大氣穩重又很實用
占地:123.5平方米
四層豪華歐式別墅自建樓房設計圖紙,帶效果圖和全套施工圖
占地:300平方米
經濟型實用歐式一層小樓房別墅平房設計圖,11X10米
占地:103平方米
農村簡單雙拼小戶型,總面積190平方米,合理的利用了每一個空間
占地:190平方米
150平米一層7字型別墅設計方案,功能齊全舒適簡約,設計感十足
占地:154.48平方米
農村三間兩層樓房設計圖,帶車庫,戶型簡單實用
占地:140平方米
230平方米新農村二層自建別墅設計圖紙帶外觀圖,20X11米
占地:227平方米
農村自建一層房子設計圖,大開間小進深,20米x10米
占地:188平方米
豪華雙拼三層別墅設計圖,在農村建一棟,將是最靚的風景!
占地:186.85平方米
農村現代新中式三合院設計圖及效果圖片,外觀好看極了
占地:多戶型可選
最漂亮五間一層自建別墅設計圖,布局實用顏值高!
占地:多戶型可選
最火現代風三層半別墅設計圖,時尚簡約寬敞舒適
占地:169平方米
125平方米新農村二層房屋施工設計CAD圖紙加效果圖
占地:125平方米
推薦:10套新農村自建房設計圖,2026年最新設計
閱讀次數:4825737次
100套鄉村別墅圖片大全,2026年最新設計
閱讀次數:2492203次
6款農村蓋一層平房的設計圖,10萬元就能建起來
閱讀次數:1852637次
這11個一層農村自建房別墅火爆了朋友圈!我最喜歡戶型十!你呢
閱讀次數:750268次
農村6萬元建一層小別墅圖,你敢相信嗎
閱讀次數:567686次
農村5萬塊就能自建房,6套普通房子設計圖分享,你沒看錯!
閱讀次數:419410次
8套農村漂亮三間平房圖片,非常適合在農村修建!
閱讀次數:411197次
農村自建房化糞池怎么做?附方案及施工過程
閱讀次數:391783次
農村一層三間平房設計圖,告別土氣養老房,讓人忍不住點贊
閱讀次數:350581次
新農村二層樓房圖片造價12萬,挑一套回家建房吧!
閱讀次數:349126次
