
|
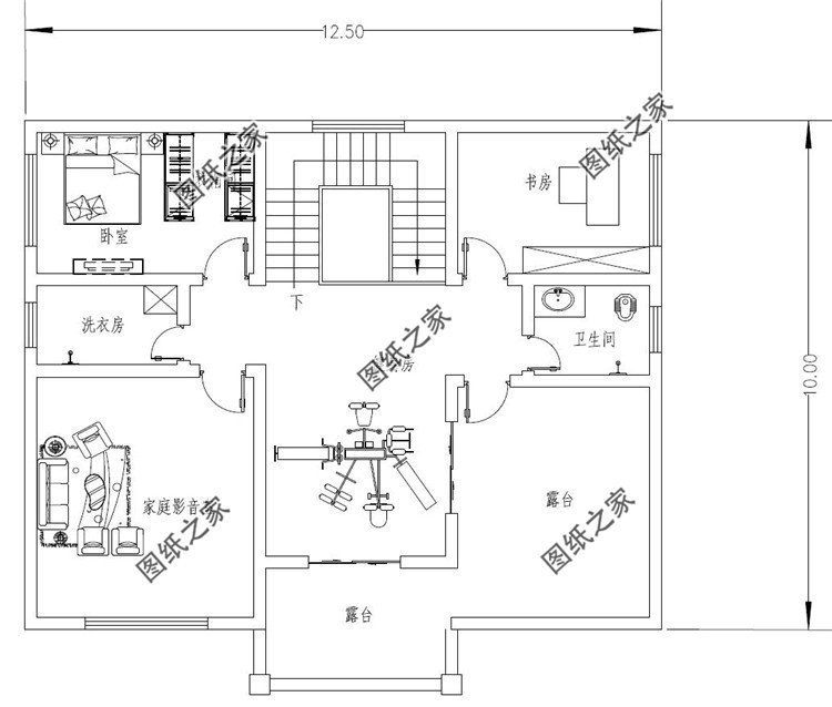
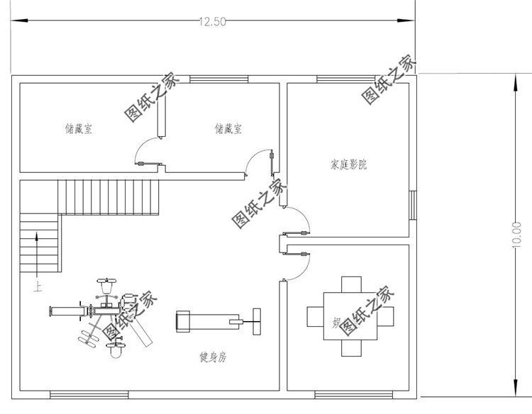
現在農村自建別墅的有很多,對于大部分人來說,性價比才是最重要的。目前建房主要就是磚混結構,性價比比較高,所以選用磚混結構的還是很多的。所以今天就給大家推薦三款農村磚混三層別墅設計圖,主體造價低,戶型美觀大方,喜歡的朋友抓緊時間來一棟吧。 款式一:農村三層別墅設計圖,新中式風格,帶地下室設計圖紙介紹:本戶型占地194平米左右,新中式風格,外觀豪華大氣,采用藍色坡屋頂搭配白色的外墻漆,色調淡雅溫馨。帶地下室設計,頂層利用露臺和陽臺來塑造外觀的層次感。 占地面積:13.2m*15.7m,194平方米左右; 建筑層高:三層; 建筑高度:13.068米(含屋頂); 設計功能: 地下室:家庭影院KTV、酒窖、健身房、棋牌室、儲物間、臥室; 一層戶型:神位、客廳、餐廳、廚房、茶室、臥室、儲物間、衛生間; 二層戶型:過廳、臥室(帶衣帽間衛生間)x2、儲物間、陽臺、露臺; 三層戶型:小客廳、臥室(帶衛生間)x2、臥室x2、衛生間、陽臺、露臺; ![]() ![]() ![]() ![]() ![]() 款式二:農村三層別墅設計圖,占地120平米,歐式風格豪華大氣圖紙介紹:本戶型占地120平米左右,歐式風格豪華大氣,客廳中空設計,門頭是典形的歐式風格,大氣的羅馬柱,歐式構件,很是經典。既彰顯房屋的整體風體,又讓入戶空間與屋內空間得以過渡。 占地面積:10.0m*12.0m,一層占地123平方米左右; 建筑層高:三層; 建筑高度:13.00米(含屋頂); 設計功能: 一 層:客廳、廚房、餐廳、臥室(帶衛生間)、棋牌室、衛生間; 二 層:客廳上空、起居室、臥室(帶衣帽間,衛生間)、臥室x2、衛生間、陽臺; 三 層:佛堂、健身區、臥室(帶衣帽間,衛生間)、臥室、書房; ![]() ![]() ![]() ![]() 款式三:農村三層別墅設計圖,占地120平米左右,現代風格帶地下室設計圖紙介紹:本戶型占地120平方米左右,帶地下室設計,室內旋轉樓梯,現代風格,外觀簡潔大氣。入戶即是玄關,左拐角就是寬敞明亮的客廳,也可以作為會客室,一層的客廳上方做了挑空設計,加大了整體的視覺效果,保證屋內陽光充足與通風穩定,非常高端大氣上檔次;三樓設有洗衣房。超大陽光大露臺保障了室內的通風與采光。 占地面積:12.26m*10.96m,120.78平方米左右; 建筑層高:三層; 建筑高度:13.029米(含屋頂); 設計功能: 地下室戶型圖:儲藏室x2、娛樂室、家庭影音、健身房; 一層戶型:玄關、客廳、餐廳、廚房、衛生間、臥室; 二層戶型:客廳挑空、客廳、臥室(帶衣帽間)、臥室x2、衛生間、陽臺; 三層戶型:健身房、書房、家庭影音、洗衣房、臥室(帶衣帽間)、書房、衛生間、露臺x2; ![]() ![]() ![]() ![]() ![]() 不知道在三款別墅大家喜歡嗎?可以收藏。
圖紙之家-專注農村別墅/自建房設計18年,集合國內200余位經驗豐富的設計師,被評為口碑最好的農村建筑設計公司! |

L“型”一層自建房小平層設計圖紙,180平方米
占地:179.355平方米
鄉村高檔四層別墅樓設計圖,二三層復式挑空客廳
占地:148.992平方米
農村小別墅設計圖二層,占地不大顏值高,最適合農村建造。
占地:108.66平方米
占地105平實用三層樓房別墅設計圖紙,造型方正簡單大氣
占地:105平方米
一層雙拼別墅獨立入戶+共用墻,兄弟合建,施工隊直呼太省料
占地:269.43平方米
農村二層半雙拼別墅設計圖,客廳中空,帶大露臺
占地:270平方米
面寬17米農村實用自建房一層別墅設計圖,簡約大氣經濟時尚
占地:192.94平方米
農村一層養老別墅設計圖,14.8x17.9米,戶型對稱,實用布局
占地:193平方米
小面寬大進深三層別墅圖紙設計,戶型非常實用經典
占地:171.39平方米
三間三層房子設計圖,高端三層樓房設計圖,三層兩個大露臺
占地:170平方米
100平簡單三層房屋設計圖紙,新農村自建推薦圖紙
占地:100平方米
農村三層雙拼別墅戶型圖設計圖,整體外觀氣派
占地:220平方米
100平復式三層別墅房屋設計圖,客廳挑高,采光好,臥室多
占地:100平方米
農村一層平房設計圖及效果圖,一層房屋設計方案推薦
占地:270平方米
占地120平米清新脫俗簡單二層別墅設計方案,含效果圖
占地:119.01平方米
開間8米的小戶型二層別墅設計圖,2開間占地不到60平
占地:56平方米左右
140平中式徽派一層別墅設計圖,一層照樣建這樣漂亮
占地:140平方米
一層農村小平房設計圖,功能齊全造價低,兩款戶型可選
占地:多戶型可選
漂亮實用三層自建別墅設計圖紙,超高的性價比
占地:160平方米
兩間二層農村自建房設計圖,面積雖小功能齊全,布局緊湊。
占地:118.75平方米
推薦:10套新農村自建房設計圖,2026年最新設計
閱讀次數:4825737次
100套鄉村別墅圖片大全,2026年最新設計
閱讀次數:2492203次
6款農村蓋一層平房的設計圖,10萬元就能建起來
閱讀次數:1852637次
這11個一層農村自建房別墅火爆了朋友圈!我最喜歡戶型十!你呢
閱讀次數:750268次
農村6萬元建一層小別墅圖,你敢相信嗎
閱讀次數:567686次
農村5萬塊就能自建房,6套普通房子設計圖分享,你沒看錯!
閱讀次數:419410次
8套農村漂亮三間平房圖片,非常適合在農村修建!
閱讀次數:411197次
農村自建房化糞池怎么做?附方案及施工過程
閱讀次數:391783次
農村一層三間平房設計圖,告別土氣養老房,讓人忍不住點贊
閱讀次數:350581次
新農村二層樓房圖片造價12萬,挑一套回家建房吧!
閱讀次數:349126次
