
|
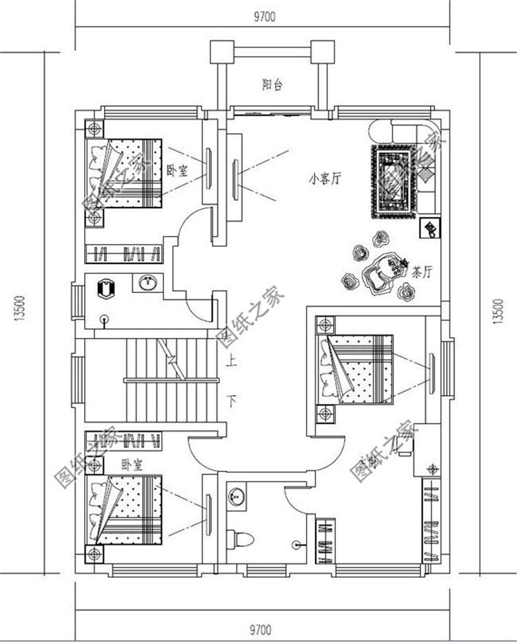
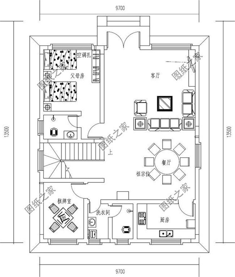
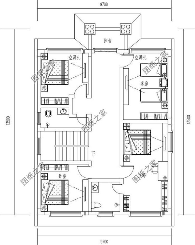
說到底在老家建房子最重要的是什么?美觀?霸氣?高大?都不是!說白了房子是用來住的,住得舒適、方便比什么都重要!而且大多數農民們生活節儉慣了,對于自建房也是比較中意經濟簡約實用戶型。今天小編給大家分享的這三款農村三層普通樓房設計圖,戶型簡約合理,精美實用,一起來看看吧。 第一款:農村二層別墅設計圖,占地116平米,帶羅馬柱設計圖紙介紹:這款三層自建別墅占地116平,復式落地窗,非常有氣勢的羅馬柱,米黃色外墻磚和橙黃色外墻磚裝飾外墻,和橙色坡屋頂相映襯,非常養眼,都把歐式的大氣華貴體現的淋漓盡致。 占地面積:9.7m*12m,116平方米左右; 建筑層高:三層; 建筑高度:12.92米(含屋頂); 設計功能: 一層戶型:客廳、餐廳、廚房、洗衣間、棋牌室、父母房; 二層戶型:小客廳、茶廳、臥室(帶衛生間)、臥室x2、衛生間、陽臺; 三層戶型:臥室(帶衛生間)、臥室x3、衛生間、陽臺; ![]() ![]() ![]() ![]() 第二款:農村自建二層別墅設計圖,占地153平米左右,歐式風格設計圖紙介紹:本戶型占地153平米左右,歐式風格外觀高端大氣,設計的非常養眼,讓外人看著就是一種享受。復式客廳大氣,使得房間更加遼闊寬廣。功能布局齊全,居住起來必定十分舒適。推出式陽臺和露臺設計,富有人情味。多窗設計采光通風好,且戶型方正,施工簡單。超寬客廳,橫向空間開放互通大氣渾然,一二層挑空設計全景落地窗,更顯待客區的體面。二三層是主要的休息區,共設置八間臥室,確保家中每個成員都能有自己獨立的私享空間。露臺用于室外休閑. 占地面積:15.36m*13.88m,153.792平方米左右; 建筑層高:三層; 建筑高度:14.208米(含屋頂); 設計功能: 一層戶型:客廳、餐廳、廚房、臥室x3、衛生間; 二層戶型:客廳挑空、臥室x4、衛生間、陽臺; 三層戶型:臥室x4、衛生間、陽臺、露臺; ![]() ![]() ![]() ![]() 第三款:農村三層自建房設計圖,占地143平米,帶地下室設計圖紙介紹:這款三層別墅占地143平米左右,帶地下室設計,復式挑空客廳,別墅屋頂采用灰色波形瓦,白色面磚裝飾墻面,基腳采用墨綠色面磚裝飾,金黃色仿石漆點綴落地窗、露臺、門廳,層次分明,精致的花瓶圍欄,豪宅范十足。一層廚房、餐廳規劃在后,隔離油煙。二層3個臥室,滿足家人日常休息,溫馨舒適;小客廳與陽臺相連,通風采光棒。三層臥室充裕,可作為客房,方便接待親友,臺寬敞,可打造成空中花園。 占地面積:12.2m*13.3m,143.29平方米左右; 建筑層高:三層; 建筑高度:13.9米(含屋頂); 設計功能: 地下室戶型:酒窖、影音室; 一層戶型:客廳、健身房、廚房、餐廳、臥室、衛生間; 二層戶型:客廳上空、小客廳、臥室(衛生間)x2、臥室、衛生間、陽臺; 三層戶型:小客廳、書房\臥室、臥室(衛生間)x2、臥室、露臺x2; ![]() ![]() ![]() ![]() ![]() 不知道這三款別墅大家喜歡嗎?歡迎下方評論留言。
圖紙之家-專注農村別墅/自建房設計18年,集合國內200余位經驗豐富的設計師,被評為口碑最好的農村建筑設計公司! |

二層歐式農村小別墅設計圖,9.5米乘13米,戶型好到鄰居求圖紙
占地:118.32平方米
最好看的農村三層樓房設計圖,占地113平米,小平米大格局
占地:110平方米
農村簡單雙拼小戶型,簡單適用,客廳中空,總占地210平方米
占地:210平方米
130平方米新農村自建三層別墅設計施工圖,13x11米
占地:130平方米
135平方米新農村三層別墅設計圖紙,外觀效果圖很漂亮
占地:134平方米
100平內簡單精致的小戶型自建房二層設計圖,旋轉樓梯
占地:97.08平方米
120平方兩層房子設計圖及圖片,外觀大方好看,內部結構合理
占地:120平方米
16米乘11米接地氣農村二層自建房圖,帶配房設計
占地:149.8平方米
新農村二層帶庭院的小別墅設計圖及效果圖
占地:137平方米
農村120方三層自建房子圖,好看又不貴的三層農村別墅
占地:120平方米
三層別墅設計施工圖紙(含外觀效果圖)帶大露臺
占地:160平方米
農村三層雙拼別墅戶型圖及全套施工圖紙,帶書房,帶衣帽間
占地:260平方米
樓中樓客廳挑高二層別墅設計圖,復式別墅方案推薦
占地:122平方米
豪華高端三層帶地下室別墅設計圖,可帶電梯
占地:210平方米
經濟型實用歐式一層小樓房別墅平房設計圖,11X10米
占地:103平方米
面寬15米的農村三層房屋設計圖,帶別墅效果圖
占地:137平方米左右
豪華大氣三層農村自建房設計圖,經典大氣,百看不厭,新中式風
占地:141.75平方米
100平方米二層中式小別墅設計圖紙級效果圖片
占地:99平方米
2026戶型方正三層農村小別墅設計圖紙(含外觀圖片)
占地:150平方米
獨棟別墅設計戶型圖帶外觀效果圖,雙向樓梯設計
占地:155平方米
推薦:10套新農村自建房設計圖,2026年最新設計
閱讀次數:4825737次
100套鄉村別墅圖片大全,2026年最新設計
閱讀次數:2492203次
6款農村蓋一層平房的設計圖,10萬元就能建起來
閱讀次數:1852637次
這11個一層農村自建房別墅火爆了朋友圈!我最喜歡戶型十!你呢
閱讀次數:750268次
農村6萬元建一層小別墅圖,你敢相信嗎
閱讀次數:567686次
農村5萬塊就能自建房,6套普通房子設計圖分享,你沒看錯!
閱讀次數:419410次
8套農村漂亮三間平房圖片,非常適合在農村修建!
閱讀次數:411197次
農村自建房化糞池怎么做?附方案及施工過程
閱讀次數:391783次
農村一層三間平房設計圖,告別土氣養老房,讓人忍不住點贊
閱讀次數:350581次
新農村二層樓房圖片造價12萬,挑一套回家建房吧!
閱讀次數:349126次
