
|
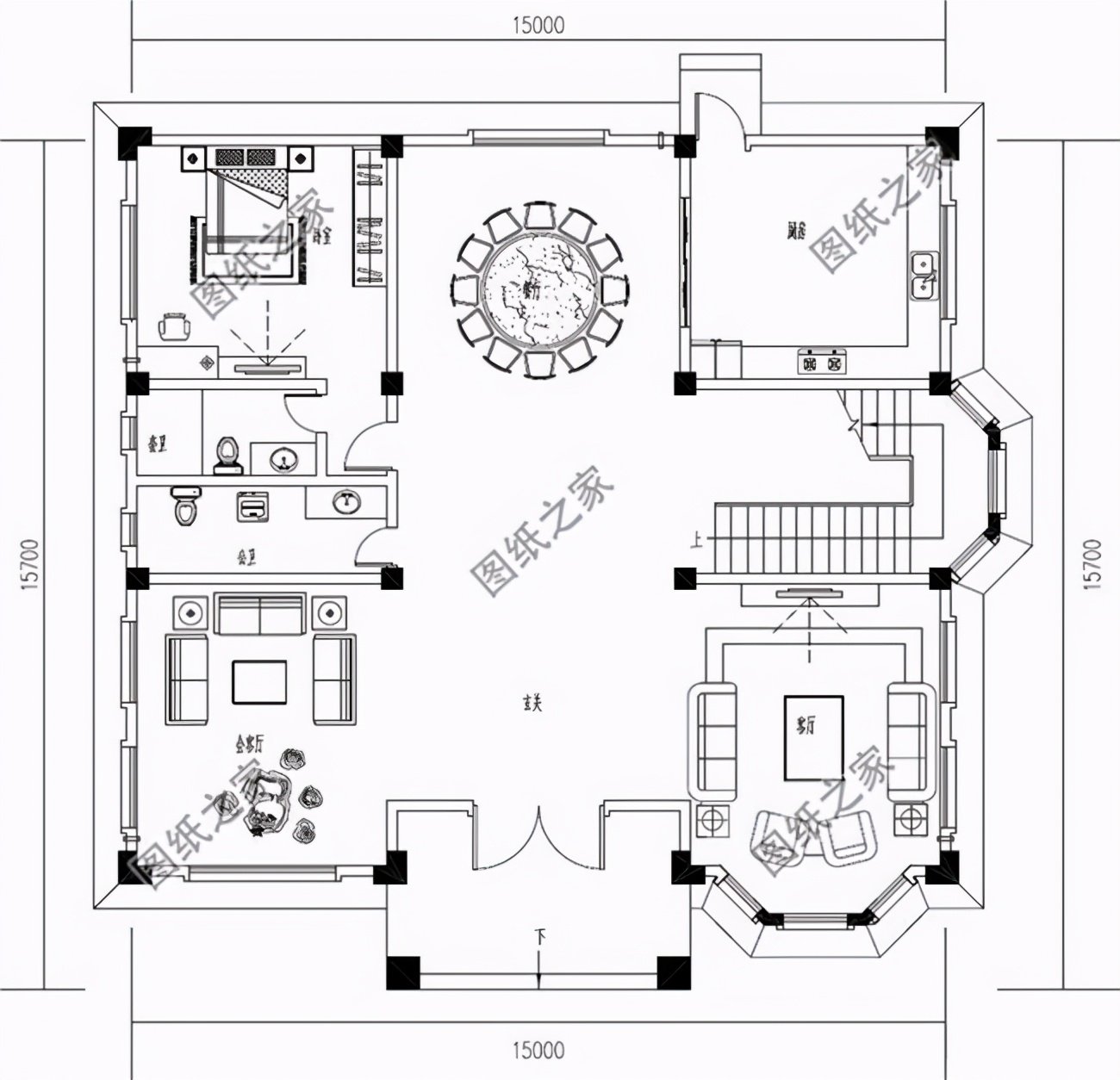
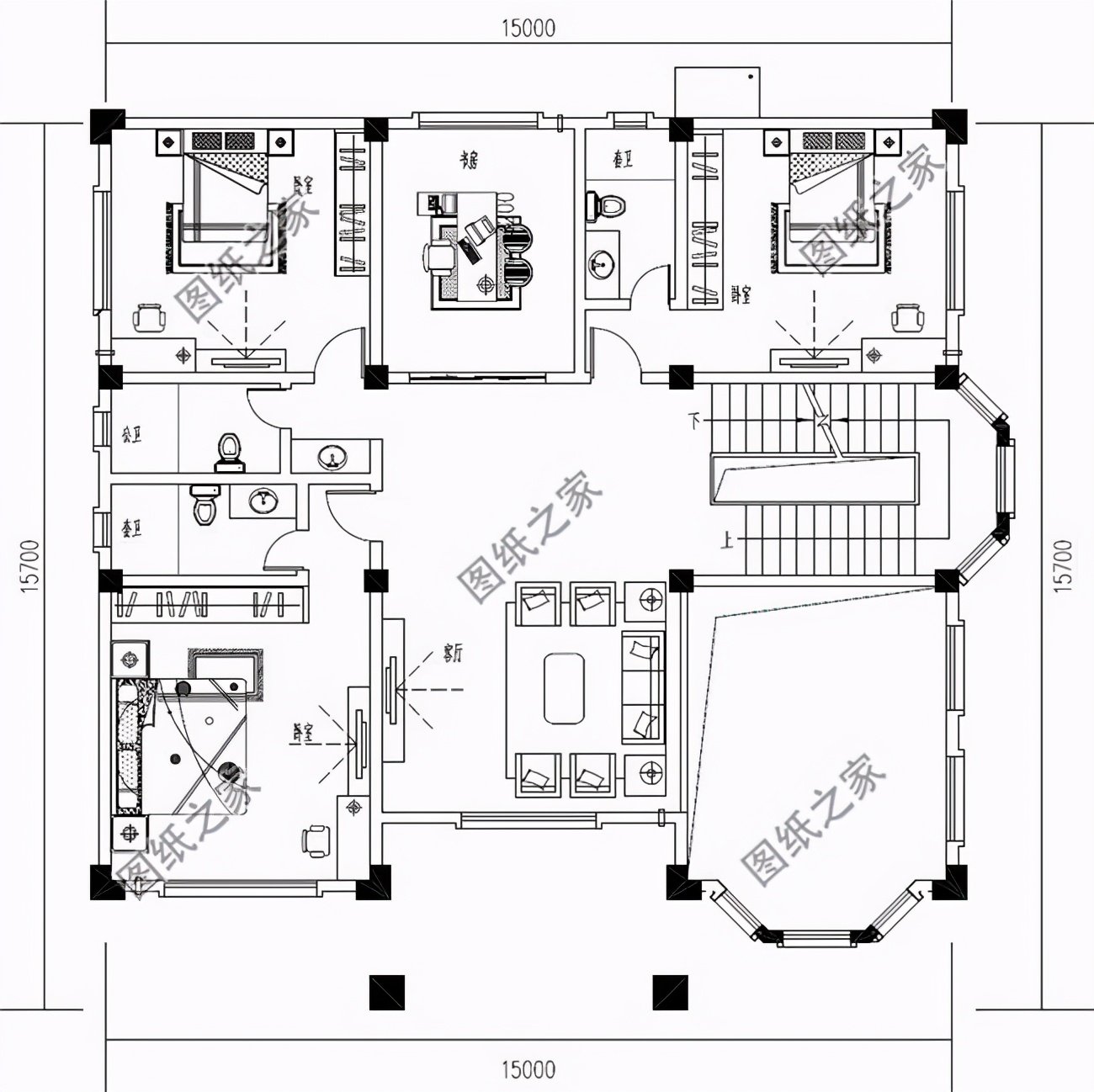
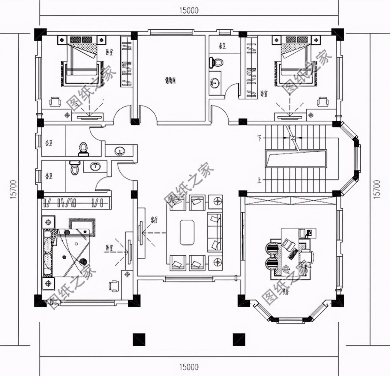
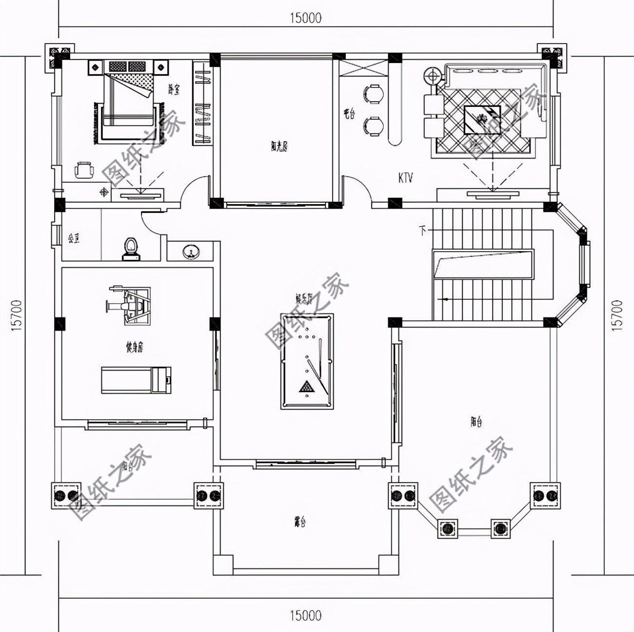
農村自建房,一般都是二層,三層為主,也有很多人喜歡建的是四層別墅,農村四層別墅外觀上看起來都比較的豪氣,外觀高低錯落,別致大方,超大的露臺等,既舒適,又是品味的象征。如果對生活有更高品質的追求,不妨建一棟四層別墅,絕對是讓人眼前一亮的。下面來看看這三款有復式設計的農村四層自建房圖,看看你喜不喜歡? 第一款:鄉村高檔四層豪華別墅設計圖以及戶型圖,外觀大氣![]() ![]() ![]() 一層不帶餐廳廚房,餐廳廚房設計到了三層,更適合四層布局,含全套CAD設計施工圖,別墅氣派豪華。由于占地面積不大,只能加層高,才能滿足家庭所有成員的需求。落地窗和多個窗戶設計,優化室內的采光和通風,不會讓室內顯得陰暗擁擠。除了必要的生活功能空間外,該戶型還設有了健身房、娛樂室、KTV室等休閑娛樂功能,生活之余增加休閑活動。 占地面積:11.8m*14.1m,147平方米左右; 建筑層高:四層; 建筑高度:16.05米(含屋頂); 設計功能: 一層戶型:大廳、客廳、臥室(帶衛生間)、KTV(帶衛生間)、過道、衛生間、娛樂室; 二層戶型:客廳上空、客廳、臥室(帶衛生間)x3、衣帽間、陽臺; 三層戶型:客廳、餐廳、廚房、臥室(帶衛生間衣帽間)、臥室(帶衣帽間)、臥室、衛生間、露臺; 四層戶型:客廳、娛樂室、健身房、衛生間、露臺 ![]() ![]() ![]() 第二款:新款農村四層復式別墅設計圖以及戶型圖,外立面清新別致![]() ![]() ![]() 這款別墅擁有經典的歐式外觀,大氣的建筑線條、巍峨的柱式設計、唯美的弧形落地窗、層次錯落的露臺陽臺,整體氣派細節精致。最亮眼的設計就在于別墅的門柱設計,直通三層,夜幕降臨,室內暖融融的燈光亮起,絕對是整個鎮上最耀眼的一棟 占地面積:15m*15.7m,207平方米左右; 建筑層高:四層; 建筑高度:16.48米(含屋頂); 設計功能: 一層戶型:玄關、客廳、會客廳、廚房、餐廳、臥室(帶衣帽間)、衛生間; 二層戶型:客廳上空、客廳、書房、臥室(帶衛生間)x2、臥室、衛生間; 三層戶型:客廳、書房、儲物間、臥室(帶衛生間)x2、臥室、衛生間; 四層戶型:娛樂廳、KTV、健身房、陽光房、臥室、衛生間、陽臺、露臺 ![]() ![]() ![]() ![]() 第三款:最新高端農村四層別墅外觀效果圖及戶型圖,帶土灶房,![]() 復式挑空客廳,父母養老房的上上之選!外觀上,屋頂為鋪灰色釉面瓷瓦,主墻面裝飾采用白真石漆裝飾,墻面采用部分立體浮雕構件,外觀顯大氣。入戶設左側設客廳,方便家人日常交流;旋轉樓梯提升別墅檔次;土灶保留農村傳統,二層3個臥室,主次分明,滿足家人居住需求;挑空客廳,增加室內通透感。 占地面積:15.96m*15.28m,174.08平方米左右; 建筑層高:四層; 建筑高度:16.286米(含屋頂); 設計功能: 一層戶型:入戶門廳、客廳、餐廳、廚房、土灶房、茶室(帶衛生間)、臥室、衛生間; 二層戶型:客廳上空、臥室(帶衛生間)、臥室x2、衛生間、陽臺x2; 三層戶型:起居室、書房、臥室(帶衛生間)x2、臥室x2、衛生間、陽臺x2; 四層戶型:起居室、臥室x2、臥室(帶衛生間)、衛生間、露臺、陽臺 ![]() ![]() ![]() ![]() 以上喜歡哪款?可以分享給家人看看,現在選擇一款,過完年就能建了。
圖紙之家-專注農村別墅/自建房設計18年,集合國內200余位經驗豐富的設計師,被評為口碑最好的農村建筑設計公司! |

現代風平屋頂三層半農村小別墅設計圖,面寬僅7米
占地:90平方米
現代簡約時尚二層帶超大露臺農村別墅戶型,既可以休閑又可晾曬
占地:100.06平方米
農村建房二樓設計圖,占地百平帶配房設計,顏值高布局好
占地:103.11平方米
極簡大氣二層別墅設計圖,15米面寬,簡約大氣,年輕人的最愛!
占地:150平方米
歐式二層5大間別墅設計圖,新穎獨特的外觀,面寬20米
占地:180.14平方米
110平方米新農村三層房屋設計圖紙,含效果圖,帶車庫
占地:113平方米
新農村三層房屋設計圖紙大全,新農村住宅圖紙
占地:108平方米
農村二層仿古尖屋頂別墅設計圖,外觀古樸耐看
占地:87平方米左右
面寬12米三層自建房別墅設計圖,廚房在前面,農村施工隊都能建
占地:138.18平方米
12.5乘12米大氣優雅二層自建房設計圖,精美舒適布局實用
占地:149.27平方米
新農村歐式時尚二層別墅設計圖紙,120平方米自建房
占地:多種戶型
經濟實用型二層農村小別墅設計圖,造價25萬內,外觀看起來時尚
占地:120平方米
二層復式農村別墅設計圖,進深12米,戶型堪稱完美
占地:193.2平方米
復式、旋轉樓梯三層別墅設計方案圖,戶型合理、實用
占地:138平方米
新款現代一層小別墅設計圖,農村自建平房推薦戶型
占地:多戶型可選
農村中式二層4開間別墅圖紙設計方案圖,帶車庫戶型
占地:198平方米
復式挑空現代簡約風三層別墅設計圖,簡單時尚最受年輕人最愛
占地:149.7平方米
預算20萬的農村三層房屋設計圖方案,帶外觀效果圖
占地:115平方米
一層雙拼別墅獨立入戶+共用墻,兄弟合建,施工隊直呼太省料
占地:269.43平方米
120平方米農村四層別墅施工設計圖紙及效果圖
占地:120平方米
推薦:10套新農村自建房設計圖,2026年最新設計
閱讀次數:4825737次
100套鄉村別墅圖片大全,2026年最新設計
閱讀次數:2492203次
6款農村蓋一層平房的設計圖,10萬元就能建起來
閱讀次數:1852637次
這11個一層農村自建房別墅火爆了朋友圈!我最喜歡戶型十!你呢
閱讀次數:750268次
農村6萬元建一層小別墅圖,你敢相信嗎
閱讀次數:567686次
農村5萬塊就能自建房,6套普通房子設計圖分享,你沒看錯!
閱讀次數:419410次
8套農村漂亮三間平房圖片,非常適合在農村修建!
閱讀次數:411197次
農村自建房化糞池怎么做?附方案及施工過程
閱讀次數:391783次
農村一層三間平房設計圖,告別土氣養老房,讓人忍不住點贊
閱讀次數:350581次
新農村二層樓房圖片造價12萬,挑一套回家建房吧!
閱讀次數:349126次
