
|
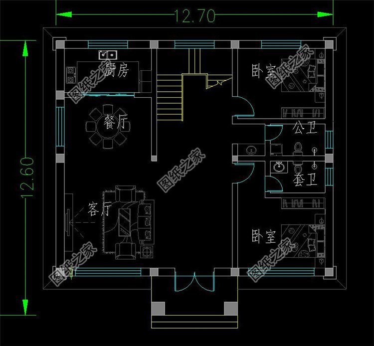
隨著人們經濟條件的改善,越來越多的人加入到老家建房大隊中,但是這么多的建筑風格、戶型,該怎么選擇一款最適合自家的呢?今天介紹三款農村別墅,淺色為主、深色為輔,典雅大氣、更貼近自然,符合國人的審美, 在鄉墅建房大隊中頗受喜愛,跟小編一起來了解下吧! 第一款:帶堂屋設計一層新農村自建別墅效果圖以及戶型圖,歐式風格![]() 色彩比較明亮的一款歐式風格別墅,屋頂藍色斜坡更顯別致,老虎窗為點睛之筆。八角窗的設計,讓整個建筑非常時尚又舒服。入戶是堂屋設計,可擺放神位,非常適合農村生活習慣。客廳和餐廳通透明亮,通風采光極佳。4室二廳二衛的格局,基本滿足農村三代同堂居住需求。 占地面積:18.76m*11.66m,198.41平方米左右; 建筑層高:一層; 建筑高度:6.34米(含屋頂); 設計功能: 一層戶型:堂屋、客廳、娛樂區、廚房、餐廳、臥室(帶衣帽間、衛生間)、臥室x3、衛生間x2 ![]() 第二款:最漂亮的簡單實用一層四開間小別墅設計圖以及戶型圖,4臥2廳帶玄關![]() 年輕人都喜歡。外墻僅用簡單的米黃色噴漆裝飾,底部采用棕色文化石做基腳,藍色的屋面瓦,精致美觀。建筑入戶設計玄關,和寬敞的客廳,建筑預留四間臥室,分別位于建筑的兩個角落,互不打擾。 占地面積:13.5m*10.8m,138.82平方米左右; 建筑層高:一層; 建筑高度:7.987米(含屋頂); 設計功能: 一層戶型:玄關、客廳、臥室x4、廚房、餐廳 ![]() 第三款:清新脫俗二層簡歐風格設計圖以及戶型圖,歐式設計![]() 在村里絕對是頭一棟,人人都羨慕,要說農村建房什么風格最多,那無疑就是歐式。經典大方的造型,加上各種裝飾線條搭配,非常有氣勢。別墅外墻主體用米黃色真石漆裝飾,經典暖色調,建筑美而溫馨。屋頂是大紅色琉璃瓦瓦,清新自然,十分賞心悅目。布局合理緊湊,空間利用率極高。很符合農村生活。 ![]() ![]() 第四款:面寬15米新農村二層中式自建房設計圖以及戶型圖,挑空復式客廳![]() 外觀圖大氣時尚。新中式風格外觀,不過時,簡潔美觀耐看.一層戶外帶門庭,采用落地窗形式,日照充足,采光性能好,老人房朝南帶獨立衛生間,功能實用,適應老人的生活起居。二層挑空客廳,功能布置齊全,滿足家中各人年齡段的人使用需求。 占地面積:15.3m*15.05m,170.636平方米左右; 建筑層高:二層; 建筑高度:10.733米(含屋頂); 設計功能: 一層戶型:客廳、廚房、餐廳、儲藏室、活動室、臥室(帶衛生間)、衛生間; 二層戶型:客廳上空、起居室、臥室(帶衛生間)、臥室x3、衛生間、陽臺x2 ![]() ![]() 以上就是別墅設計圖以及戶型圖,喜歡的記得家里人看看!
圖紙之家-專注農村別墅/自建房設計18年,集合國內200余位經驗豐富的設計師,被評為口碑最好的農村建筑設計公司! |

漂亮實用三層新農村小別墅設計圖紙,占地150平米,帶露臺,從哪
占地:150平方米
120平方米農村四層別墅設計圖,含全套施工圖
占地:120平方米
農村160平四間兩層樓房設計圖,全套施工圖+外觀效果圖片
占地:160平方米
占地70平方米的三層獨棟別墅設計圖,小戶型自建房屋效果圖
占地:70平方米左右
125平方米復式三層別墅房屋設計圖,房間多,采光好
占地:125平方米
奢華歐式二層樓房設計圖,入戶設有玄關,一層大窗設計
占地:190平方米
農村二間二層小別墅設計方案,精而美的經典樣式不容錯過
占地:115.32平方米
農村二層復式小別墅設計,進深12米,農村建房最受歡迎的款
占地:149.096 平方
2026最新兄弟簡歐雙拼別墅設計圖紙,單戶130平米左右
占地:260平方米
精致時尚一層雙拼別墅設計圖,造價實惠,起居互不打擾
占地:369.54平方米
2026新中式農村三層別墅圖,外觀漂亮,看一眼就愛上
占地:240平方米
120平方米農村漂亮實用的兩層別墅設計圖紙,含外觀圖片
占地:120平方米
110平方米新農村三層別墅設計圖,含外觀效果圖
占地:109平方米
西班牙風格農村二層樓房設計圖及效果圖,實用美觀
占地:170平方米
鄉村兄弟二層小戶型雙拼房屋別墅設計圖,造價低,面積小
占地:多種戶型
50萬左右農村三層別墅設計圖,歐式的外觀大氣沉穩
占地:150平方米
200多平方米新農村雙拼別墅設計圖紙,堂屋和樓梯共用
占地:207平方米左右
150平米左右農村二層房屋設計圖,造價25萬左右漂亮實用
占地:150平方米
經典小戶型新農村房屋住宅設計圖,10萬左右
占地:80平方米
中式二層三合院設計圖紙含外觀效果圖片,大氣又實用
占地:216.04平方米
推薦:10套新農村自建房設計圖,2026年最新設計
閱讀次數:4825737次
100套鄉村別墅圖片大全,2026年最新設計
閱讀次數:2492203次
6款農村蓋一層平房的設計圖,10萬元就能建起來
閱讀次數:1852637次
這11個一層農村自建房別墅火爆了朋友圈!我最喜歡戶型十!你呢
閱讀次數:750268次
農村6萬元建一層小別墅圖,你敢相信嗎
閱讀次數:567686次
農村5萬塊就能自建房,6套普通房子設計圖分享,你沒看錯!
閱讀次數:419410次
8套農村漂亮三間平房圖片,非常適合在農村修建!
閱讀次數:411197次
農村自建房化糞池怎么做?附方案及施工過程
閱讀次數:391783次
農村一層三間平房設計圖,告別土氣養老房,讓人忍不住點贊
閱讀次數:350581次
新農村二層樓房圖片造價12萬,挑一套回家建房吧!
閱讀次數:349126次
