
|
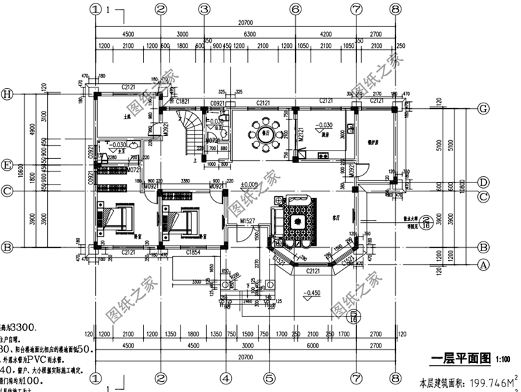
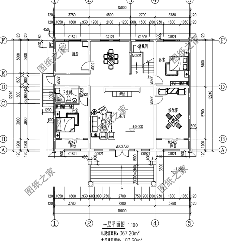
正如一百個人心中有一百個建房款式,不同的人的審美標準也是不一樣的。農村的房子建的各式各樣,有的喜歡中規中矩的,也有的喜歡造型特別的。今天給大家推薦的這三款一般農村二層房效果圖,看上去就讓人喜歡,但室內布局卻別具一格,非常吸引人眼光,下面一起來看看吧。 戶型一:農村二層別墅設計圖,中式風格設計,占地175平米左右圖紙介紹:這款二層自建房占地175平方米左右,中式風格,面積不大,清新自然,風格爽利,而且造型又不復雜,建造成本也不高,非常適合自己建,漂亮又耐看,功能設計非常齊全,布局大方合理,精致戶型,動靜分明空間,舒適格局,南北通透、四面采光,自在生活清新享受 占地面積:15.8m*11.8m,175平方米左右; 建筑層高:二層; 建筑高度:10.2米(含屋頂); 設計功能: 一層戶型:堂屋、客廳、廚房、餐廳、臥室、衛生間、洗衣房; 二層戶型:客廳、臥室(帶衛生間)、臥室x2、衛生間、露臺; ![]() ![]() ![]() ![]() 戶型二:農村二層別墅設計圖,坡屋頂設計,外觀凹凸有致圖紙介紹:這款二層小樓占地180平米左右,整體外觀凹凸有致,紅色的坡面屋頂與暖黃色的墻壁交相呼應,即使經過歲月風雨的侵蝕,也依舊煥然一新 占地面積:15.0m*12.2m,180平方米左右; 建筑層高:二層; 建筑高度:9.3米(含屋頂); 設計功能: 一層戶型:客廳、餐廳、廚房、臥室×2、娛樂室、衛生間、儲藏間; 二層戶型:客廳、臥室×4、陽臺、書房、衛生間、陽臺×2; ![]() ![]() ![]() ![]() 戶型三:農村四間二層小洋樓設計圖,歐式風格,占地200平米圖紙介紹:這款四間二層小洋樓占地200平米左右,歐式風格,十分洋氣,讓普通的我們也能住上高大上的別墅。不冷不熱正是建房的好時候,這款農村別墅適合建在北方,帶土炕和鍋爐房,冬天把屋子燒的暖暖的,待在里面最舒服不過了。還有二樓的大露臺和陽臺設計,方便了日常的晾曬和乘涼小憩。 占地面積:20.7m*10.8m,200平方米; 建筑層高:二層; 建筑高度:10.2米(含屋頂); 設計功能: 一層戶型:土炕,主臥(主衛),臥室,公衛,廚房,餐廳,客廳,鍋爐房; 二層戶型:臥室X4,公衛,主臥(主衛),露臺,陽臺,客廳,客廳上空; ![]() ![]() ![]() ![]() 不知道這三款戶型大家喜歡哪一款?歡迎下方評論留言。
圖紙之家-專注農村別墅/自建房設計18年,集合國內200余位經驗豐富的設計師,被評為口碑最好的農村建筑設計公司! |

農村一層小別墅設計圖,經濟大氣,16米乘9米
占地:124.12平方米
農村小型四合院設計效果圖及施工圖,傳統中式,四面建房
占地:220平方米
130平新農村三層房屋設計圖紙,預算30萬以內,蓋房推薦
占地:132平方米
簡單的二層樓房圖片及設計方案,自建樓房必看
占地:140平方米
農村一層大別墅施工圖,18米乘12米,讓生活充滿儀式感
占地:216平方米
70平農村小戶型二層別墅設計圖,小宅基地的福音
占地:70平方米
三層新中式別墅建筑設計圖紙及圖片,11.66m*9.76m,典雅耐看
占地:114平方米
高顏值農村二層別墅設計圖,顏值在線造價不高,建房好選擇!
占地:216.93平方米
偏中式徽派的二層房屋農村別墅設計圖,馬頭墻小青瓦
占地:123.36平方米
驚艷全村的三層別墅設計圖,12×16米美觀大氣布局超合理
占地:179.8平方米
簡約大氣農村自建三層別墅設計圖,布局合理,很適合農村人自建
占地:139.471平方米
2026最新兄弟簡歐雙拼別墅設計圖紙,單戶130平米左右
占地:260平方米
100平方建房子設計圖及效果圖,簡單實用的戶型設計
占地:97.3平方米
140平方米新農村復式自建房子,三層別墅建筑圖紙及效果圖
占地:138平方米
130平方米別墅設計圖紙(含外觀效果圖,)三層別墅設計方案
占地:135平方米
爆火農村養老房設計:16 米面寬一層戶型,自住養老全拿捏
占地:169.87平方米
90平方米新農村住宅設計二層小別墅設計圖紙11x9米
占地:90平方米
260平方米歐式四層別墅設計圖20X18米,造價108萬
占地:260平方米
最耐看的二層別墅設計圖,15米寬12米深,方正大氣經濟美觀!
占地:180平方米
帶地下室獨棟三層高端別墅房圖紙設計圖,復式客廳旋轉樓梯
占地:146.145平方米
推薦:10套新農村自建房設計圖,2026年最新設計
閱讀次數:4825737次
100套鄉村別墅圖片大全,2026年最新設計
閱讀次數:2492203次
6款農村蓋一層平房的設計圖,10萬元就能建起來
閱讀次數:1852637次
這11個一層農村自建房別墅火爆了朋友圈!我最喜歡戶型十!你呢
閱讀次數:750268次
農村6萬元建一層小別墅圖,你敢相信嗎
閱讀次數:567686次
農村5萬塊就能自建房,6套普通房子設計圖分享,你沒看錯!
閱讀次數:419410次
8套農村漂亮三間平房圖片,非常適合在農村修建!
閱讀次數:411197次
農村自建房化糞池怎么做?附方案及施工過程
閱讀次數:391783次
農村一層三間平房設計圖,告別土氣養老房,讓人忍不住點贊
閱讀次數:350581次
新農村二層樓房圖片造價12萬,挑一套回家建房吧!
閱讀次數:349126次
