
|
家里老房子舊了,想建個新房子。如果你放不下你的家鄉,放不下家鄉里的人們,那就回鄉建一棟別墅吧,讓父母安享晚年,今天給大家分享的是幾套農村二層簡約房子圖片,外觀漂亮、造型簡單、布局功能齊全,是農村建房首選,基本使用所有的農村建房地基。 第一款:好看的二層農村房子圖片好看的二層農村房子圖片及施工圖紙,帶車庫,有一點東南亞熱帶風格的氣息,外觀的配色非常的時尚,青白色系的搭配,把家的溫馨感體現的淋漓盡致。
占地面積:12.6m*11.7m,134平方米左右; 建筑層高:二層; 建筑高度:10.37米(含屋頂); 設計功能: 一層戶型:客廳、餐廳、廚房、衛生間、臥室、車庫; 二層戶型:起居室、臥室x3、衛生間、陽臺、露臺;
第二款:110平左右二層小洋樓設計圖本戶型為110平左右二層樓房設計圖,外觀現代、時尚,適合絕大部分家庭的需求。
占地面積:12.0m*9.0m,108平方米左右; 建筑層高:二層; 建筑高度:9.0米(含屋頂); 設計功能: 一 層:玄關、客廳、臥室、廚房、餐廳、臥室、衛生間、車庫; 二 層:休息區、主臥(帶衛生間)、臥室x2、書房、露臺;
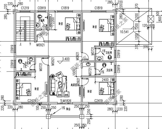
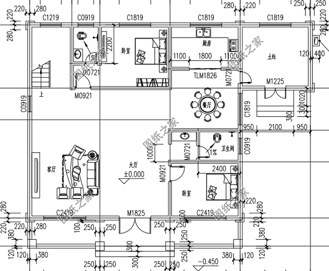
第三款:新農村兩層半別墅設計方案新農村兩層半別墅設計方案,這款戶型設計得比較時尚,簡約歐式風格,室內空間的設計中規中矩,設有現代功能的設計。
占地面積:16m*12.6m,152平方米左右; 建筑層高:二層; 建筑高度:10.54米(含屋頂); 設計功能: 一層戶型:大廳、客廳、廚房、餐廳、土灶、臥室(帶衛生間)、臥室; 二層戶型:起居室、臥室(帶衛生間)x3、臥室、衛生間、陽臺;
以上就是農村二層簡約房子圖片,外觀漂亮、造型簡單、布局功能齊全,大家還想看哪款,歡迎下方留言。 圖紙之家-專注農村別墅/自建房設計18年,集合國內200余位經驗豐富的設計師,被評為口碑最好的農村建筑設計公司! |

農村新戶型房子設計圖二層,占地120平米,布局實用
占地:120.29平方米
一層中式七字型房屋設計圖,帶院子經典設計,耐看不過時
占地:163.18平方米
90平方米新農村住宅設計二層小別墅設計圖紙11x9米
占地:90平方米
農村二層L戶型農村別墅!設計圖簡約時尚又大氣,住著超舒適
占地:170.55平方米
二層雙拼別墅外觀效果圖及施工圖,帶露臺,14乘12米
占地:168平方米
農村兄弟合建一層雙拼房別墅圖,對稱設計,工整大方!
占地:170平方米
農村三層樓房圖造價26萬,客廳中空,占地90平米
占地:90平方米
農村四層樓房設計圖,占地120平方米,歐式風格,高端大氣
占地:120平方米
2026最新款獨棟中西雙餐廳三層別墅設計圖,精巧實用好看不貴
占地:226.12平方米
南方新農村三層房屋設計圖大全,預算30萬內
占地:145平方米
小占地二層徽派別墅設計圖,白墻黛瓦韻味十足,太氣派了
占地:89.6平方米
2款現代風格農村兩層別墅設計圖,時尚漂亮
占地:多戶型可選
農村仿古四合院設計圖自建房,外觀中式古樸典雅
占地:378平方米
農村二層別墅設計圖,帶外觀效果圖,兄弟自建推薦
占地:多種戶型
經典戶型二層農村小別墅設計圖,造價25萬內
占地:140平方米
農村三層復式樓房住宅設計圖,私人別墅設計
占地:165平方米
12x13米豪華三層農村別墅設計圖,宅基地上的貴族人生
占地:156平方米
造價40萬內三層別墅房屋設計方案,設計圖+外觀效果圖
占地:150平方米
西班牙風格農村二層樓房設計圖及效果圖,實用美觀
占地:170平方米
150平米經典二層中式別墅設計圖 ,現代中式相結合
占地:154平方米左右
推薦:10套新農村自建房設計圖,2026年最新設計
閱讀次數:4825737次
100套鄉村別墅圖片大全,2026年最新設計
閱讀次數:2492203次
6款農村蓋一層平房的設計圖,10萬元就能建起來
閱讀次數:1852637次
這11個一層農村自建房別墅火爆了朋友圈!我最喜歡戶型十!你呢
閱讀次數:750268次
農村6萬元建一層小別墅圖,你敢相信嗎
閱讀次數:567686次
農村5萬塊就能自建房,6套普通房子設計圖分享,你沒看錯!
閱讀次數:419410次
8套農村漂亮三間平房圖片,非常適合在農村修建!
閱讀次數:411197次
農村自建房化糞池怎么做?附方案及施工過程
閱讀次數:391783次
農村一層三間平房設計圖,告別土氣養老房,讓人忍不住點贊
閱讀次數:350581次
新農村二層樓房圖片造價12萬,挑一套回家建房吧!
閱讀次數:349126次
