
|
重視家庭觀念,居家風水,人文素養的家中,新中式別墅是最好的選擇,古香古色,不但是房屋,也是對華夏文化的喜愛和堅持不懈。今天小編就為大家帶來了三款三層新中式別墅,感興趣的朋友們隨我一起來看看吧。 別墅圖一介紹:農村三層中式仿古別墅設計圖紙盡顯東方韻味之美!房屋整體試圖呈現一種新中式的風格。尤其在窗戶和圍欄的裝飾上,使用了很多中式傳統紋樣。白色的外墻配上灰色的瓦片,再點綴木色裝飾,整體色調顯得十分協調。一層廚房留了一個直接通向室外的門挺好的,采購回來能夠直接將食材拿進廚房,不需要經過客廳餐廳;餐廳靠近廚房,聯系便捷;二層是生活區,四間臥室圍繞一間客廳,合理分配,房間多人口再多都不用愁。書房給主人提供了一個安靜獨立的空間學習、辦公。三層同樣設計了四間臥室,棋牌室便于家人聯絡感情,南側設計了一塊大露臺,增加了室內通風性,也方便晾曬衣服。 占地面積:11m*12.3m,158.64平方米左右; 建筑層高:三層; 建筑高度:12.6米(含屋頂);
別墅效果圖 設計功能:
一層戶型圖 一層戶型:茶室、客廳、廚房、餐廳、臥室、衛生間;
二層戶型圖 二層戶型:客廳、書房、臥室(帶衣帽間)x2、臥室x2、衛生間、陽臺;
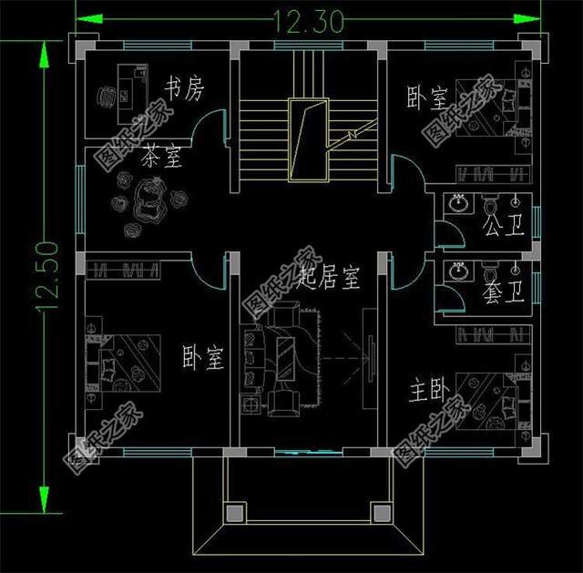
三層戶型圖 三層戶型:棋牌室、臥室(帶衣帽間)、臥室x3、衛生間、露臺; 別墅圖二介紹:12.3X12.5米三層新中式風自建別墅圖對稱性設計方案,室內空間整齊舒服。鄉村新中式別墅愈來愈多。淺色系內墻涂料配搭深棕色建筑涂料,與乳白色和灰黑色對比,具備中國中國傳統建筑的元素。獨棟別墅選用對稱性合理布局,落地玻璃窗大規模應用,陽光照射充足。設計風格清爽,表面方方正正,端莊大氣。房子通道是過廳室內空間的神位,與大客廳隔著一堵墻,防止開門見山,通道室內空間光亮。廚房餐廳鄰近設定,便捷就餐。有2間臥房,便捷老年人在家里定居;二樓有三間臥房,主臥室向南有單獨洗手間,大客廳南端有主題活動生活陽臺。設定茶社小書房,便捷接待客人,三層布局三間臥房,一間小書房,南端為主題活動陽臺。回家了建一棟改進家庭生活環境,和親人共享幸福生活。 占地面積:12.3m*12.5m,135.3平方米左右; 建筑層高:三層; 建筑高度:12.72米(含屋頂);
別墅效果圖 設計功能:
一層平面圖 一層戶型:客廳、神位、餐廳、廚房、臥室(帶衛生間)、臥室、衛生間;
二層平面圖 二層戶型:起居室、茶室、書房、臥室(帶衛生間)、臥室x2、衛生間、陽臺;
三層平面圖 三層戶型:起居室、臥室x3、書房、健身區、衛生間、露臺; 別墅圖三介紹:偏徽派風格民居三層農村住宅設計圖南北方都能夠建,墻面黛瓦古樸典雅簡潔。外墻面磚應用中國傳統式的乳膠漆,配上黑瓦,更為古典風格。是非常典型的徽式民宅,再加上當代玻璃欄桿元素,沒有絲毫違和感,更有時尚潮流感。餐廳與廚房相鄰,用餐便捷。樓梯間配有儲物間,便捷主人家儲放物件;針對一樓而言,二樓或是以臥房為主導,起居室坐落于正中間,十分便捷,挨近生活陽臺,光照自然通風極好;三樓有很大露臺設計,趣味性100分,在冬日的午后沐浴在陽光下的感覺是多么溫暖。 占地面積:11.3m*8.76m,101.01平方米左右; 建筑層高:三層; 建筑高度:11.608米(含屋頂);
別墅效果圖 設計功能:
一層平面圖 一層戶型:客廳、儲藏室、餐廳、廚房、臥室、衛生間;
二層平面圖 二層戶型:起居室、活動區、臥室x2、臥室(帶衛生間)、衛生間、陽臺;
三層平面圖 三層戶型:休閑區、臥室x2、衛生間、露臺; 以上就是小編今天帶給大家伙兒的全部內容了,希望你們能夠喜歡,也歡迎大家來下方留言評論。 圖紙之家-專注農村別墅/自建房設計18年,集合國內200余位經驗豐富的設計師,被評為口碑最好的農村建筑設計公司! |

新農村四層房屋設計圖紙,高端大氣,占地150平方米
占地:150平方米
帶堂屋設計一層三合院設計圖,白墻黛瓦古韻悠悠,比高層舒服接
占地:179.37平方米
面寬20米四開間二層別墅,火爆全村的戶型,美好生活的起點
占地:245.73平方米
新農村四合院別墅圖片及戶型方案圖,全套圖紙可施工
占地:154平方米左右
現代風格建房圖紙二層別墅設計方案,外觀百看不厭
占地:多戶型可選
90平-100平小戶型一層三間平房農村別墅設計圖方案戶型
占地:多戶型可選
150平米二層鄉村小別墅圖,戶型合理,外觀清新淡雅
占地:150平方米
農村三層樓房圖造價26萬,客廳中空,占地90平米
占地:90平方米
帶地下室的農村自建三層半歐式別墅設計圖,看著真豪氣!
占地:142.45平方米
90平方米農村二層房屋設計施工圖紙及效果圖,11x8.5米
占地:90平方米
130平方米新農村三層房屋設計圖紙,外觀簡單大方
占地:130平方米
農村一層平房設計圖及效果圖,一層房屋設計方案推薦
占地:270平方米
2026新款新式農村50萬三層別墅圖片,帶地下室,美觀大氣
占地:130平方米左右
30萬以下的經典二層新農村別墅設計圖紙及效果圖,簡單大氣
占地:170平方米
農村18萬元二層小樓圖,占地120平面,戶型緊湊合理
占地:120平方米
兄弟雙拼三層小戶型別墅設計圖紙,160平方米(單戶80平)
占地:163平方米
最漂亮的農村二層小樓設計圖紙,簡約又大氣時尚
占地:120平方米
農村宅基地建房二層別墅設計圖,適合回鄉自建!
占地:137.5平方米
三層平頂現代風格,農村自建房設計圖,可帶電梯,百看不厭
占地:259.55平方米
鄉村典型自建房中式二層四合院別墅設計圖,左右對稱設計
占地:430平方米
推薦:10套新農村自建房設計圖,2026年最新設計
閱讀次數:4825737次
100套鄉村別墅圖片大全,2026年最新設計
閱讀次數:2492203次
6款農村蓋一層平房的設計圖,10萬元就能建起來
閱讀次數:1852637次
這11個一層農村自建房別墅火爆了朋友圈!我最喜歡戶型十!你呢
閱讀次數:750268次
農村6萬元建一層小別墅圖,你敢相信嗎
閱讀次數:567686次
農村5萬塊就能自建房,6套普通房子設計圖分享,你沒看錯!
閱讀次數:419410次
8套農村漂亮三間平房圖片,非常適合在農村修建!
閱讀次數:411197次
農村自建房化糞池怎么做?附方案及施工過程
閱讀次數:391783次
農村一層三間平房設計圖,告別土氣養老房,讓人忍不住點贊
閱讀次數:350581次
新農村二層樓房圖片造價12萬,挑一套回家建房吧!
閱讀次數:349126次
