
|
最近,小編看到一句話,感覺很溫馨想與大家分享:家是一個溫暖的詞。它不僅是我們身體的棲息地,也是我們心靈的港灣。疲憊的鳥兒回到森林里,魚翔淺底,。這些都是對家的渴望,也是我們生活中追求的目的地。正如這句話所說,我們終究要回到家的懷抱。建造舒適的房子是非常必要的。本期小編整理了幾張農村住房圖集。有興趣的朋友可以一起看看! 別墅圖一展示:占地面積:13.26m*15m,198平方米左右; 建筑層高:二層; 建筑高度:8.9米(含屋頂);
正面效果圖
鳥瞰效果圖
側面效果圖 設計功能:
一層戶型圖 一層戶型:門廳、客廳、神位、廚房、餐廳、臥室x3、衛生間;
二層戶型圖 二層戶型:客廳、休閑區、茶區、臥室x4、臥室、衛生間、露臺; 別墅圖二展示:占地面積:11.06m*9.76m,115平方米左右; 建筑層高:二層; 建筑高度:6.5米(含屋頂);
正面效果圖
側面效果圖
鳥瞰效果圖 設計功能:
一層戶型圖 一層戶型:客廳、餐廳、廚房 、臥室x3、衛生間;
二層戶型圖 二層戶型:臥室x3、棋牌室、衛生間、露臺; 別墅圖三展示:占地面積:17.56m*8.5m,174.836平方米左右;
正面效果圖
鳥瞰效果圖
側面效果圖
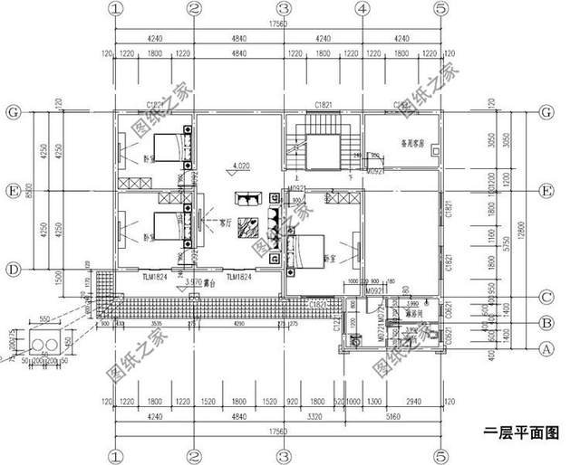
一層平面圖
二層平面圖 二層戶型:客廳、臥室x4、淋浴間、衛生間、露臺; 別墅圖四展示:占地面積:15.56m*13.01m,171平方米左右;
別墅效果圖
一層戶型圖
二層戶型圖 二層戶型:臥室(帶衛生間)、起居室、書房、臥室x2、衛生間、露臺、陽臺; 別墅圖五展示:占地面積:16.0m*13.0m,180平方米左右; 建筑層高:二層; 建筑高度:9.59米(含屋頂);
正面效果圖
鳥瞰效果圖
側面效果圖 設計功能:
一層戶型圖 一層戶型:客廳、餐廳、廚房、衛生間、主臥(帶衛生間,衣帽間)、儲藏間;
二層戶型圖 二層戶型:客廳、主臥(帶衛生間,衣帽間)、臥室x4、衛生間、陽臺、露臺 圖紙之家-專注農村別墅/自建房設計18年,集合國內200余位經驗豐富的設計師,被評為口碑最好的農村建筑設計公司! |

共用中堂雙拼兄弟三層別墅設計圖,簡歐式風格
占地:230平方米
農村小戶型三層復式樓房設計圖,100平左右
占地:100平方米
農村平屋頂三層現代風別墅戶型圖,簡約實用經濟顏值高
占地:111.9平方米
經典的農村三層小樓房設計圖,外觀圖片時尚、精致
占地:100平方米
鄉村高檔四層別墅樓設計圖,二三層復式挑空客廳
占地:148.992平方米
130平方米湖南二層復式自建房屋設計圖紙12x11米
占地:128平方米
農村四層樓房設計圖,占地120平方米,歐式風格,高端大氣
占地:120平方米
簡約而不簡單的二層新中式鄉墅設計圖,占地150平左右
占地:150.78平方米
160平方米歐式一層半別墅施工設計圖紙13X13米
占地:160平方米
經典小戶型二層新農村房屋設計圖紙,客廳中空,造價20萬
占地:94平方米
15萬左右新中式二層別墅設計圖平面圖,占地110平米左右
占地:110平方米
造價40萬三層大氣自建房設計圖紙,鄉村別墅建造圖
占地:159.609平方
農村18萬元二層小樓圖紙,漂亮實用的農村二層樓房設計圖
占地:140平方米
120平方米新農村二層自建房屋設計圖紙大全14x9米
占地:120平方米
10米×13米最好看的農村三層樓房圖,客廳中空
占地:124平方米
新中式農村三層樓房設計圖紙,全套圖紙設計,線條錯落有致
占地:130平方米
小L型新款二層別墅設計圖,復式客廳旋轉樓梯,14米乘13米
占地:182平方米
三層平屋頂別墅房屋設計圖及外觀效果圖
占地:150平方米
160平方米二層自建別墅設計施工建筑圖紙及效果圖,15x11米
占地:163平方米
二層農村雙拼別墅帶露臺設計圖,20×11.8米,單戶110平米
占地:220平方米
推薦:10套新農村自建房設計圖,2026年最新設計
閱讀次數:4825737次
100套鄉村別墅圖片大全,2026年最新設計
閱讀次數:2492203次
6款農村蓋一層平房的設計圖,10萬元就能建起來
閱讀次數:1852637次
這11個一層農村自建房別墅火爆了朋友圈!我最喜歡戶型十!你呢
閱讀次數:750268次
農村6萬元建一層小別墅圖,你敢相信嗎
閱讀次數:567686次
農村5萬塊就能自建房,6套普通房子設計圖分享,你沒看錯!
閱讀次數:419410次
8套農村漂亮三間平房圖片,非常適合在農村修建!
閱讀次數:411197次
農村自建房化糞池怎么做?附方案及施工過程
閱讀次數:391783次
農村一層三間平房設計圖,告別土氣養老房,讓人忍不住點贊
閱讀次數:350581次
新農村二層樓房圖片造價12萬,挑一套回家建房吧!
閱讀次數:349126次
