
|
農村建設大力的開展,使得農村發生了翻天覆地的變化交通的便利,再加上農村與生俱來的鄉村氣息與優美的生態環境吸引著一大批游客在節假日期間帶著家人來觀光旅游享受片刻的休閑。這時候建房建在顯眼的地方,一層改為門臉商鋪,二三樓供自己自住掙錢生活兩不誤的生活這不就是我們理想的生活嘛。本期小編就帶來了四款農村帶商鋪自建房推薦,有興趣的朋友們可以同我一起來看一看~! 別墅圖一展示:占地面積:20m*14.76m,263.1平方米左右; 建筑層高:二層; 建筑高度:9.5米(含屋頂);
正面效果圖
背面效果圖
鳥瞰效果圖
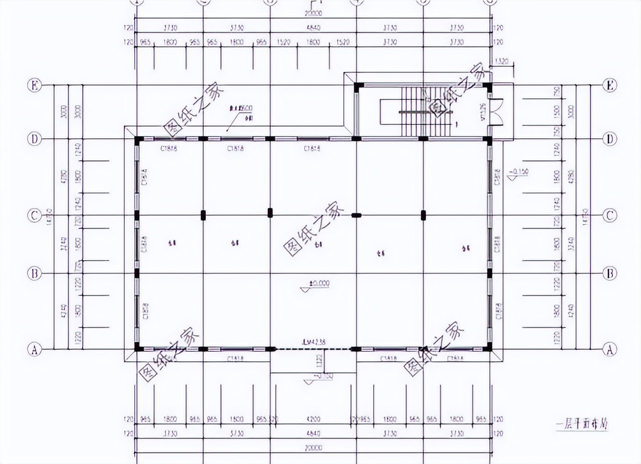
一層戶型圖 一層戶型:商鋪;
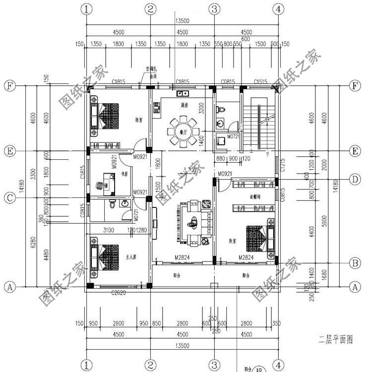
二層戶型圖 二層戶型:客廳、廚房、餐廳、臥室(帶衛生間,衣帽間)、臥室x3、娛樂室、衛生間x2、露臺; 別墅圖二展示:占地面積:13.5m*14.18m,193.05平方米左右;
正面效果圖
鳥瞰效果圖
背面效果圖
一層戶型圖
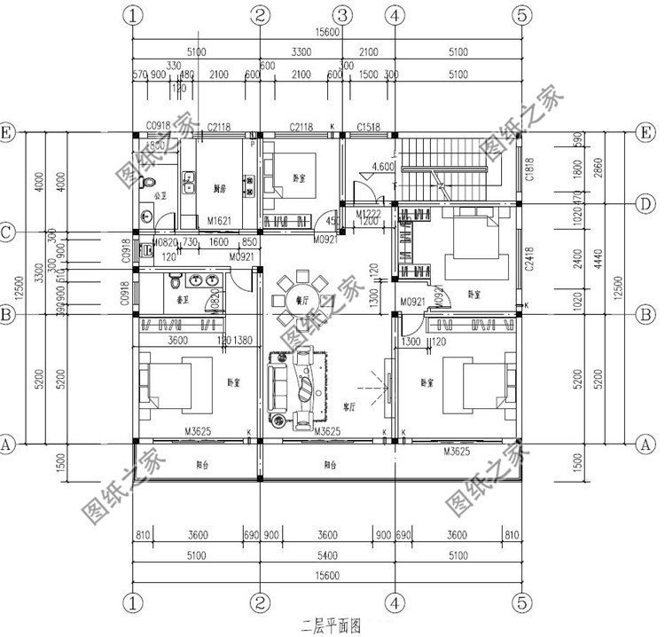
二層戶型圖 二層戶型:客廳、廚房、餐廳、臥室(帶衣帽間)、臥室(帶衛生間)、臥室、書房、衛生間、陽臺;
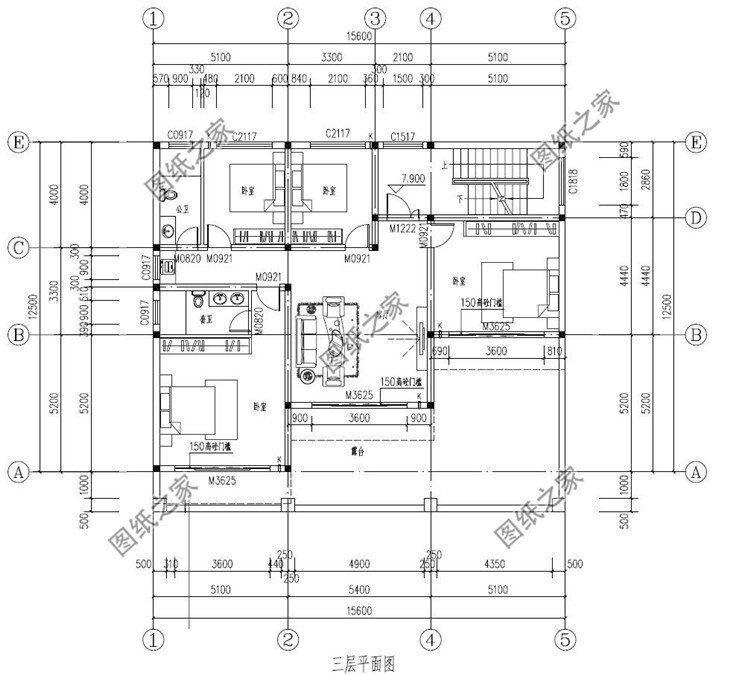
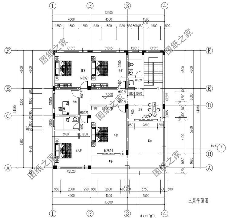
三層戶型圖 三層戶型:茶室、臥室x3、臥室(帶衛生間)、書房、衛生間、露臺; 別墅圖三展示:占地面積:15.6m*12.5m,195平方米左右;
正面效果圖
鳥瞰效果圖
背面效果圖
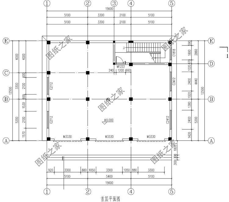
一層戶型圖
二層戶型圖 二層戶型:客廳、廚房、餐廳、臥室x3、臥室(帶衛生間)、衛生間、陽臺;
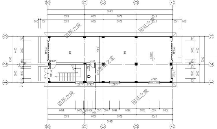
三層戶型圖 三層戶型:客廳、臥室x3、臥室(帶衛生間)、衛生間、露臺; 別墅圖四展示:占地面積:7.3m*19.6m,143.08平方米左右;
正面效果圖
鳥瞰效果圖
背面效果圖
一層戶型圖
二層戶型圖 二層戶型:客廳、餐廳、廚房、臥室烤火房、陽臺;
三層戶型圖 三層戶型:起居室、書房、臥室x3、臥室(帶衣帽間)、衛生間x 圖紙之家-專注農村別墅/自建房設計18年,集合國內200余位經驗豐富的設計師,被評為口碑最好的農村建筑設計公司! |

好看又簡單二層仿古中式四合院樓房設計圖
占地:352平方米
農村小別墅設計圖二層,占地不大顏值高,最適合農村建造。
占地:108.66平方米
帶地下室二層雙拼別墅設計圖,兄弟和睦又省錢,全家人都滿意!
占地:308平方米
面寬11米現代風二層小別墅,平屋頂設計,緊跟潮流時尚前衛
占地:94.43平方米
三十萬農村別墅設計圖帶外觀圖片,30萬造價別墅展示
占地:125平方米
歐式復式型三層別墅施工設計圖紙及效果圖大全
占地:164平方米
農村四層樓房設計圖,占地120平方米,歐式風格,高端大氣
占地:120平方米
L“型”一層自建房小平層設計圖紙,180平方米
占地:179.355平方米
高端大氣四層復式別墅房屋設計圖,含外觀效果圖
占地:270平方米
120多平米三層農村別墅設計圖,把實用做到極致,造價適中
占地:126.85平方米
農村15萬元二層小樓設計圖,造價低,簡潔、好看
占地:90平方米
四層豪華別墅設計圖及效果圖,高端房屋設計方案
占地:250平方米
適合農村自建四合院圖片,中式二層四合院別墅設計施工圖紙
占地:232平方米
現代簡約時尚二層帶超大露臺農村別墅戶型,既可以休閑又可晾曬
占地:100.06平方米
開間12米的三層簡歐別墅設計圖,農村建房布局實用住的舒服
占地:108.15平方米
農村二層半房子設計圖 ,占地110平米和160多平兩個戶型圖
占地:多種戶型
50萬左右農村豪華二層別墅設計圖 ,大廳中空,外觀精美
占地:210平方米
備受好評二層半歐式別墅設計圖,五開間對稱設計,布局合理又實
占地:192.48平方米
2026新款二層別墅房屋設計圖,帶外觀圖片
占地:138平方米
新農村共用堂屋和樓梯的雙拼別墅設計圖紙,戶型布局空間利用率
占地:207平方米左右
推薦:10套新農村自建房設計圖,2026年最新設計
閱讀次數:4825737次
100套鄉村別墅圖片大全,2026年最新設計
閱讀次數:2492203次
6款農村蓋一層平房的設計圖,10萬元就能建起來
閱讀次數:1852637次
這11個一層農村自建房別墅火爆了朋友圈!我最喜歡戶型十!你呢
閱讀次數:750268次
農村6萬元建一層小別墅圖,你敢相信嗎
閱讀次數:567686次
農村5萬塊就能自建房,6套普通房子設計圖分享,你沒看錯!
閱讀次數:419410次
8套農村漂亮三間平房圖片,非常適合在農村修建!
閱讀次數:411197次
農村自建房化糞池怎么做?附方案及施工過程
閱讀次數:391783次
農村一層三間平房設計圖,告別土氣養老房,讓人忍不住點贊
閱讀次數:350581次
新農村二層樓房圖片造價12萬,挑一套回家建房吧!
閱讀次數:349126次
