
|
現在社會生活發展迅速,帶動的生活節奏越來越快,在城市中有許多無形的壓力依附在人民群眾身上。促使更多的人向往農村老家的那種簡單生活,如果您在老家有地不妨回到農村開始建造一棟精致別墅,享受一下舒適愜意的鄉間生活好好的放松一下身心。然而農村建房大多都會選擇二層戶型,因為造價經濟的同時也能滿足一代人的生活習慣,本期小編就向大家介紹三套二層精致小樓,擱誰能不心動? 別墅圖一展示: 開間15.5米,進深9米,一層底部用到深藍色的面磚裝飾,一到二層外墻面用米黃色的真石漆裝飾,鏤空護欄,加強別墅的美觀性,配有雕花大窗,屋面配有老虎窗,有畫龍點睛之妙。用藍色的彎瓦裝飾。整體耐看,清新自然,賞心悅目。 占地面積:15.5m*9.0m,126.52平方米左右; 建筑層高:二層; 建筑高度:9.778米(含屋頂);
別墅效果圖 設計功能:
一層戶型圖 一層戶型:堂屋、客廳、廚房、餐廳、臥室(帶衣帽間)、衛生間;
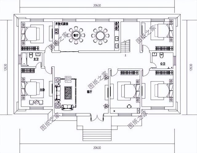
二層戶型圖 二層戶型:臥室(帶衛生間)、書房、臥室x2、衛生間、露臺; 別墅圖二展示:外立面中加入石刻裝飾,大落地窗加上螺旋紋裝飾,顯得沉穩大氣,別具一格的風味,灰色的坡屋頂,經典而養眼,體現了自然田野之中的悠閑自在。 占地面積:20.63m*12.63m,265平方米左右; 建筑層高:二層; 建筑高度:10.63米(含屋頂);
正面效果圖
鳥瞰效果圖
背面效果圖 設計功能:
一層平面圖 一層戶型:客廳、廚房、餐廳、主臥(帶衛生間)、臥室x4、衛生間;
二層平面圖 二層戶型:客廳、娛樂室、臥室(帶衛生間)、臥室x5、衛生間、陽臺; 別墅圖三展示:外墻使用耐用百搭的真石漆裝飾,主體使用暖白色真石漆裝飾而成,屋頂采用深灰色瓦片,這樣的搭配也是非常經典的設計,在農村永遠都不會過氣。室內布局也非常不錯,經濟又使用,不使用那些花里胡哨的東西。 占地面積:15.7m*10.7m,168平方米左右; 建筑層高:二層; 建筑高度:9.3米(含屋頂);
正面效果圖
鳥瞰效果圖
背面效果圖 設計功能:
一層戶型圖 一層戶型:門廳、客廳、廚房、餐廳、儲物間、客房、衛生間;
二層戶型圖 二層戶型:起居室、臥室(帶衛生間)x2、臥室x2、棋牌室、衛生間x2、陽臺; 圖紙之家-專注農村別墅/自建房設計18年,集合國內200余位經驗豐富的設計師,被評為口碑最好的農村建筑設計公司! |

農村新中式別墅設計圖及效果圖,造價25萬左右
占地:95平方米
二層復式雙拼別墅設計圖(客廳中空),含外觀效果圖
占地:195平方米
160平方米新農村自建二層樓房設計圖紙及效果圖,15x11米
占地:160平方米
農家中式小院一層三合院自建房,布局寬敞大氣又舒適
占地:186.07平方米
130平左右三層樓房設計圖,新農村住宅自建推薦
占地:128平方米
150平米經典二層中式別墅設計圖 ,現代中式相結合
占地:154平方米左右
農村自建房別再做傳統客廳!“客廳+茶室”一體設計,寬敞明亮
占地:143.73平方米
120平現代實用三層別墅房屋設計圖,含外觀效果圖
占地:120平方米
背面不開窗二層別墅設計圖,對稱設計簡單好看,眾多建房者的選
占地:183.79平方米
三層農村小別墅設計圖,一層帶商鋪,占地110平米,經濟實用
占地:110平方米
農村三間兩層樓房設計圖,背面不開窗,氣勢上就勝人一籌
占地:153.7平方米
徽派自建房一層設計圖,七字型設計,獨立餐廚便捷實用
占地:171.65平方米
占地160平米的二層簡歐別墅設計圖,外觀圖時尚漂亮
占地:160.28平方米
農村二層半別墅圖片大全,二層半別墅設計圖推薦
占地:160平方米
農村小型四合院設計效果圖及施工圖,傳統中式,四面建房
占地:220平方米
12x13米豪華三層農村別墅設計圖,宅基地上的貴族人生
占地:156平方米
三層別墅40萬左右氣派的外觀效果圖,含全套施工設計圖
占地:161.46平方米
占地90平新中式經濟二層小別墅自建房設計圖,僅15萬
占地:89.3平方米
100平方米左右新農村二層房屋設計建筑CAD圖紙帶外觀效果圖
占地:多戶型可選
100平內簡單精致的小戶型自建房二層設計圖,旋轉樓梯
占地:97.08平方米
推薦:10套新農村自建房設計圖,2026年最新設計
閱讀次數:4825737次
100套鄉村別墅圖片大全,2026年最新設計
閱讀次數:2492203次
6款農村蓋一層平房的設計圖,10萬元就能建起來
閱讀次數:1852637次
這11個一層農村自建房別墅火爆了朋友圈!我最喜歡戶型十!你呢
閱讀次數:750268次
農村6萬元建一層小別墅圖,你敢相信嗎
閱讀次數:567686次
農村5萬塊就能自建房,6套普通房子設計圖分享,你沒看錯!
閱讀次數:419410次
8套農村漂亮三間平房圖片,非常適合在農村修建!
閱讀次數:411197次
農村自建房化糞池怎么做?附方案及施工過程
閱讀次數:391783次
農村一層三間平房設計圖,告別土氣養老房,讓人忍不住點贊
閱讀次數:350581次
新農村二層樓房圖片造價12萬,挑一套回家建房吧!
閱讀次數:349126次
