
|
看再多網上的戶型圖,不是實拍效果終究沒什么感覺,今天就給大家帶來一套農村實拍房子設計圖展示,別墅占地10X10米,占地面積127平方米,建筑面積356平方米,三層建筑很適合農村人生活,坡頂設計大飄窗,住在這樣的房子里,城里人真的只有羨慕的份了!
平面布局圖: 首層布局按照農村人的生活習性進行了整體劃分,餐廳并未與廚房相連,而是單獨設計在了北側,生活更便利。
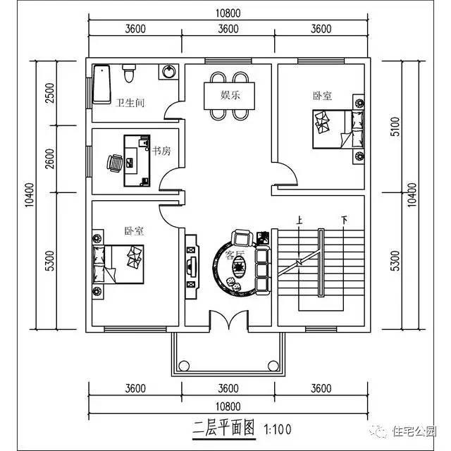
二層兩間臥室一間書房,同時為了照顧二層的生活單獨設計了一間客廳以供使用!
圖紙之家-專注農村別墅/自建房設計18年,集合國內200余位經驗豐富的設計師,被評為口碑最好的農村建筑設計公司! |

240平方米新農村漂亮的兄弟雙拼別墅設計圖紙,單戶120平
占地:239平方米
高端三層新中式農村別墅設計圖,仿合院布局,外觀霸氣
占地:133.64平方米
經濟實用型二層農村小別墅設計圖,造價25萬內,外觀看起來時尚
占地:120平方米
175平大客廳三層別墅房屋設計圖,含外觀造型現代,美觀
占地:175平方米
帶電梯高端四層別墅房屋設計圖,外觀圖大氣、上檔次
占地:220平方米
后面帶小院的農村房屋設計圖,適合鄉村自建
占地:300平方米
面寬13米三層新中式獨棟別墅設計圖,復式自建房戶型方案
占地:201.25平方米
五間二層別墅設計圖紙,樓梯設計的無比大氣
占地:300平方米
三層歐式自建房別墅設計方案,11x11米洋氣實用,飽受大家好評
占地:127平方米
簡單大氣二層兄弟雙拼樓房設計圖,外觀簡約
占地:268平方米
130-140平方米簡歐風格二層別墅設計施工圖紙,簡約大氣
占地:137平方米左右
帶車庫鄉下雙拼別墅設計圖,三層造型漂亮大全
占地:256平方米
二層半別墅設計圖,占地150平米,帶露臺,地中海風格,內部布局
占地:150平方米
歐式大氣三層小別墅設計圖紙,外觀、造型大方,色彩明快
占地:140平方米
現代風平屋頂三層半農村小別墅設計圖,面寬僅7米
占地:90平方米
好看又簡單二層仿古中式四合院樓房設計圖
占地:352平方米
一二層都帶廚房餐廳的獨棟二層別墅設計圖,帶雙廚房
占地:143.68平方米
性價比超高一層農村自建別墅設計圖,戶型耐看不用爬樓
占地:158.6平方米
高端三層獨棟歐式別墅效果圖,帶大衛生間,CAD全套施工設計圖
占地:158平方米
歐式三層樓房設計圖,客廳中空,旋轉樓梯,帶土灶房
占地:206平方米
推薦:10套新農村自建房設計圖,2026年最新設計
閱讀次數:4825737次
100套鄉村別墅圖片大全,2026年最新設計
閱讀次數:2492203次
6款農村蓋一層平房的設計圖,10萬元就能建起來
閱讀次數:1852637次
這11個一層農村自建房別墅火爆了朋友圈!我最喜歡戶型十!你呢
閱讀次數:750268次
農村6萬元建一層小別墅圖,你敢相信嗎
閱讀次數:567686次
農村5萬塊就能自建房,6套普通房子設計圖分享,你沒看錯!
閱讀次數:419410次
8套農村漂亮三間平房圖片,非常適合在農村修建!
閱讀次數:411197次
農村自建房化糞池怎么做?附方案及施工過程
閱讀次數:391783次
農村一層三間平房設計圖,告別土氣養老房,讓人忍不住點贊
閱讀次數:350581次
新農村二層樓房圖片造價12萬,挑一套回家建房吧!
閱讀次數:349126次
