
|
城里這也叫豪宅?農村50萬自建房三層別墅只能叫居民樓! 新農村自建房、自建三層別墅效果圖及施工圖
外觀效果圖
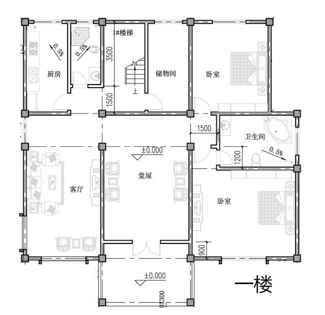
一樓
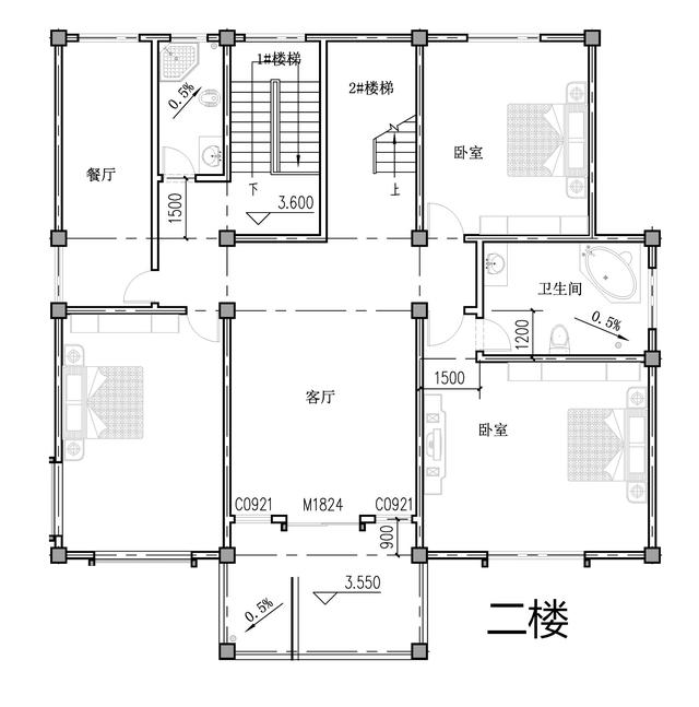
二樓
三樓 開間:14.8m、進深:15.3m 占地面積:184.86㎡ 建筑面積:505.8㎡ 主體造價:50萬 圖紙之家-專注農村別墅/自建房設計18年,集合國內200余位經驗豐富的設計師,被評為口碑最好的農村建筑設計公司! |

150平農村二層復式別墅房屋設計方案圖,帶外觀效果圖片
占地:150平方米
120平方兩層房子設計圖及圖片,外觀大方好看,內部結構合理
占地:120平方米
二層樓房圖片及施工圖紙,占地160平米左右,帶車庫
占地:160平方米
農村27萬二層自建別墅設計圖,占地140平米左右,戶型極好
占地:140平方米
農村中式一層三合院自建房設計圖,古典大氣白墻黛瓦
占地:177.62平方米
農村一層四開間養老別墅設計圖,造型美布局佳
占地:164.27平方米
農村一層7字型平房別墅設計圖,“L”自行戶型,外觀簡約低調
占地:213.39平方米
美觀大氣二層歐式別墅設計圖,外觀效果圖高端上檔次
占地:189.8平方米
新農村三層樓房住宅設計方案,戶型圖、效果圖、全套施工圖
占地:180平方米
帶地下室+挑空客廳,農村三層洋樓別墅誰家圖在
占地:97.74平方米
農村中式一層合院別墅設計圖,帶小院子規劃設計
占地:202平方米左右
2026新中式農村三層別墅圖,外觀漂亮,看一眼就愛上
占地:240平方米
160平方米三層帶大露臺的復式別墅設計圖紙
占地:155平方米
140平三層復式別墅設計圖及外觀效果圖
占地:140平方米
農村一層養老別墅設計圖,兩個戶型方案可選
占地:多種戶型
農村一層中式三合院別墅設計圖,戶型經典實用,19米乘15米
占地:243.21平方米
簡潔大氣140平方三層房子設計圖,帶車庫戶型極佳
占地:140平方米
農村20萬元二層小樓房設計圖,經典新農村自建房戶型
占地:120平方米
農村一層平房設計圖及效果圖,一層房屋設計方案推薦
占地:270平方米
最新款二層鄉下別墅設計圖,新中式風格,24萬建好主體
占地:150.94平方米
推薦:10套新農村自建房設計圖,2026年最新設計
閱讀次數:4825737次
100套鄉村別墅圖片大全,2026年最新設計
閱讀次數:2492203次
6款農村蓋一層平房的設計圖,10萬元就能建起來
閱讀次數:1852637次
這11個一層農村自建房別墅火爆了朋友圈!我最喜歡戶型十!你呢
閱讀次數:750268次
農村6萬元建一層小別墅圖,你敢相信嗎
閱讀次數:567686次
農村5萬塊就能自建房,6套普通房子設計圖分享,你沒看錯!
閱讀次數:419410次
8套農村漂亮三間平房圖片,非常適合在農村修建!
閱讀次數:411197次
農村自建房化糞池怎么做?附方案及施工過程
閱讀次數:391783次
農村一層三間平房設計圖,告別土氣養老房,讓人忍不住點贊
閱讀次數:350581次
新農村二層樓房圖片造價12萬,挑一套回家建房吧!
閱讀次數:349126次
