
|
傳統的農村自建房是當地群眾在長期實踐中,適應所在環境創造出來的。它的形象體現了鄉村的環境特征、人的審美標準以及生活習俗。農村自建房的立面顏色宜采用淡雅,明快的色調,并考慮地區氣候和風俗喜歡等做不同的處理。 為避免家家戶戶的別墅外觀雷同,下面給大家介紹5套風格迥異的獨棟別墅設計,每套圖紙都有各自的特色和亮點之處。看看你更喜歡哪套圖紙那種戶型:
圖紙編號:TC3107;建筑層數:3層;占地面積:148.96平方米;建筑面積:545.83平方米;開間尺寸:13.2米;進深尺寸:12米 地下室平面圖
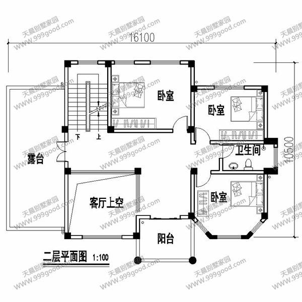
第二套自建房設計圖:
圖紙編號:TC3123;建筑層數:3層;占地面積:150平方米;建筑面積:366.91平方米;開間尺寸:16.1米;進深尺寸:10.5米;
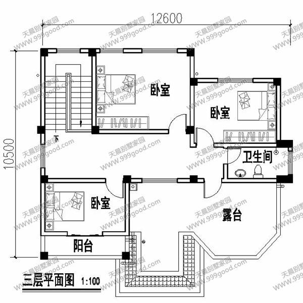
第三套自建房設計圖:
圖紙編號:TC3124;建筑層數:3層;占地面積:166.92平方米;建筑面積:411.96平方米;開間尺寸:16米;進深尺寸:10.4米;
圖紙編號:TC3127;建筑層數:3層;占地面積:164.83平方米;建筑面積:447.64平方米;開間尺寸:13.5米;進深尺寸:12.7米
第四套自建房設計圖:
圖紙編號:TC3110;建筑層數:3層;占地面積:116.36平方米;建筑面積:294.28平方米;開間尺寸:12米;進深尺寸:11.5米;
第五套自建房設計圖:
圖紙編號:TC3121;建筑層數:3層;占地面積:133.47平方米;建筑面積:383平方米;開間尺寸:10米;進深尺寸:13米
圖紙之家-專注農村別墅/自建房設計18年,集合國內200余位經驗豐富的設計師,被評為口碑最好的農村建筑設計公司! |

陽臺封閉的簡約實用二層別墅設計圖,15x12.8米
占地:165平方米
時尚典雅歐式三層自建房設計圖,美觀大氣簡單舒適,好看到沒得
占地:153.12平方米
12.5乘12米大氣優雅二層自建房設計圖,精美舒適布局實用
占地:149.27平方米
美式風格鄉村兩層小別墅自建房設計圖,外觀圖好看
占地:150平方米
農村二層小洋樓設計圖,帶外觀效果圖,外觀新穎,漂亮
占地:130平方米
農村二層住宅別墅設計圖,貼心實用,12.8米乘14.5米
占地:156.16平方米
125平兩層別墅房屋設計圖,帶普通和復式兩個戶型
占地:125平方米
外觀高檔大氣的三層別墅房屋設計圖,高端別墅設計展示
占地:147平方米
二層自建房屋設計圖,帶小院,帶地下室,外觀現代、時尚,內部
占地:200平米
占地200平米時尚現代三層農村別墅設計圖,簡簡單單百看不厭
占地:202.95平方米
新中式二層農村小樓房設計圖,戶型圖方正,外觀大氣
占地:143平方米
占地70平方米的三層獨棟別墅設計圖,小戶型自建房屋效果圖
占地:70平方米左右
村里三層新中式風自建別墅圖,對稱設計,氣派好看
占地:135.3平方米
140平方米新農村三層房屋設計圖,磚混結構帶地下室
占地:138平方米左右
新中式農村三層房屋效果圖及施工圖,140平方米左右
占地:140平方米
110平方米農村三層自建房設計圖紙帶外觀圖
占地:110平方米
2026年獨棟三層雙拼別墅戶型圖,總占地面積300平方米左右
占地:300平方米
新式帶挑空客廳三層鄉村別墅設計圖,占地170平左右
占地:170平方米
180平高端歐式三層別墅圖紙設計,大戶型復式客廳
占地:182.016
推薦:10套新農村自建房設計圖,2026年最新設計
閱讀次數:4825737次
100套鄉村別墅圖片大全,2026年最新設計
閱讀次數:2492203次
6款農村蓋一層平房的設計圖,10萬元就能建起來
閱讀次數:1852637次
這11個一層農村自建房別墅火爆了朋友圈!我最喜歡戶型十!你呢
閱讀次數:750268次
農村6萬元建一層小別墅圖,你敢相信嗎
閱讀次數:567686次
農村5萬塊就能自建房,6套普通房子設計圖分享,你沒看錯!
閱讀次數:419410次
8套農村漂亮三間平房圖片,非常適合在農村修建!
閱讀次數:411197次
農村自建房化糞池怎么做?附方案及施工過程
閱讀次數:391783次
農村一層三間平房設計圖,告別土氣養老房,讓人忍不住點贊
閱讀次數:350581次
新農村二層樓房圖片造價12萬,挑一套回家建房吧!
閱讀次數:349126次
