
|
很多人問小編,自家的宅基地兩邊有鄰居,不能開窗該怎么處理?當然,設計要看具體的地形和戶主的要求,根據情況合理的進行設計。不過今天小編給大家介紹一款這樣的小別墅的圖紙戶型,看看這是怎么布局的,也可以給你一個參考。
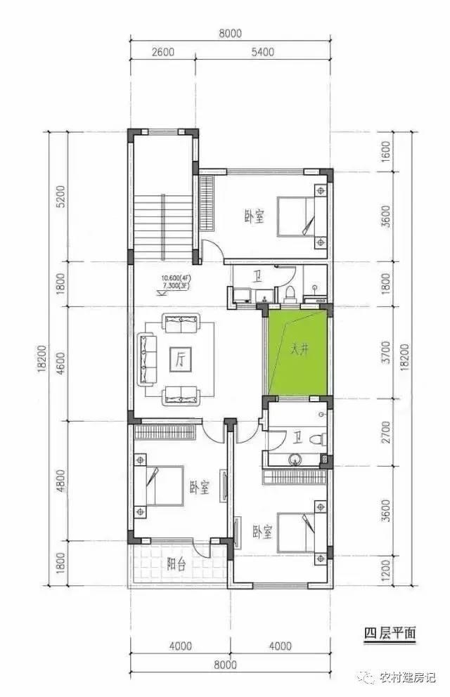
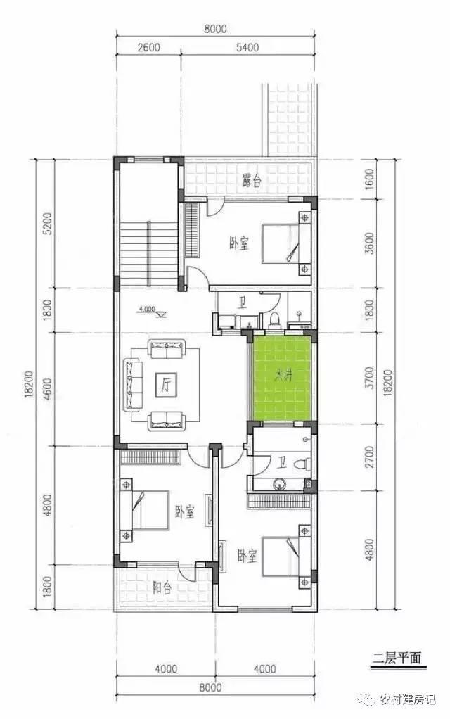
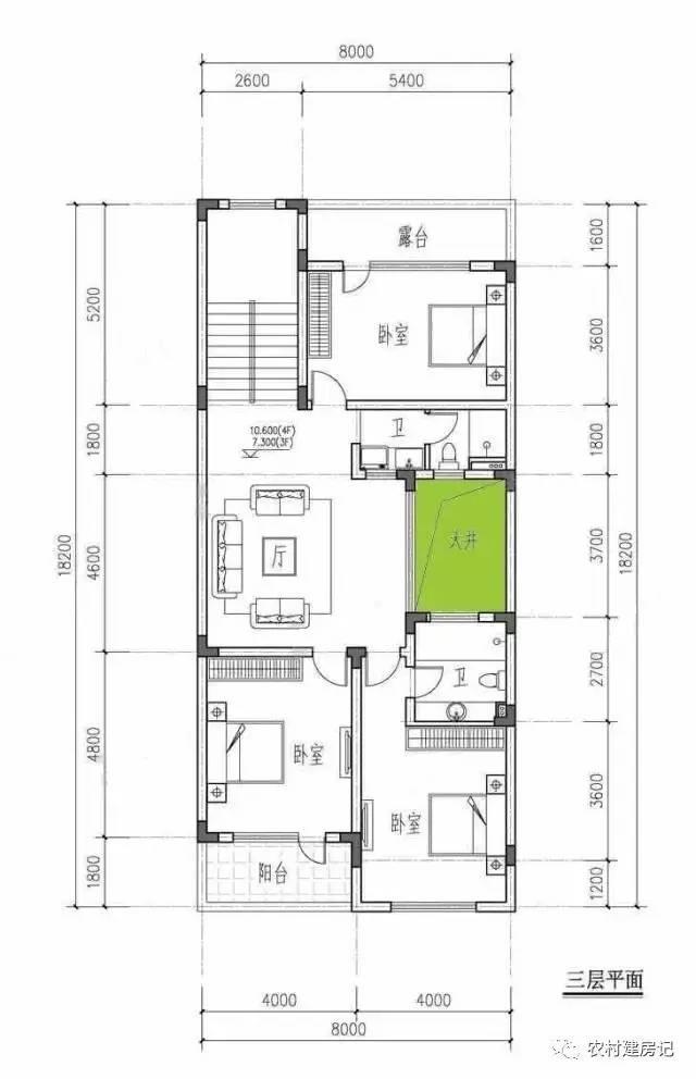
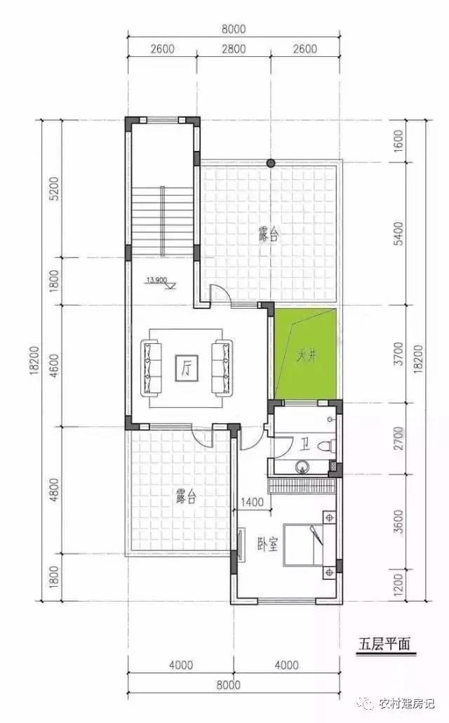
這款戶型是5層自建房,開間小,但進深長。兩邊都有鄰居,因此不能左右開窗。這在農村和鄉鎮很大一部分人家就面臨著這種情況。 在進深不長的情況下,可以在前后開窗同樣可以達到最大采光度,但是進深很長,中間怎么辦,這款戶型就很巧妙的采取了天井,讓室內所有地方采光都達到通透,下面看室內布局就很清楚了。 戶型平面圖
這款戶型開間8米,進深有20米左右,最好的解決采光問題,在中間設計一個天井,使得所有的房間或客廳都能照射到陽光,室內不會顯得陰暗。 圖紙之家-專注農村別墅/自建房設計18年,集合國內200余位經驗豐富的設計師,被評為口碑最好的農村建筑設計公司! |

帶大套間新農村二層別墅自建房設計圖紙帶效果圖
占地:185平方米
兄弟三層雙拼房屋設計圖,帶效果圖,戶型好
占地:256平方米
150平米田園風格二層別墅設計圖紙,沉穩大氣有內涵
占地:150平方米
省錢美觀一層自建房子設計圖,父母養老住很適合
占地:117平方米
面寬15米一層四間現代風別墅,外觀漂亮布局實用,養老度假超巴
占地:180平方米
帶車庫現代三層房屋別墅設計圖,占地110平米左右,功能齊全
占地:110平米
闊氣高端的三層別墅設計圖,亮得恰到好處,永遠也住不膩
占地:160平方米
一層中式三合院農村自建別墅圖,面寬18米帶堂屋設計
占地:165.72平方米
經典三層農村房屋設計圖紙,占地100平米左右,外觀典雅精致,內
占地:100平方米
最實用中式一層三合院別墅設計圖,簡約精致布局實用
占地:162.49平方米
面寬11米現代風二層小別墅,平屋頂設計,緊跟潮流時尚前衛
占地:94.43平方米
農村三層歐式別墅豪宅戶型圖設計方案,復式中空客廳+旋轉樓梯
占地:134.84平方米
鄉村三層別墅設計圖紙,帶屋頂花園(含效果圖)
占地:150平方米
廚房在前,簡約歐式二層農村自建別墅設計圖,戶型個性
占地:143.69平方米
新中式高端豪宅三層別墅自建房設計圖,大戶型經典
占地:270平方米左右
復式三層別墅設計圖片及全套圖紙,客廳中空,外觀為歐式建筑的
占地:175平方米
農村三合院設計圖及效果圖,自建三合院圖紙
占地:470平方米
農村一層平房別墅設計圖,18米乘9米,實實在在的好戶型
占地:162平方米
240平農村二層自建別墅設計圖紙,帶你體驗家的溫馨
占地:240平方米
90平方米新農村住宅設計二層小別墅設計圖紙11x9米
占地:90平方米
推薦:10套新農村自建房設計圖,2026年最新設計
閱讀次數:4825737次
100套鄉村別墅圖片大全,2026年最新設計
閱讀次數:2492203次
6款農村蓋一層平房的設計圖,10萬元就能建起來
閱讀次數:1852637次
這11個一層農村自建房別墅火爆了朋友圈!我最喜歡戶型十!你呢
閱讀次數:750268次
農村6萬元建一層小別墅圖,你敢相信嗎
閱讀次數:567686次
農村5萬塊就能自建房,6套普通房子設計圖分享,你沒看錯!
閱讀次數:419410次
8套農村漂亮三間平房圖片,非常適合在農村修建!
閱讀次數:411197次
農村自建房化糞池怎么做?附方案及施工過程
閱讀次數:391783次
農村一層三間平房設計圖,告別土氣養老房,讓人忍不住點贊
閱讀次數:350581次
新農村二層樓房圖片造價12萬,挑一套回家建房吧!
閱讀次數:349126次
