
|
外挑陽臺帶大客廳鄉村自建三層別墅!頂樓帶閣樓實際為假四層!還有神臺! 這樣的房子在農村很難得見到,外觀看起來像三層,實際為四層,對于限制建筑面積和高度的地方來說既美觀有劃算!
正面外觀效果圖
背面外觀效果圖
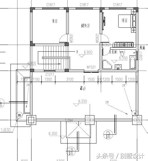
一樓
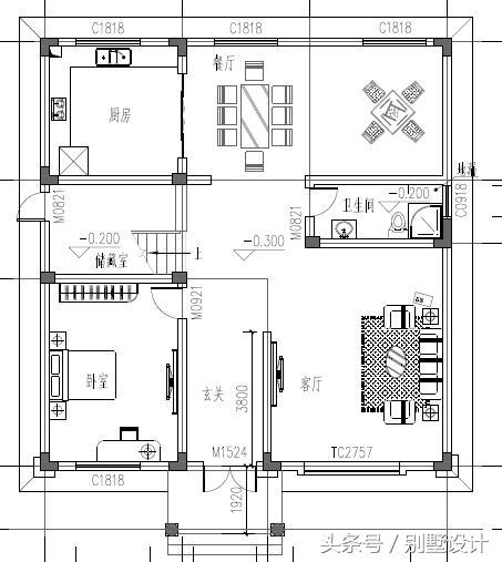
二樓
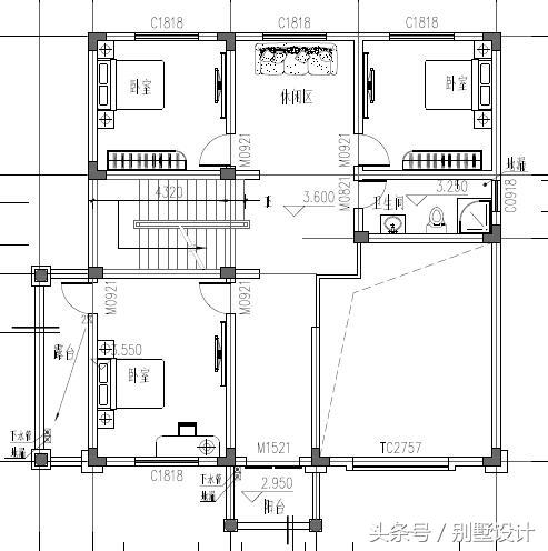
三樓 此農村房子設計圖采用端莊、素雅色彩,散發出自然和諧的美麗,簡潔的造型詮釋出積極、樂觀美式鄉村風;懸空客廳外面的落地窗、紅色的坡屋頂極具現代化特點,值得一提的是車庫上的亭臺,正門前的陽臺以及三樓的露臺造型獨特,盡顯豪華大氣,同時又彰顯出自由浪漫的氛圍,整棟別墅在不經意間流露出高貴、典雅的迷人風采 圖紙之家-專注農村別墅/自建房設計18年,集合國內200余位經驗豐富的設計師,被評為口碑最好的農村建筑設計公司! |

300平四層別墅房屋設計圖,含外觀效果圖,大面積、多臥室
占地:261平方米
農村現代新中式三合院設計圖及效果圖片,外觀好看極了
占地:多戶型可選
鄉村典型自建房中式二層四合院別墅設計圖,左右對稱設計
占地:430平方米
簡單大氣的農村二層樓設計圖,二層歐式農村別墅設計圖
占地:180平方米
新中式二層別墅設計圖,農村最適合建的兩層小樓,13×12米
占地:143平方米
爆火農村養老房設計:16 米面寬一層戶型,自住養老全拿捏
占地:169.87平方米
歐式二層別墅平面圖,全套cad設計圖紙和外觀效果圖
占地:202平方米
200平方二層小別墅設計圖紙,含效果圖,歐式風格帶車庫
占地:197.6平方米
120平方米帶地下室三層復式別墅戶型圖,現代風格
占地:120.78平方米左
開間13米左右新農村2層自建房別墅戶型設計圖,簡潔實用
占地:170平方米
140平中式徽派一層別墅設計圖,一層照樣建這樣漂亮
占地:140平方米
110平農村二層房屋設計圖,新農村自建房戶型推薦
占地:110平方米
面寬8米兩開間四層歐式風別墅,布局實用,小占地大精彩!
占地:100.86平方米
占地200平米時尚現代三層農村別墅設計圖,簡簡單單百看不厭
占地:202.95平方米
3層20萬農村自建房設計圖,占地110平米
占地:110平方米
經典小戶型新農村房屋住宅設計圖,10萬左右
占地:80平方米
“L”字形二層別墅設計圖,獨立餐廚加連體露臺,太美了
占地:多戶型可選
兩戶250平方米農村豪華歐式三層兄弟雙拼別墅設計圖
占地:251平方米
帶車庫的三層房屋方案設計圖,帶堂屋全套圖紙
占地:163.8平方米
占地200平米簡歐三層農村別墅設計圖,既顯華麗又接地氣
占地:209.27平方米
推薦:10套新農村自建房設計圖,2026年最新設計
閱讀次數:4825737次
100套鄉村別墅圖片大全,2026年最新設計
閱讀次數:2492203次
6款農村蓋一層平房的設計圖,10萬元就能建起來
閱讀次數:1852637次
這11個一層農村自建房別墅火爆了朋友圈!我最喜歡戶型十!你呢
閱讀次數:750268次
農村6萬元建一層小別墅圖,你敢相信嗎
閱讀次數:567686次
農村5萬塊就能自建房,6套普通房子設計圖分享,你沒看錯!
閱讀次數:419410次
8套農村漂亮三間平房圖片,非常適合在農村修建!
閱讀次數:411197次
農村自建房化糞池怎么做?附方案及施工過程
閱讀次數:391783次
農村一層三間平房設計圖,告別土氣養老房,讓人忍不住點贊
閱讀次數:350581次
新農村二層樓房圖片造價12萬,挑一套回家建房吧!
閱讀次數:349126次
