
|
設計說明: 這棟農村三層樓房新款圖片戶型自下而上室內面積逐次減小,形成了錯落的立面形式,結構上更加穩定,審美上更有層次感。配合精致的門廊、欄桿扶手、落地門窗及山墻造型,給人的感覺清新穩重。
案例基本信息
? 占地尺寸:13.6x13.2m
? 占地面積:139㎡
? 建筑面積:325㎡
? 建筑情況:5室2廳4衛1廚1書房1車庫
? 建筑結構:框架結構
? 造價估算:40萬
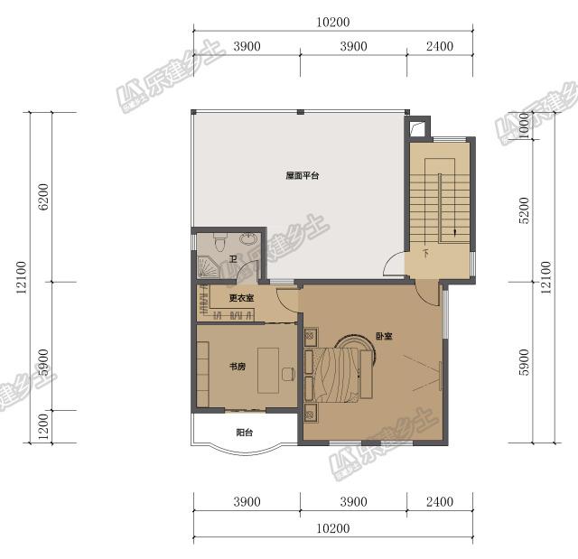
平面圖:
一層入戶即是門廳玄關,創造了很好的裝飾效果,也避免了風水上的忌諱。客廳、門廳、餐廳三個大的空間相連,使室內空間顯得更加寬敞明亮。
二層是三個臥室和兩個衛生間,主臥位于采光最好的南側,與車庫屋頂露臺相連,提供了充足的的室外休閑區,貼心便利。
三層則是主臥和前后的露臺,其中主臥配有書房、更衣室、獨立衛生間。屋后的大露臺占的面積較大,做屋頂花園或曬臺都很實用。
這套小別墅非常適合做成兄弟雙拼別墅,將車庫相連,在不影響房屋采光的情況下更利于兩家人的溝通。想要好好設計自家的房子么?快來聯系我們的設計師吧! 圖紙之家-專注農村別墅/自建房設計18年,集合國內200余位經驗豐富的設計師,被評為口碑最好的農村建筑設計公司! |

鄉村最美四合院設計圖及外觀效果圖片,國人的理想住宅
占地:280.62平方米
15萬左右新中式二層別墅設計圖平面圖,占地110平米左右
占地:110平方米
二層小型簡單四合院設計圖,戶型方正,左右對稱,傳統文化的傳
占地:470平方米
私人二層中式四合院別墅建筑設計圖,新農村經濟實用戶型
占地:145平方米
11x9三層別墅房屋設計圖,含效果圖片
占地:97平方米
新農村二層雙拼小別墅設計圖,開間22米的現代房屋圖紙設計
占地:230平方米
80平方米農村四層房屋設計圖紙及效果圖
占地:80平方米
90平小戶型四層房屋設計圖,農村自建別墅推薦
占地:90平方米
100平簡單三層房屋設計圖紙,新農村自建推薦圖紙
占地:100平方米
外觀造型對稱的二層別墅設計圖,老虎窗+挑空客廳
占地:175.2平方米
50萬左右農村三層別墅設計圖紙,帶大露臺,外觀大氣
占地:150平方米
農村五開間大平層設計圖,主體15萬就能建。
占地:182.43平方米
帶車庫的農村四合院別墅設計圖,富貴人家的象征,日子越過越興
占地:219.24平方米
農村自建三層別墅設計圖,開間17米進深13米,外觀對稱設計
占地:187.6平方米
帶庭院中式二層四合院別墅設計效果圖片,方方正正
占地:404平方米
鄉村兩層半別墅設計圖,一層160平,主體30萬左右
占地:168平方米左右
農村25萬元二層小樓圖,經典大氣建成20年不過時
占地:150平方米
中國最好看的二層農村房子圖片及施工圖紙,20萬現代風格
占地:130平方米
2026二層農村新款別墅圖片及施工圖,新中式風格古典大氣
占地:200平方米
新農村中式二層樓房設計圖紙及效果圖,125,150,170三個戶型可行
占地:多種戶型
推薦:10套新農村自建房設計圖,2026年最新設計
閱讀次數:4825737次
100套鄉村別墅圖片大全,2026年最新設計
閱讀次數:2492203次
6款農村蓋一層平房的設計圖,10萬元就能建起來
閱讀次數:1852637次
這11個一層農村自建房別墅火爆了朋友圈!我最喜歡戶型十!你呢
閱讀次數:750268次
農村6萬元建一層小別墅圖,你敢相信嗎
閱讀次數:567686次
農村5萬塊就能自建房,6套普通房子設計圖分享,你沒看錯!
閱讀次數:419410次
8套農村漂亮三間平房圖片,非常適合在農村修建!
閱讀次數:411197次
農村自建房化糞池怎么做?附方案及施工過程
閱讀次數:391783次
農村一層三間平房設計圖,告別土氣養老房,讓人忍不住點贊
閱讀次數:350581次
新農村二層樓房圖片造價12萬,挑一套回家建房吧!
閱讀次數:349126次
