
|
經典的農村別墅,全新的農村家居生活體驗與寧靜的田園詩意的享受,獨到的細節,又能讓人倍感品質的非凡。精致如同下面的這2套戶型,淋漓盡致的建筑美學雕刻,爐火純青的建造藝術打造。用充滿質感的材料,創造出優雅的農村住宅。 來看第一款
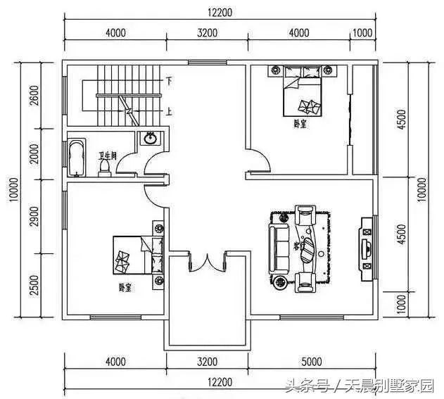
精致的外觀大理石干掛,經濟條件有限的可以買那種仿大理石或者水磨石,都能精致的刻畫出別墅的美觀。 平面功能:開間12.2米,進深10米,首層一間臥室,衛生間干濕分區,樓梯設置很隱蔽,美觀感不受影響。
有些地方比較講究神臺的,可以在入戶處設置神臺,室內視野良好。
為了增大大氣質感,戶主餐廳處也做了挑空設計,所以二層就只能設一間臥室。
每層都有客廳,不同的功能可以后期裝修的時候自己更改。
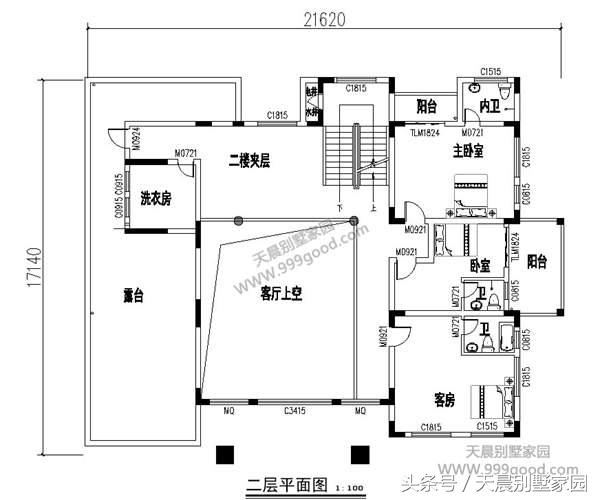
第二款 同樣是一棟面積比較大的,看似很豪華的農村三層別墅,開間21.6 ,進深17.1
平面圖 空間可謂是非常的闊氣了,入戶設有多個門。采光和通風都比較良好。
開放式的廚房設計,三面通風,也不會擔心油煙的問題,首層3間臥室分別帶有獨衛。
二層錯層,中間有夾層形式,做成了洗衣房挑空客廳旁邊是3間臥室,并帶有陽臺。
三層一個娛樂室,占據三分之一的面積,其余的地方都是挑空設計,空間的利用率不高,但是絕對氣派。 圖紙之家-專注農村別墅/自建房設計18年,集合國內200余位經驗豐富的設計師,被評為口碑最好的農村建筑設計公司! |

200平方米穩重大氣三層雙拼別墅建筑設計圖紙,含效果圖19.04米
占地:200平方米
農村三層四合院別墅設計圖紙,自建房建這棟面子十足
占地:227.49平方米
150平米一層農村別墅設計圖,養老自住都很不錯,關鍵是造價也很
占地:156平方米
農村20萬元二層小樓圖片及全套圖紙,外型美造價低
占地:多種戶型
新中式別墅一層自建房設計,戶型實用緊湊
占地:170.54平方米
新中式三層雙拼別墅設計圖,外觀圖片美觀、大氣
占地:176平方米
對稱一層農村養老別墅設計方案,室內戶型布局合理,14x12米
占地:141.46平方米
最實用中式一層三合院別墅設計圖,簡約精致布局實用
占地:162.49平方米
經典三層農村房屋設計圖紙,占地100平米左右,外觀典雅精致,內
占地:100平方米
二層歐式農村小別墅設計圖,9.5米乘13米,戶型好到鄰居求圖紙
占地:118.32平方米
180平方現代風三層別墅設計圖,經典大氣,百看不厭
占地:180.48平方米
農村兩層新中式自建房屋設計圖,受歡迎的帶小配房戶型
占地:多戶型可選
鄉下三層大氣房子設計圖,外觀挺高大上的,主體29萬多
占地:132.48平方米
新中式小戶型二層別墅效果圖及全套施工設計圖,造價經濟實惠
占地:108平方米
二層農村雙拼別墅帶露臺設計圖,20×11.8米,單戶110平米
占地:220平方米
進深15米新農村三層房屋設計圖紙,農村住宅設計圖集
占地:128平方米
農村四層樓房設計圖,含外觀圖片,自建四層房屋推薦
占地:140平方米
時尚現代的二層農村別墅設計圖,年輕人建房的不二之選
占地:131.76平方米
超好看的現代簡約別墅設計圖,占地100平米,城里一套房都不換
占地:102.21平方米
最美中式農村別墅二層三間的房子圖,帶土灶房,娛樂室,大露臺
占地:180平方米
推薦:10套新農村自建房設計圖,2026年最新設計
閱讀次數:4825737次
100套鄉村別墅圖片大全,2026年最新設計
閱讀次數:2492203次
6款農村蓋一層平房的設計圖,10萬元就能建起來
閱讀次數:1852637次
這11個一層農村自建房別墅火爆了朋友圈!我最喜歡戶型十!你呢
閱讀次數:750268次
農村6萬元建一層小別墅圖,你敢相信嗎
閱讀次數:567686次
農村5萬塊就能自建房,6套普通房子設計圖分享,你沒看錯!
閱讀次數:419410次
8套農村漂亮三間平房圖片,非常適合在農村修建!
閱讀次數:411197次
農村自建房化糞池怎么做?附方案及施工過程
閱讀次數:391783次
農村一層三間平房設計圖,告別土氣養老房,讓人忍不住點贊
閱讀次數:350581次
新農村二層樓房圖片造價12萬,挑一套回家建房吧!
閱讀次數:349126次
