
|
我們每個人心中都有一個“田園夢”,但是夢想很美滿而現實很骨感。我們想要在鄉村建造一棟小別墅過愜意自由的生活,卻只能在城市的車水馬龍中消耗自己的人生。人生不如意十之八九是真的嗎?下面三款農村四層別墅不僅外觀精美而且價格實惠,輕松滿足你對田園生活的向往。
這款戶型外觀十分歐式,整體看起來大氣華麗。 基本信息: 別墅編號:MS1704010 占地尺寸:12.9X13.9米 占地面積:179.31平方米 建筑面積:609.31平方米 結構類型:框架結構 造價預算:48萬左右 一層平面圖:
一層進門是一個非常大的空間,還有一個洗衣房。 二層平面圖:
二層有一個長形陽臺,還有一個書房和起居室。二層的稀疏和衛生間分開。 三層平面圖:
三層有一個大露臺,也有一個書房。 四層平面圖:
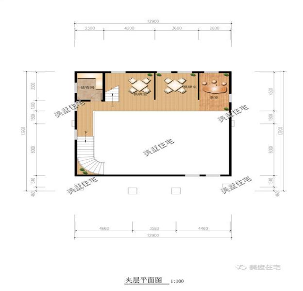
四層是娛樂區域,有兩個棋牌室,一個儲物間和一個茶室。 第二款
這款戶型二層至四層都有加陽臺。 基本信息: 別墅編號:MS1704011 占地尺寸:12.56X13.72米 占地面積:162.71平方米 建筑面積:889平方米 結構類型:框架結構 造價預算:90萬左右 一層平面圖:
一層進門就是一個客廳,正面是客廳。 二層平面圖:
三層有一個娛樂區域,還有一個小客廳。 四層平面圖:
四層有一個大露臺,也有一個娛樂區域。
這款戶型基本上每層平均分配面積。 基本信息: 別墅編號:MS1704012 占地尺寸:11.1X16.6米 占地面積:165.86平方米 建筑面積:658平方米 結構類型:框架結構 造價預算:66萬左右 一層平面圖:
一層大門前有一個門廳,大門后直接是客廳。 二層平面圖:
二層有一個臥室自帶書房和衣帽間,空間比較大。 三層平面圖:
三層有一個客廳和一個面積不小的書房。 四層平面圖:
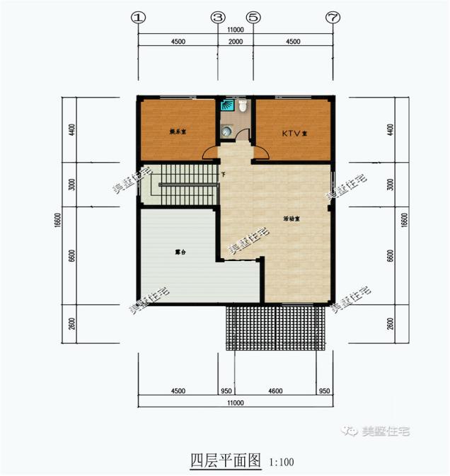
四層是娛樂區域,有娛樂室、KTV和活動室。 圖紙之家-專注農村別墅/自建房設計18年,集合國內200余位經驗豐富的設計師,被評為口碑最好的農村建筑設計公司! |

200平農村二層別墅設計圖,外觀現代簡約
占地:204平方米
2026年新款二層半農村自建小別墅設計圖紙,占地150平方米
占地:150平方米
二層新農村自建房設計圖,帶外觀效果圖
占地:140平方米
新農村三拼別墅三戶連體別墅設計圖,設計新穎美觀
占地:380平方米
新款240平方米三層雙拼別墅設計圖,歐式兄弟雙拼圖片
占地:240平方米
外觀高檔大氣的三層別墅房屋設計圖,高端別墅設計展示
占地:147平方米
農村一層養老別墅設計圖,14.8x17.9米,戶型對稱,實用布局
占地:193平方米
農村簡易二層樓設計圖,外觀簡單漂亮,經典時尚
占地:140平方米
110平方米農村三層自建房設計圖紙帶外觀圖
占地:110平方米
鄉村最美三層別墅設計圖自建房戶型,外觀圖精致漂亮
占地:134平方米
120平方房子設計圖,農村120平建房設計圖推薦
占地:122平方米
面寬13米方正戶型二層小別墅設計方案,南北通透采光好
占地:166.78平方米
四層巴洛克別墅設計圖,旋轉樓梯搭配超大挑空客廳,很有氣勢
占地:146平方米
現代二層樓房圖片造價25萬,含全套設計圖,風格獨特
占地:多戶型可選
占地180平豪華三層農村別墅自建房設計圖,歐式與現代相融合
占地:183.706平方米
簡單實用的四層農村自建房屋設計圖,占地100平米左右
占地:100平方米
二層兄弟雙拼農村別墅圖新中式,兄弟這樣建房,大氣省錢
占地:143.412平方米
開間8米的小戶型二層別墅設計圖,2開間占地不到60平
占地:56平方米左右
農村現代三層建房子設計圖及圖片,平屋頂的設計
占地:150平方米
農村實用型一層半樓房圖片效果圖,占地140平米左右
占地:140平方米
推薦:10套新農村自建房設計圖,2026年最新設計
閱讀次數:4825737次
100套鄉村別墅圖片大全,2026年最新設計
閱讀次數:2492203次
6款農村蓋一層平房的設計圖,10萬元就能建起來
閱讀次數:1852637次
這11個一層農村自建房別墅火爆了朋友圈!我最喜歡戶型十!你呢
閱讀次數:750268次
農村6萬元建一層小別墅圖,你敢相信嗎
閱讀次數:567686次
農村5萬塊就能自建房,6套普通房子設計圖分享,你沒看錯!
閱讀次數:419410次
8套農村漂亮三間平房圖片,非常適合在農村修建!
閱讀次數:411197次
農村自建房化糞池怎么做?附方案及施工過程
閱讀次數:391783次
農村一層三間平房設計圖,告別土氣養老房,讓人忍不住點贊
閱讀次數:350581次
新農村二層樓房圖片造價12萬,挑一套回家建房吧!
閱讀次數:349126次
