
|
四合院也稱四合房,在我國已有3000年以上的歷史,由于建制合中國傳統五行之說,很受百姓歡迎。居住中,由于四面建房中間是庭院,能夠最大程度保護隱私給人安全感。現在大家手里有了錢,相信很多人都有回老家蓋一棟四合院的夢想。今天就給大家介紹3套四合院戶型,希望大家喜歡。 戶型1:
這套四合院戶型,采用中國傳統卷棚頂,屋脊曲線圓潤,給人柔美之感,有古韻。中國傳統人字頂不止美觀,實際使用中比同落差的西式坡屋頂排水更快,屋檐翹起,不遮擋室內采光。可以說好處多多。
此戶型有房十九間,實際使用可以更加靈活,適合大家庭使用。 戶型2:
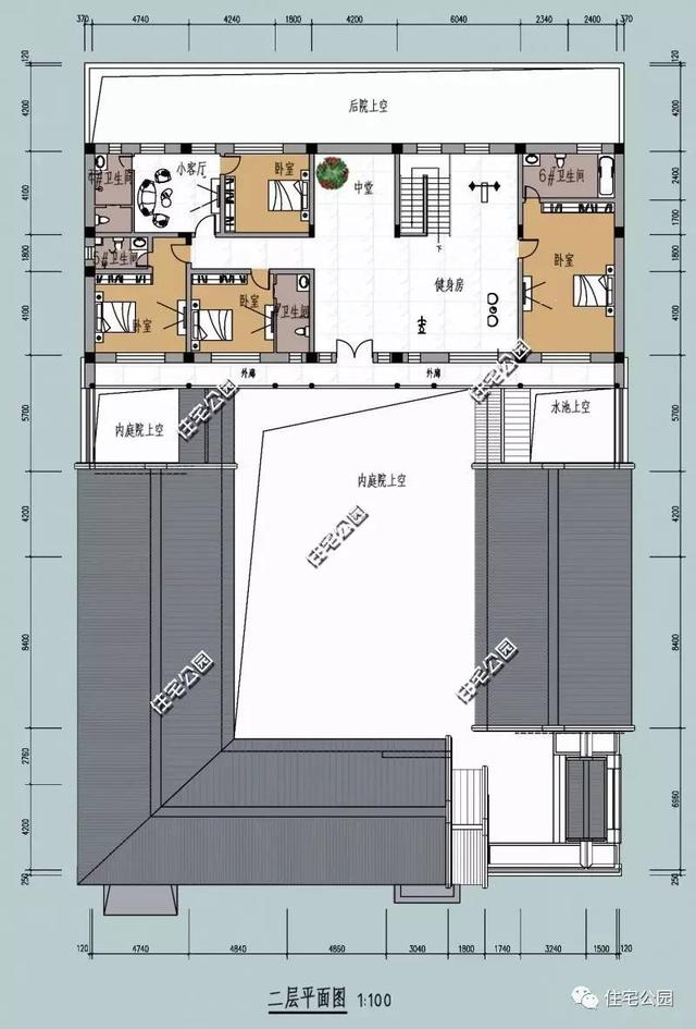
這一套四合院同樣是采用卷棚頂,但比之上面的四合院,做出了兩點改進;第一,主屋建成了二層,這樣家人都可居住在南向房屋中更符合大家居住習慣,彼此聯系更緊密。第二,庭院房屋間以游廊相連,這樣雨雪天氣也不會影響大家走動。
主屋建成二層小樓采光更好,房間更多家庭繁衍添丁不怕沒有房間。 戶型3:
這是一套徽派四合院,與上面的兩棟在外觀上就有極大的不同。馬頭墻的設置除了防火外本身就有阻隔視線的作用,二層樓的設置更是給人深宅大院之感。
戶型上內院留作居住,倒座辦公,同時保證了居住的私密性和辦公的便捷性,可以說是別出心裁。內院二層樓的設計,居住空間充足。唯一可慮的就是如果人丁不旺,難免會有空曠陰森之感。 圖紙之家-專注農村別墅/自建房設計18年,集合國內200余位經驗豐富的設計師,被評為口碑最好的農村建筑設計公司! |

農村二層小樓的設計圖紙,整體外觀凹凸有致,紅色的坡面屋頂
占地:180平方米
鄉下建房一層平房設計圖紙及戶型圖,占地150平米左右
占地:150平方米
經濟型實用歐式一層小樓房別墅平房設計圖,11X10米
占地:103平方米
三層帶露臺21萬別墅設計圖,占地面積100平米左右
占地:106平方米
130平米徽式古典風格的三層自建房屋別墅設計圖紙,戶型合極佳,
占地:130平米
七字形農村自建房二層設計圖,“L”型別墅設計,簡約時尚!
占地:209平米左右
外觀高檔大氣的三層別墅房屋設計圖,高端別墅設計展示
占地:147平方米
兄弟四間三層雙拼別墅設計圖,造價40萬左右
占地:210平方米
50萬左右農村三層別墅設計圖,歐式的外觀大氣沉穩
占地:150平方米
戳中年輕人喜好!時尚三層自建房,簡約時尚設計,住著舒適自然
占地:169.76平方米
一層三間別墅設計圖,經濟實用 + 好看不貴,養老自住都適配
占地:119.31平方米
鄉村簡約經濟型二層別墅設計圖紙(效果圖+全套施工方案)
占地:145平方米
150平農村三層歐式別墅設計圖紙,盡顯豪華與精致,讓人羨慕不已
占地:147.62平方米
11.5米乘 11.5米自建房:兩層設計 + 戶型方正,誰看誰心動
占地:128.77平方米
140平中式徽派一層別墅設計圖,一層照樣建這樣漂亮
占地:140平方米
新農村三層帶露臺自建房設計施工圖,農村自建別墅推薦
占地:112平方米
帶車庫農村二層雙拼別墅設計圖,外觀現代
占地:235平方米
農村15萬元二層小樓圖,經濟實用小別墅設計圖
占地:105平方米
仿古中式三合院設計圖紙,帶堂屋,適合農村自建
占地:173平方米
農村四層樓房設計圖,含外觀圖片,自建四層房屋推薦
占地:140平方米
推薦:10套新農村自建房設計圖,2026年最新設計
閱讀次數:4825737次
100套鄉村別墅圖片大全,2026年最新設計
閱讀次數:2492203次
6款農村蓋一層平房的設計圖,10萬元就能建起來
閱讀次數:1852637次
這11個一層農村自建房別墅火爆了朋友圈!我最喜歡戶型十!你呢
閱讀次數:750268次
農村6萬元建一層小別墅圖,你敢相信嗎
閱讀次數:567686次
農村5萬塊就能自建房,6套普通房子設計圖分享,你沒看錯!
閱讀次數:419410次
8套農村漂亮三間平房圖片,非常適合在農村修建!
閱讀次數:411197次
農村自建房化糞池怎么做?附方案及施工過程
閱讀次數:391783次
農村一層三間平房設計圖,告別土氣養老房,讓人忍不住點贊
閱讀次數:350581次
新農村二層樓房圖片造價12萬,挑一套回家建房吧!
閱讀次數:349126次
