
|
現在農村建房,大家最關心的無非就是造價和實用性問題,就怕實用性高的造價又讓人無法承受,建房過程中超出預算太多,可能計劃好的裝修都會被擱置,造價過的去的,實用性又太差,建房也建的不能太差不是,今天小編給大家伙介紹一款低造價,經濟實用的二層農村別墅戶型。 效果圖:
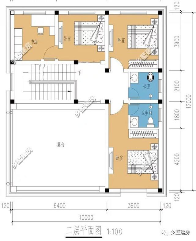
這款別墅開間10.2米,進深12.2米,是一款經典戶型別墅,農村大多數都是這種戶型,占地125平方米,占地不大,建筑面積207平方米,重點來了,這款別墅的造價只要18萬左右,內部含有5臥室、2廳、1廚、4衛還帶一露臺!這樣的組合,小編就后悔房子建太早了! 一層平面圖:玄關、客廳、2臥室、主衛、公衛、廚房、餐廳。 進門處的玄關不僅能起到一個過渡的作用,還很有實用性,擺放鞋子,大衣等等,右側的房屋可以設為老人房,現在的年輕人都不常住農村,老人一人在家還是盡量讓他們過的輕松點,少爬點樓梯,衛生間設有屋內,冬季出屋上廁所也很容易受寒,另一間次臥,如果家中人口不是很多,也可以用作娛樂場所,樓梯下方的空間除了可以設置成洗衣房、儲藏間等,主要還可以擺放山水景觀來加強風水。 二層平面圖:3臥室、書房、主衛、公衛、露臺。
咱們農村雖然很興多房設計,但是也要看實際情況,如果家中人口不是很多,那建很多房間豈不是很浪費,別到最后臥室成了儲物間,而且現在家家戶戶都有車,工作也很忙,很少有人會在家里過夜,所以三間臥室也是夠的,現在的自建房沒有書房都不能叫別墅了,除了可以豐富學識,還能強化修養,家中如果有小院,那露臺就可以設為陽光房,不僅可以享受陽光,休閑娛樂,還成了一個使用性很強的空間,臥室、書房都可以擺放。 別急別急,為了讓大家有個更直觀的對比,也為了打破效果圖實景圖不符的傳言,實景圖奉上:
在小編看來, 實景圖與效果圖完全沒有不符,甚至比效果圖更美,更有地氣,這是你想要的別墅嗎? 圖紙之家-專注農村別墅/自建房設計18年,集合國內200余位經驗豐富的設計師,被評為口碑最好的農村建筑設計公司! |

16米X12米四開間二層別墅設計圖,造型美觀經濟實用
占地:198平方米
180平方米農村二層別墅四合院建筑設計圖紙
占地:181平方米
農村兩間兩層樓房設計圖,造價15萬左右,獨立的廚房設計,干凈
占地:95平方米
帶小院子的鄉村一層別墅設計圖紙,120平方米
占地:多戶型
四開間兩層別墅設計圖,農村自建住著舒適的好方案!
占地:187.04平方米
帶柴火房農村一層自建房設計圖,戶型布局接地氣
占地:126.29平方米
農村15萬元一層半小樓圖,最新的戶型設計
占地:182.31平方米
100平方米自建房二層設計圖紙及效果圖,12x9米
占地:100平方米
農村平屋頂三層現代風別墅戶型圖,簡約實用經濟顏值高
占地:111.9平方米
最漂亮的一層平房圖片及設計圖,造價18萬左右,結構簡單易于施
占地:186平方米
共用中堂雙拼兄弟三層別墅設計圖,簡歐式風格
占地:230平方米
占地百平農村三層戶型方案,簡約實用,獨具特色,理想新居等你
占地:105.61平方米
爆火農村養老房設計:16 米面寬一層戶型,自住養老全拿捏
占地:169.87平方米
開間4米多的農村三層別墅設計圖,一開間三層自建房
占地:66.65平方米
經濟、不張揚!簡單二層別墅設計圖,農村建房直接抄作業
占地:198.58平方米
農村三層中式仿古別墅設計圖紙,中國風自建房戶型
占地:158.64平方米
現代四合院別墅設計圖紙,二層戶型,外觀時尚漂亮
占地:287.97平方米
150平方米農村二層房屋建筑設計圖,15.2x9.4米
占地:148平方米
帶獨立堂屋的農村自建房設計,二層別墅設計方案圖
占地:109平方米左右
二層自建房子最新款設計圖,平屋頂簡約經濟,美觀不失大方。
占地:115.64平方米
推薦:10套新農村自建房設計圖,2026年最新設計
閱讀次數:4825737次
100套鄉村別墅圖片大全,2026年最新設計
閱讀次數:2492203次
6款農村蓋一層平房的設計圖,10萬元就能建起來
閱讀次數:1852637次
這11個一層農村自建房別墅火爆了朋友圈!我最喜歡戶型十!你呢
閱讀次數:750268次
農村6萬元建一層小別墅圖,你敢相信嗎
閱讀次數:567686次
農村5萬塊就能自建房,6套普通房子設計圖分享,你沒看錯!
閱讀次數:419410次
8套農村漂亮三間平房圖片,非常適合在農村修建!
閱讀次數:411197次
農村自建房化糞池怎么做?附方案及施工過程
閱讀次數:391783次
農村一層三間平房設計圖,告別土氣養老房,讓人忍不住點贊
閱讀次數:350581次
新農村二層樓房圖片造價12萬,挑一套回家建房吧!
閱讀次數:349126次
