
|
很多朋友私信問我們有沒有適合小宅地的別墅案例介紹,那今天就給大家曬一曬這棟11X12三層萊特風格小別墅,戶型方正,緊湊實用,立面造型時尚耐看,非常適合小宅地建造。 項目基本信息建筑面積:總建筑面積351.72平方米,其中首層建筑面積119.64平方米,二層建筑面積119.64平方米,三層建筑面積112.44平方米。 建筑風格:萊特風格 建筑結構:框架結構 參考造價:主體40萬(未含內外裝xiu及其他費用) 設計機構:杭州田口建筑設計工作室 建 筑 師:葉工 結 構 師:夏工
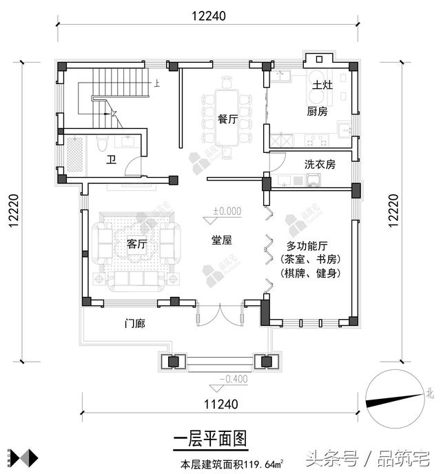
整體建筑效果 戶型平面
▲一層平面功能:門廊、堂屋、客廳、多功能廳、廚房、餐廳、洗衣房、公衛。
▲二層平面功能:起居室、三間帶衛生間的臥室套房、露臺。
▲三層平面功能:起居室、兩間帶衛生間的臥室套房,書房、公衛、露臺。 建筑立面
東立面圖
南立面圖
西立面圖
北立面圖
剖面圖 建筑效果圖
東南角度鳥瞰
東立面透視
南立面透視
西立面透視
北立面透視
東南角度透視
西南角度透視 圖紙之家-專注農村別墅/自建房設計18年,集合國內200余位經驗豐富的設計師,被評為口碑最好的農村建筑設計公司! |

110平方米新農村三層別墅設計圖,含外觀效果圖
占地:109平方米
歐式三層小洋樓設計圖,歐式最美三層別墅外觀效果圖
占地:124.28平方米
一層農村三合院別墅設計方案圖,秀氣優美,大氣又實用
占地:191.18平方米
農村一層半房屋設計圖,帶外觀效果圖,外觀時尚
占地:155平方米
135平三層農村樓房設計圖及效果圖,造價20萬左右
占地:135平方米
新中式二層雙拼別墅農村自建房子設計圖紙,面寬19米
占地:240平方米左右,單
農村小型四合院設計效果圖及施工圖,傳統中式,四面建房
占地:220平方米
二層歐式小別墅設計方案,全套建筑設計圖紙+外觀效果圖
占地:146平方米
兩層15萬農村自建房設計圖,農村蓋房設計大全圖
占地:130平方米
時尚典雅歐式三層自建房設計圖,美觀大氣簡單舒適,好看到沒得
占地:153.12平方米
農村20萬元二層小樓房設計圖,經典新農村自建房戶型
占地:120平方米
最新設計的三層農村別墅圖紙,帶車庫,帶露臺,占地150平米左右
占地:150平方米
歐式漂亮農村三層自建房設計圖紙,兩個戶型方案可選
占地:多戶型可選
農村兩開間農村別墅設計圖,典雅大氣,完全不輸大戶型
占地:116.26平方米
面寬不到10米的小戶型自建房戶型圖,全套設計圖紙可施工
占地:123.2平方米左右
新款農村三拼三戶別墅設計圖及效果圖三層戶型,外觀靚麗新穎
占地:360平方米
奢華歐式二層樓房設計圖,入戶設有玄關,一層大窗設計
占地:190平方米
三層新農村住宅房屋設計圖,溫馨美觀的戶型
占地:180平方米
農村三層雙拼別墅戶型圖設計圖,整體外觀氣派
占地:220平方米
農村120平三層樓房設計圖,造型現代,帶屋頂花園
占地:120平方米
推薦:10套新農村自建房設計圖,2026年最新設計
閱讀次數:4825737次
100套鄉村別墅圖片大全,2026年最新設計
閱讀次數:2492203次
6款農村蓋一層平房的設計圖,10萬元就能建起來
閱讀次數:1852637次
這11個一層農村自建房別墅火爆了朋友圈!我最喜歡戶型十!你呢
閱讀次數:750268次
農村6萬元建一層小別墅圖,你敢相信嗎
閱讀次數:567686次
農村5萬塊就能自建房,6套普通房子設計圖分享,你沒看錯!
閱讀次數:419410次
8套農村漂亮三間平房圖片,非常適合在農村修建!
閱讀次數:411197次
農村自建房化糞池怎么做?附方案及施工過程
閱讀次數:391783次
農村一層三間平房設計圖,告別土氣養老房,讓人忍不住點贊
閱讀次數:350581次
新農村二層樓房圖片造價12萬,挑一套回家建房吧!
閱讀次數:349126次
