
|
平屋頂的房子在農村里比較多,這種屋頂的房屋相比坡屋頂容易建許多,且能節省不少造價,而且平屋頂還能晾曬谷物、被褥等,還能打造屋頂花園。下面給大家分享一款三層平屋頂簡單易建35萬3廳6室4衛12×12帶車庫臥室套間自建房,附有鏡像圖,一起來看看。
效果圖 戶型簡介 層數:三層 開間:11.6米 進深:12.1米 首層占地面積:137.48㎡ 總建筑面積:362㎡ 結構形式:框架結構 主體造價:35萬
鏡像圖 功能設計
一層平面圖 一層:車庫、客廳、廚房、餐廳、臥室、公衛
二層平面圖 二層:客廳(帶陽臺)、臥室(帶陽臺)、臥室(帶衛生間)、臥室、公衛
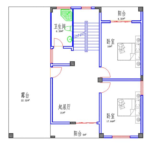
三層平面圖 三層:起居廳(帶陽臺)、臥室(帶陽臺)、臥室、露臺、公衛 圖紙之家-專注農村別墅/自建房設計18年,集合國內200余位經驗豐富的設計師,被評為口碑最好的農村建筑設計公司! |

兄弟兩戶雙拼房屋設計圖及外觀圖片,戶型合理
占地:185平方米
農村三層兄弟雙拼別墅設計圖及效果圖片,14X12米自建戶型
占地:154平方米
105平方米新農村三層別墅設計圖,全套CAD建筑圖+效果圖
占地:105平方米
新中式二層農村小樓房設計圖,戶型圖方正,外觀大氣
占地:143平方米
50萬左右農村豪華二層別墅設計圖 ,大廳中空,外觀精美
占地:210平方米
三間三層房子設計圖,高端三層樓房設計圖,三層兩個大露臺
占地:170平方米
2026最好看的農村三層樓房圖片及施工圖紙,客廳寬敞
占地:120平方米
二層樓房設計圖,占地120平米左右,符合現代農村的建房政策
占地:120平方米
后面帶小院的農村房屋設計圖,適合鄉村自建
占地:300平方米
120平現代實用三層別墅房屋設計圖,含外觀效果圖
占地:120平方米
二層美式自建別墅設計圖,全套施工圖+外觀效果圖
占地:145平方米
農村二層半房子設計圖 ,占地110平米和160多平兩個戶型圖
占地:多種戶型
三層復式別墅設計圖紙(含效果圖),復式住宅設計圖精選
占地:147.7平方米
經典美式風100平米二層小別墅設計方案,鄉村建房首選
占地:100.17平方米
農村兩間兩層樓房設計圖,造價15萬左右,獨立的廚房設計,干凈
占地:95平方米
小戶型二層四合院別墅設計圖,含外觀效果圖,小宅基地選擇
占地:134平方米
中式徽派二層農村別墅設計圖,白墻黛瓦馬頭墻,永不過時
占地:171平方米
3層20萬農村自建房設計圖,占地110平米
占地:110平方米
新農村田園風格兩層半別墅設計圖,外觀造型非常漂亮
占地:147.8平方米
17X12米三層雙拼別墅自建房設計圖,歐式風格,戶型方正
占地:190平方米
推薦:10套新農村自建房設計圖,2026年最新設計
閱讀次數:4825737次
100套鄉村別墅圖片大全,2026年最新設計
閱讀次數:2492203次
6款農村蓋一層平房的設計圖,10萬元就能建起來
閱讀次數:1852637次
這11個一層農村自建房別墅火爆了朋友圈!我最喜歡戶型十!你呢
閱讀次數:750268次
農村6萬元建一層小別墅圖,你敢相信嗎
閱讀次數:567686次
農村5萬塊就能自建房,6套普通房子設計圖分享,你沒看錯!
閱讀次數:419410次
8套農村漂亮三間平房圖片,非常適合在農村修建!
閱讀次數:411197次
農村自建房化糞池怎么做?附方案及施工過程
閱讀次數:391783次
農村一層三間平房設計圖,告別土氣養老房,讓人忍不住點贊
閱讀次數:350581次
新農村二層樓房圖片造價12萬,挑一套回家建房吧!
閱讀次數:349126次
