
|
要想室內整潔寬敞,就必須做好房屋的收納功能,因此我們在設計室內布局的時候,有必要預留儲物間,下面給大家分享一款帶每層樓都帶有儲物間的全套45萬17×11三層2廳8室7衛帶多儲藏室套間多陽臺別墅施工圖。
效果圖 戶型信息 層數:三層 開間:17.2米 進深:11.5米 首層占地面積:172平方米 總建筑面積:440平方米 結構形式:框架結構 主體造價:45萬 功能設計
一層平面圖 一層:玄關、客廳、廚房、餐廳、儲藏室、父母房(帶衛生間)、客房、洗衣房、衛生間、樓梯間
二層平面圖 二層:起居室(帶露臺)、套房×2(帶陽臺、衛生間、衣帽間)、客房×2、儲藏室、公衛
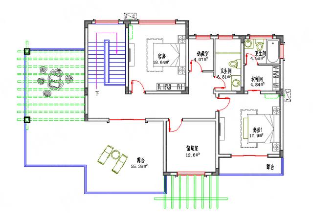
三層平面圖 三層:客房、套房(帶陽臺、衛生間、衣帽間)、公衛、露臺、儲藏室×2
鏡像圖 其他漂亮的圖紙,看看有沒有你喜歡的: 1、
2、
圖紙之家-專注農村別墅/自建房設計18年,集合國內200余位經驗豐富的設計師,被評為口碑最好的農村建筑設計公司! |

帶閣樓二層別墅設計圖,帶外觀效果圖片
占地:160平方米
鄉下一層自建養老平房戶型圖及全套圖紙,占地面積200左右
占地:200平方米
120平方米農村漂亮實用的兩層別墅設計圖紙,含外觀圖片
占地:120平方米
260平方米兩層帶車庫四合院房屋設計圖紙及效果圖
占地:260平方米
面寬8米兩開間四層歐式風別墅,布局實用,小占地大精彩!
占地:100.86平方米
兄弟雙拼三層小戶型別墅設計圖紙,160平方米(單戶80平)
占地:163平方米
小型農村二層自建樓房設計圖,面寬10米小占地經濟
占地:78.54平方米
高端三層別墅設計圖紙,客廳中空,帶地下室,設置多個套間
占地:220平方米
鄉村高檔四層別墅樓設計圖,二三層復式挑空客廳
占地:148.992平方米
180平方現代風三層別墅設計圖,經典大氣,百看不厭
占地:180.48平方米
四層復式別墅設計方案,外觀氣派布局實用,舒適宜居美極了!
占地:204.64平方米
現代一層(帶悶頂)別墅住宅設計圖,外觀現代時尚
占地:160平方米
簡單平房農村自建一層別墅設計圖,時尚大氣,造價經濟
占地:166平方米
帶地下室的農村三層雙拼別墅設計圖,復式戶型,面寬23米
占地:261.6平方米左右
兩層15萬農村自建房設計圖,農村蓋房設計大全圖
占地:130平方米
仿古別墅建筑設計圖,外觀效果圖+全套施工圖
占地:142平方米
130平米新農村自建房屋施工建筑圖紙及效果圖
占地:132平米
農村實用三層樓房圖片,占地140平米左右,客廳中空
占地:140平方米
農村小戶型二層房屋別墅設計圖,帶外觀效果圖
占地:95平方米
160平方米經典鄉村二層房屋設計圖紙
占地:160平方米
推薦:10套新農村自建房設計圖,2026年最新設計
閱讀次數:4825737次
100套鄉村別墅圖片大全,2026年最新設計
閱讀次數:2492203次
6款農村蓋一層平房的設計圖,10萬元就能建起來
閱讀次數:1852637次
這11個一層農村自建房別墅火爆了朋友圈!我最喜歡戶型十!你呢
閱讀次數:750268次
農村6萬元建一層小別墅圖,你敢相信嗎
閱讀次數:567686次
農村5萬塊就能自建房,6套普通房子設計圖分享,你沒看錯!
閱讀次數:419410次
8套農村漂亮三間平房圖片,非常適合在農村修建!
閱讀次數:411197次
農村自建房化糞池怎么做?附方案及施工過程
閱讀次數:391783次
農村一層三間平房設計圖,告別土氣養老房,讓人忍不住點贊
閱讀次數:350581次
新農村二層樓房圖片造價12萬,挑一套回家建房吧!
閱讀次數:349126次
