
|
農村的房子最重要的是什么?當然是漂亮的外觀 合理的布局了,畢竟人們對一棟房子的評價首先是從外觀來看的,外觀讓人感覺精致漂亮,室內布局再完善一下,就是一棟好的住宅。 這款 37萬140㎡3廳7臥三層全套高清效果圖,采用鮮艷的配色方案,以紅色為主,淡黃色為輔,視覺沖擊感很強,車庫上方設有露臺,三層也有一個露臺,適合賞景、晾曬東西,一層設有堂屋,可以安置神位,想必很多農村地區都有祭拜祖先的習俗。此外有不少臥室套間,使用起來十分方便。
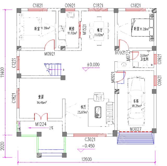
正面效果圖 本套三層農村自建房設計圖功能設計 層數:三層 開間:12.6米 進深:11.4米 首層占地面積:142.5平方米 總建筑面積:376.97平方米 結構形式:框架結構 主體造價:37萬
俯視圖 功能設計
一層平面圖 一層:堂屋、客廳、車庫、臥室×2、廚房、餐廳、公衛
二層平面圖 二層:客廳、主臥(帶書房、陽臺、書房、露臺、衛生間)、次臥×2、公衛
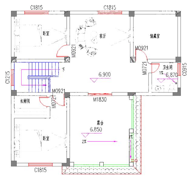
三層平面圖 三層:客廳、臥室(帶衣帽間)、臥室、儲藏室、公衛、露臺 圖紙之家-專注農村別墅/自建房設計18年,集合國內200余位經驗豐富的設計師,被評為口碑最好的農村建筑設計公司! |

最實用中式一層三合院別墅設計圖,簡約精致布局實用
占地:162.49平方米
230平方農村雙拼別墅設計圖,26x11米自建房屋戶型
占地:230平方米
復式別墅新農村二層房屋設計圖紙,屋頂錯落有致
占地:多戶型可選
一層中式七字型房屋設計圖,帶院子經典設計,耐看不過時
占地:163.18平方米
簡單農村自建二層樓房設計圖,南北通透
占地:140平方米
占地105平實用三層樓房別墅設計圖紙,造型方正簡單大氣
占地:105平方米
農村4間3層樓房設計圖,帶車庫,挑空客廳,坡屋頂設計
占地:160平方米
大戶型三層別墅設計圖,高貴大氣,占地面積將近300平
占地:273.33平方米
2026年簡單實用二層農村別墅,經典大氣真的香
占地:165.98平方米
200平農村二層別墅設計圖,外觀現代簡約
占地:204平方米
180平方米新農村雙拼戶型別墅房屋設計圖紙帶外觀圖17X11米
占地:180平方米
300平大戶型豪華三層別墅設計圖,帶總統套房
占地:300平方米
鄉村三層別墅CAD建筑設計圖,110平方米戶型,帶效果圖和全套施工
占地:110平方米
農村二層住宅設計圖,大窗戶客廳,一起享受大面積采光的溫暖
占地:220平方米
兄弟雙拼別墅設計戶型圖及設計方案圖,帶外觀效果圖,外觀好看
占地:185平方米(單棟)
農村平屋頂三層現代風別墅戶型圖,簡約實用經濟顏值高
占地:111.9平方米
三層復式別墅設計圖紙(含效果圖),復式住宅設計圖精選
占地:147.7平方米
農村二層仿古尖屋頂別墅設計圖,外觀古樸耐看
占地:87平方米左右
歐式風格高檔三層別墅設計圖紙,帶高清外觀效果圖
占地:105平方米
2026年最新三層房屋設計圖紙,12米×11米,實用接地氣
占地:130平方米
推薦:10套新農村自建房設計圖,2026年最新設計
閱讀次數:4825737次
100套鄉村別墅圖片大全,2026年最新設計
閱讀次數:2492203次
6款農村蓋一層平房的設計圖,10萬元就能建起來
閱讀次數:1852637次
這11個一層農村自建房別墅火爆了朋友圈!我最喜歡戶型十!你呢
閱讀次數:750268次
農村6萬元建一層小別墅圖,你敢相信嗎
閱讀次數:567686次
農村5萬塊就能自建房,6套普通房子設計圖分享,你沒看錯!
閱讀次數:419410次
8套農村漂亮三間平房圖片,非常適合在農村修建!
閱讀次數:411197次
農村自建房化糞池怎么做?附方案及施工過程
閱讀次數:391783次
農村一層三間平房設計圖,告別土氣養老房,讓人忍不住點贊
閱讀次數:350581次
新農村二層樓房圖片造價12萬,挑一套回家建房吧!
閱讀次數:349126次
