
|
這款二層農村自建房功能多樣,有車庫、挑空客廳、露臺、臥室套房,還有超大落地窗,室內采光通透,布局合理,空間利用率高,外墻采用黃、白、灰三色裝飾,色彩簡約搭配協調,整體視覺效果圖美觀大氣,本戶型共設有1廳5臥。
效果圖 開間 13 米 進深 14 米 總建筑面積: 300平方米 主體造價: 25萬 結構形式:磚混結構 設計功能:
一層平面圖 一層:客廳(挑空)、臥室、廚房、餐廳、衛生間、車庫;
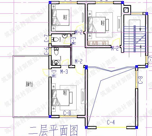
二層平面圖 二層:主臥(附內衛,屋面平臺)、2臥室、衛生間;
三層平面圖 三層:臥室(附書房,衛生間,陽臺)、露臺。 圖紙之家-專注農村別墅/自建房設計18年,集合國內200余位經驗豐富的設計師,被評為口碑最好的農村建筑設計公司! |

230平方米新農村二層自建別墅設計圖紙帶外觀圖,20X11米
占地:227平方米
110平左右三間兩層農村別墅房屋設計圖,含外觀效果圖
占地:107平方米
230平方農村雙拼別墅設計圖,26x11米自建房屋戶型
占地:230平方米
農村四層復式房屋設計圖紙,占地105平方米預算35萬左右
占地:105平方米
簡單大氣二層兄弟雙拼樓房設計圖,外觀簡約
占地:268平方米
新農村實用三層帶露臺房屋設計圖紙,占地110平方米
占地:109平方米
帶中式小院的二層仿古別墅設計圖,小戶型自建房設計,外觀美極
占地:82.94
18米寬一層中式小院設計圖,三合院戶型布局寬敞大氣
占地:232.75平方米
面寬8米多小開間三層農村別墅設計圖,占地不足百平
占地:95.21
120平米三層30萬別墅圖片大全及全套施工圖,外觀簡潔大方
占地:120平方米
四層(三層半)豪華歐式別墅房屋設計圖,外觀高端、大氣
占地:150平方米
高端大氣三層歐式別墅設計圖,高檔新款外型圖片美觀時尚
占地:168平方米
二層美式花園洋房設計圖,帶堂屋戶型,外觀簡直美爆了
占地:159.32平方米
2026最新款獨棟中西雙餐廳三層別墅設計圖,精巧實用好看不貴
占地:226.12平方米
農村二層半房子設計圖 ,占地110平米和160多平兩個戶型圖
占地:多種戶型
復式三層雙拼別墅設計圖,客廳中空,旋轉樓梯
占地:350平方米
面寬不到10米的小戶型自建房戶型圖,全套設計圖紙可施工
占地:123.2平方米左右
客廳中空的三層豪華小別墅設計圖,時尚靚麗,鄉下建一棟有面子
占地:171.25平方米
闊氣高端的三層別墅設計圖,亮得恰到好處,永遠也住不膩
占地:160平方米
農村二層別墅優選設計圖,戶型小巧精致,顏值與實用并存!
占地:95.25平方米
推薦:10套新農村自建房設計圖,2026年最新設計
閱讀次數:4825737次
100套鄉村別墅圖片大全,2026年最新設計
閱讀次數:2492203次
6款農村蓋一層平房的設計圖,10萬元就能建起來
閱讀次數:1852637次
這11個一層農村自建房別墅火爆了朋友圈!我最喜歡戶型十!你呢
閱讀次數:750268次
農村6萬元建一層小別墅圖,你敢相信嗎
閱讀次數:567686次
農村5萬塊就能自建房,6套普通房子設計圖分享,你沒看錯!
閱讀次數:419410次
8套農村漂亮三間平房圖片,非常適合在農村修建!
閱讀次數:411197次
農村自建房化糞池怎么做?附方案及施工過程
閱讀次數:391783次
農村一層三間平房設計圖,告別土氣養老房,讓人忍不住點贊
閱讀次數:350581次
新農村二層樓房圖片造價12萬,挑一套回家建房吧!
閱讀次數:349126次
