
|
熟悉的土地,熟悉的山野 如果要實現一個關于故鄉的夢 那一定是在這青山綠水里建一座屬于自己的私人別墅 這是每個從農村出去的成功人士的共同夢想 對這座別墅的要求也自然都是要體面大氣 來自湖北的付先生覺得一個完美的家 既要符合中國人的審美 同時也要結合現代的舒適 基于此,定制設計了這一款新中式別墅 確認過眼神,在村子里是最美
要說古代最適合中國人居住的是中式,那么現代,最符合國人品味的一定就是新中式了。中式屋檐設計,大氣吉祥,金屬欄桿與鋼化玻璃提升時尚度,完美將傳統中式元素與現代時尚元素結合,這種房子,只看一眼,就會覺得喜歡的不得了。
正面設計簡潔大方,中式的飄出屋檐,讓人即使是在最美的下雨天,也有可以躲雨的屋檐。多窗戶設計,不僅為整體外觀加分,也保證了室內采光和居住的舒適度,在眾多鄉村歐式中讓人眼前一亮。
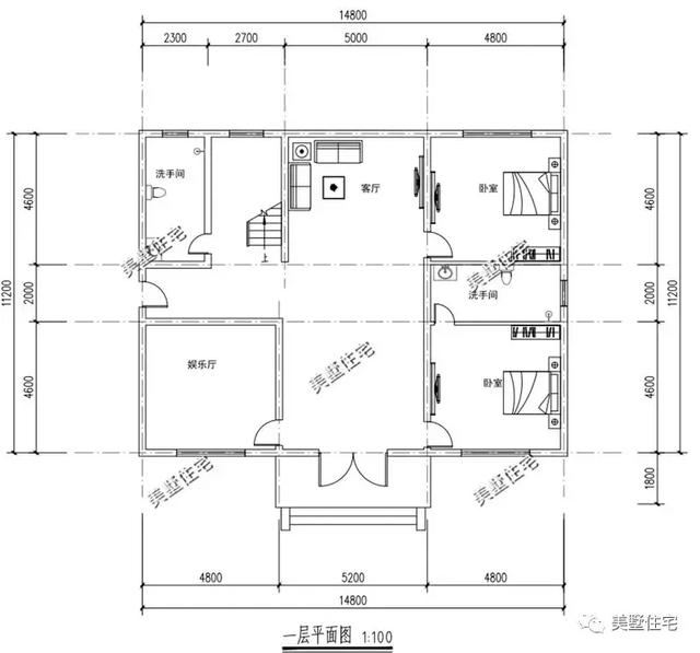
基本信息 別墅編號:MS1706017 占地尺寸:14.8X11.2米 占地面積:170平方米 建筑面積:350平方米 結構類型:可定制結構 造價預算:35萬左右 平面布局圖
一層設客廳、娛樂廳、兩間臥室、兩間衛生間。 該款戶型應業主要求廚房另建,實現潔污分離,保證室內整潔衛生,除大門外,西側設小門方便進出廚房。 鄉村別墅有較多的接待需求,不管是朋友還是親戚都更愿意走動拜訪,所以進門即是超大的客廳設計。這樣人來人往財興旺,有人氣有福氣。 娛樂廳位于西南角,在鄉村除了收獲季節,平時時間較多,無聊或者親友拜訪無處可去之時,可以玩玩牌、喝喝茶打發時間。 其中一間臥室帶有獨立衛生間,方便晚上起夜,可以作老人房使用。另一間衛生間位于樓梯旁邊,室內的空間全都得到了有效利用。
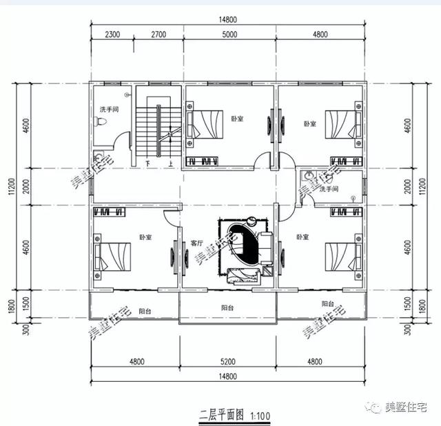
二層設客廳、四間臥室、兩間衛生間、三個陽臺。 樓上為休息去,布局以實用為主,設有四間臥室,均帶有采光通風窗,居住舒適度無需擔心。總共六間臥室,足夠一般人口家庭使用。 圖紙之家-專注農村別墅/自建房設計18年,集合國內200余位經驗豐富的設計師,被評為口碑最好的農村建筑設計公司! |

2026戶型方正三層農村小別墅設計圖紙(含外觀圖片)
占地:150平方米
面寬14.5米三層獨棟別墅設計圖,經典設計,大氣之作
占地:123.85平方米
農村三層半別墅設計圖及外觀效果圖,三層半樓房設計方案推薦
占地:100平方米
125平兩層別墅房屋設計圖,帶普通和復式兩個戶型
占地:125平方米
農村三層別墅新款圖片及戶型設計圖紙大全,110平簡歐風格
占地:110平方米左右
農村二層半帶露臺別墅圖片及設計圖,戶型方案比較經典
占地:123平方米
最新12x9米一層平房別墅設計圖,好看不貴居住舒適!
占地:108平方米
帶庭院中式二層四合院別墅設計效果圖片,方方正正
占地:404平方米
精致農村別墅圖,150平米一層三合院設計,四臥二廳舒適宜居
占地:149.43平方米
帶車庫四層別墅外觀效果圖及設計圖紙,戶型方正通透
占地:115平方米
農村三層樓房設計圖紙及效果圖,經典自建圖紙
占地:201平方米
小型農村二層自建樓房設計圖,面寬10米小占地經濟
占地:78.54平方米
私人別墅房屋cad施工設計圖,造型精致、美觀
占地:105平方米
15萬左右新中式二層別墅設計圖平面圖,占地110平米左右
占地:110平方米
經典三層別墅設計圖紙(全套施工圖+效果圖),新農村自建推薦
占地:123平方米
2026最新兄弟簡歐雙拼別墅設計圖紙,單戶130平米左右
占地:260平方米
帶地下室KTV三層農村自建別墅設計圖,12米乘12.5米
占地:131.7平方米
帶車庫帶露臺二層農村小別墅設計圖,宅基地大小適中,外觀造型
占地:180平方米
170平方米農村二層房屋設計施工圖,外觀圖時尚、好看
占地:172平方米
兄弟雙拼四間三層別墅設計圖,農村自建推薦戶型方案
占地:260平方米
推薦:10套新農村自建房設計圖,2026年最新設計
閱讀次數:4825737次
100套鄉村別墅圖片大全,2026年最新設計
閱讀次數:2492203次
6款農村蓋一層平房的設計圖,10萬元就能建起來
閱讀次數:1852637次
這11個一層農村自建房別墅火爆了朋友圈!我最喜歡戶型十!你呢
閱讀次數:750268次
農村6萬元建一層小別墅圖,你敢相信嗎
閱讀次數:567686次
農村5萬塊就能自建房,6套普通房子設計圖分享,你沒看錯!
閱讀次數:419410次
8套農村漂亮三間平房圖片,非常適合在農村修建!
閱讀次數:411197次
農村自建房化糞池怎么做?附方案及施工過程
閱讀次數:391783次
農村一層三間平房設計圖,告別土氣養老房,讓人忍不住點贊
閱讀次數:350581次
新農村二層樓房圖片造價12萬,挑一套回家建房吧!
閱讀次數:349126次
