
|
對于如今很多農村建房的朋友來說,建房的成本是大家都比較關注的一個話題。誰都想花少錢,建好的房子,但是現實真能有這樣好的事嗎?今天小編要給大家推薦的6款別墅戶型,不僅每款都很接地氣,而且還經濟實用。下面大家不妨就一起先來看看吧! 美墅住宅01款戶型
本戶型屋頂采用英紅彩瓦,平屋頂與坡屋頂相結合,外觀造型高低錯落,別致大方,采光通風良好,色彩明快,整體平面布局緊湊、功能分區合理,房間尺度設計適宜,空間利用率高。 別墅戶型基本資料 風格:鄉村別墅 結構:磚混結構 占地尺寸:10.9×9.1米 占地面積:104平方米 建筑面積:206平方米 建筑高度:6.9米 參考造價:18萬左右
一層設有客廳、餐廳、廚房、活動室、老人房、衛生間。
二層設有主臥、小孩房、書房、衛生間2間、一個大露臺。 美墅住宅02款戶型
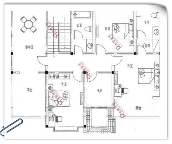
別墅基本資料 占地尺寸:14X15.6米 占地面積:217.9平方米 建筑面積:平方米 結構類型:磚混結構 層高:11.1米 建筑層數:2層
一層平面圖:設有玄關,客廳,廚房,餐廳,二臥室,棋牌室,衛生間
二層平面圖:設有客廳,五臥室,書房,二衛生間,二陽臺。 美墅住宅03款戶型
v 別墅基本資料 編號:MS1702001 風格:獨院式別墅 結構:框架結構 占地尺寸:14.34×11.34米 占地面積:150.95平方米 建筑面積:279.93平方米
一層:門廳、客廳、2臥室、廚房、餐廳、衛生間、車庫。
二層:活動室(附露臺)、主臥室(附衣帽間,衛生間,露臺)、2臥室、書房、衛生間。 圖紙之家-專注農村別墅/自建房設計18年,集合國內200余位經驗豐富的設計師,被評為口碑最好的農村建筑設計公司! |

占地105平實用三層樓房別墅設計圖紙,造型方正簡單大氣
占地:105平方米
占地130平方米中式二層小樓房設計圖紙,農村自建戶型實用
占地:136.04平方米
50萬左右農村三層別墅設計圖紙,帶大露臺,外觀大氣
占地:150平方米
農村二層中式小三合院別墅全套設計圖,民族特色風格
占地:122平方米
農村二層中式戶型設計圖,造型古香古色,建好絕對是地標
占地:245.39平方米
簡約精致的二層房子設計圖,農村自建經濟實用
占地:89.76平方米
簡歐風格二層別墅設計圖,經典不過時大氣時尚,漂亮的不像話!
占地:205.68平方米
四層(三層半)復式別墅設計圖片大全,歐式風格
占地:174平方米
造價40萬內三層別墅房屋設計方案,設計圖+外觀效果圖
占地:150平方米
架空層設計的農村自建房別墅設計圖,既做車庫又做儲物間,太實
占地:230.62平方米
100平米左右簡單實用的二層樓房設計圖,施工簡單造價低
占地:95平方米
給爸媽建養老房?100 平人字坡一層房太合適!簡約低調還實用
占地:102.6平方米
3款三層農村自建別墅設計圖,氣派十足,準備建房的快快查看
占地:多戶型可選
面寬20米四開間二層別墅,火爆全村的戶型,美好生活的起點
占地:245.73平方米
120平方米帶地下室三層復式別墅戶型圖,現代風格
占地:120.78平方米左
120平方房子設計圖及外觀圖片,12x10經典設計
占地:120平方米
20萬以內二層歐式小別墅設計方案,全套施工圖+效果圖
占地:115平方米
農村兩間三層房屋設計圖,含外觀圖片
占地:120平方米
12x10三層別墅設計圖,農村自建房推薦戶型
占地:120平方米
豪華大氣三層農村房屋設計圖,對稱的主體設計大氣恢宏
占地:240平方米
推薦:10套新農村自建房設計圖,2026年最新設計
閱讀次數:4825737次
100套鄉村別墅圖片大全,2026年最新設計
閱讀次數:2492203次
6款農村蓋一層平房的設計圖,10萬元就能建起來
閱讀次數:1852637次
這11個一層農村自建房別墅火爆了朋友圈!我最喜歡戶型十!你呢
閱讀次數:750268次
農村6萬元建一層小別墅圖,你敢相信嗎
閱讀次數:567686次
農村5萬塊就能自建房,6套普通房子設計圖分享,你沒看錯!
閱讀次數:419410次
8套農村漂亮三間平房圖片,非常適合在農村修建!
閱讀次數:411197次
農村自建房化糞池怎么做?附方案及施工過程
閱讀次數:391783次
農村一層三間平房設計圖,告別土氣養老房,讓人忍不住點贊
閱讀次數:350581次
新農村二層樓房圖片造價12萬,挑一套回家建房吧!
閱讀次數:349126次
