
|
前些年每次回老家都感覺很自豪,因為我家蓋的房子是左鄰右舍都沒有的洋房,而且鄰居來我家串門看著它們用羨慕的眼光,其實心里挺高興的,并不是虛榮心強,我覺得誰家都一樣吧,畢竟辛辛苦苦建出來的房子,被別人贊美,心里都會很高興的。 可是現在每次回老家看到自家住的房子就唉聲嘆氣,為什么呢? 因為我家蓋房蓋得早,前些年蓋房都是施工隊說了算,把自己的大概要求說一下,它們就會根據自己的經驗去蓋。可是現在蓋房呢,人家都會在成千上萬套別墅設計圖里面挑選出最適合自身要求的設計圖去聯系施工隊,而且別墅圖紙上面的款式都是最新穎時尚的,即使過個幾十年都不見得過時,唉。現在后悔也沒有用,也不可能把自家剛蓋了10來年的房子去推倒重新建了。 下面大家一起來看下鄰居選中即將要蓋得3款漂亮三層別墅圖片大全吧,其中第2款鄰居完工入住了,據鄰居介紹,這款別墅只算毛坯蓋好花了26萬左右,在我看來這錢花的簡直太值了! 戶型一:120平方三層房子設計圖介紹: 漂亮實用農村自建小別墅設計圖,占地只有120平方米,外觀大氣豪華,深藍色屋頂,淡黃色與白色相搭配的外墻漆,底層灰色瓷磚,從上到下,從輕到重,落落大方,精致穩重。
施工圖紙詳情介紹: 占地面積:10.7m*11.2m,一層占地120平方米左右; 建筑層高:三層;建筑高度:12.03米(含屋頂);
戶型二:三層帶獨立車庫的樓房設計圖介紹:(如果想看實拍圖,請往下看) 本方案為戶型好的三層帶獨立車庫的樓房設計圖,含外觀效果圖,獨立車庫可以需求不建造,本方案戶型經典,功能齊全,外觀配色好看,大方。
施工圖紙詳情介紹: 占地面積:15.60m*9.50m(含車庫),占地148平左右;12.00m*9.50m(不含車庫),占地115平左右; 建筑層高:三層;建筑高度:13.05米(含屋頂);
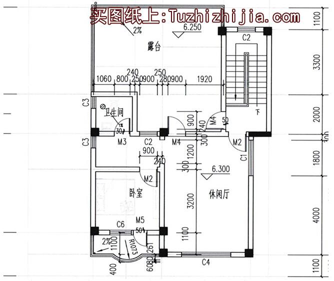
鄰居建好的實拍圖展示: 因為鄰居的地理問題,鄰居建的時候讓施工隊把圖紙給左右顛倒了,但是蓋好后絲毫不影響實用性與美觀,看完鄰居家建的房子,不得不感嘆,現在的施工隊也在適合潮流,技術一年比一年進步。 戶型三:25萬農村別墅設計圖介紹: 本戶型為預算二十五萬左右的別墅設計方案,樓中樓結構(客廳中空),帶獨立車庫(車庫上面是個小屋頂花園,與二層相通,不要車庫可以直接不建造,不需要修改圖紙),這套圖紙配色比較正,建好實體比效果圖要好看很多。
施工圖紙詳情介紹: 占地面積:12.2m*13.5m(尺寸含左側獨立車庫),占地125平方米左右; 建筑層高:三層;建筑高度:11.09米(含屋頂);
親們看完這3款農村別墅,你喜歡哪款呢? 一輩子就建一次房子,一定不能將就,所以大家開工之前一定要慎重,不僅要找到一款適合自己的別墅圖紙,還要挑選一家有實力的施工隊才可以。 如果想看更多建房圖紙,可以點擊下方更多圖紙展示 圖紙之家-專注農村別墅/自建房設計18年,集合國內200余位經驗豐富的設計師,被評為口碑最好的農村建筑設計公司! |

可以傳家的新中式二層別墅,經典耐看,再過幾十年也不過時
占地:146.81平方米
16×12米二層歐式帶車庫農村小別墅,既舒適又美觀
占地:180平方米
185平方米二層自建別墅設計施工圖紙及外觀效果圖,15x13米
占地:186平方米
農村宅基地建房二層別墅設計圖,適合回鄉自建!
占地:137.5平方米
130平方米別墅設計圖紙(含外觀效果圖,)三層別墅設計方案
占地:135平方米
鄉村二層半別墅圖紙設計,歐式風格、錯落有致,150平左右
占地:149.76
二層新中式小別墅設計圖紙,舒適實用,16米乘12米
占地:189.88平方米
新中式三層歐式別墅設計圖,盡顯貴族風范,占地135平
占地:134.37平方米
2026年新款二層半農村自建小別墅設計圖紙,占地150平方米
占地:150平方米
45萬新中式二層雙拼自建房別墅設計圖,平屋頂設計
占地:210平方米
雙戶168平方米小戶型新農村雙拼樓房設計建筑圖紙帶外觀圖
占地:168平方米
新農村一層平屋頂簡單自建房別墅設計圖紙,全套設計
占地:130平方米
145平方米新農村二層別墅設計效果圖及施工圖,12.6米x11.4米
占地:147平方米
農村4間3層樓房設計圖,帶車庫,挑空客廳,坡屋頂設計
占地:160平方米
私人經濟小別墅設計圖,農村自建小洋樓100平左右戶型
占地:104平方米
農村兄弟合建一層雙拼房別墅圖,對稱設計,工整大方!
占地:170平方米
豪華農村帶露臺三層樓房別墅設計圖紙,占地200平方米左右
占地:200平方米
農村最漂亮平頂三層別墅設計圖,10.5乘11.5米
占地:119.35平方米
共用中堂雙拼兄弟三層別墅設計圖,簡歐式風格
占地:230平方米
2026新款新式農村50萬三層別墅圖片,帶地下室,美觀大氣
占地:130平方米左右
推薦:10套新農村自建房設計圖,2026年最新設計
閱讀次數:4825737次
100套鄉村別墅圖片大全,2026年最新設計
閱讀次數:2492203次
6款農村蓋一層平房的設計圖,10萬元就能建起來
閱讀次數:1852637次
這11個一層農村自建房別墅火爆了朋友圈!我最喜歡戶型十!你呢
閱讀次數:750268次
農村6萬元建一層小別墅圖,你敢相信嗎
閱讀次數:567686次
農村5萬塊就能自建房,6套普通房子設計圖分享,你沒看錯!
閱讀次數:419410次
8套農村漂亮三間平房圖片,非常適合在農村修建!
閱讀次數:411197次
農村自建房化糞池怎么做?附方案及施工過程
閱讀次數:391783次
農村一層三間平房設計圖,告別土氣養老房,讓人忍不住點贊
閱讀次數:350581次
新農村二層樓房圖片造價12萬,挑一套回家建房吧!
閱讀次數:349126次
