
|
隨著人們的經濟水平越來越高,農村自建房的人越來越多,四層別墅也是當下很流行的一款別墅設計。下面給大家推薦一款四層框架結構別墅,從外觀上頗有現代感,屋內設計有挑空客廳,以及旋轉樓梯,還帶有屋頂大露臺,讓住戶盡享舒適非凡的生活。 別墅基本信息開間:11.55米 進深:11.975米 占地面積:121平方米 建筑面積:390平方米 建筑高度:13.47米(含屋頂) 結構:框架結構 屋頂形式:坡屋頂 樓層:4層 主體造價:40萬(僅供參考)
▲圖片編號:18062101 戶型說明本戶型是四層單家獨院式別墅,采用坡屋頂,天藍色琉璃瓦與米黃色瓷磚相結合,簡潔大方,多處使用羅馬柱,凸顯歐式風格,多面開窗加強室內采光和通透性,而大面積的弧形玻璃窗,增強別墅整體的立體感、層次感。
功能設計
一層設有客廳、餐廳、廚房、洗衣間、儲藏間、衛生間。
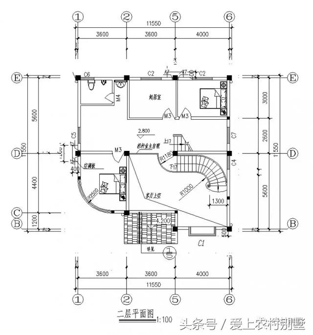
二層設有起居室、客廳上空、2間臥室、衛生間。
三層設有起居室、書房、主臥(帶內衛、更衣室)、2間次臥、衛生間、陽臺。
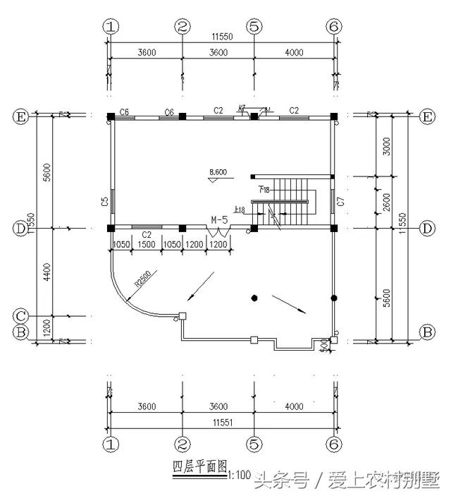
四層房間功能自定、露臺。
![]() 圖紙之家-專注農村別墅/自建房設計18年,集合國內200余位經驗豐富的設計師,被評為口碑最好的農村建筑設計公司! |

農村四間兩層樓房設計圖,外觀時尚,戶型實用
占地:180平方米
農村建房兄弟雙拼兩層住宅設計圖,單戶150平米左右
占地:300平方米
30萬預算三層別墅設計圖紙及效果圖,新農村自建推薦
占地:110平方米
160平方米農村三層小別墅設計圖紙,13.8x12.7米
占地:163平方米
農村小別墅一層設計圖紙,全套施工圖兩款戶型可選
占地:多種戶型可選
簡單農村二層平屋頂房屋設計圖,外觀簡潔、大方
占地:200平方米
120平米農村三層房屋設計圖,客廳中空,戶型合理
占地:120平方米
精致典雅的90平和100平方米二層樓房圖紙,藏不住的經典
占地:多種戶型
歐式二層農村別墅設計圖,140平方米戶型方正的好方案
占地:142.51平方米
農村15萬元二層小樓設計圖,外觀簡潔、樸素,造價低
占地:138平方米
最新款農村三層自建房戶型設計圖及外觀圖片照片,鄉村蓋房精選
占地:112.56平方米
一層半帶閣樓別墅設計圖,悠閑舒適,養老度假皆可
占地:161.94平方米
面寬8米多小開間三層農村別墅設計圖,占地不足百平
占地:95.21
新農村三層自建房屋設計圖,含外觀圖片
占地:136平方米
新中式風格二層住宅設計圖,農村自建房不土氣
占地:144.5平方米
200平方米農村二層中式四合院設計圖,含外觀圖片
占地:200平方米
三層別墅40萬左右氣派的外觀效果圖,含全套施工設計圖
占地:161.46平方米
10×12米三層別墅戶型,挑空大客廳設計,圈粉無數的爆款方案
占地:120平方米
農村小洋樓設計圖及效果圖,二層樓房設計圖
占地:120平方米
實用三層新農村住宅設計圖,鄉村別墅設計圖(含外觀效果圖)
占地:102.34平方米
推薦:10套新農村自建房設計圖,2026年最新設計
閱讀次數:4825737次
100套鄉村別墅圖片大全,2026年最新設計
閱讀次數:2492203次
6款農村蓋一層平房的設計圖,10萬元就能建起來
閱讀次數:1852637次
這11個一層農村自建房別墅火爆了朋友圈!我最喜歡戶型十!你呢
閱讀次數:750268次
農村6萬元建一層小別墅圖,你敢相信嗎
閱讀次數:567686次
農村5萬塊就能自建房,6套普通房子設計圖分享,你沒看錯!
閱讀次數:419410次
8套農村漂亮三間平房圖片,非常適合在農村修建!
閱讀次數:411197次
農村自建房化糞池怎么做?附方案及施工過程
閱讀次數:391783次
農村一層三間平房設計圖,告別土氣養老房,讓人忍不住點贊
閱讀次數:350581次
新農村二層樓房圖片造價12萬,挑一套回家建房吧!
閱讀次數:349126次
