
|
隨著生活水瓶不斷提高,人們對農村自建房的審美也不同以前了,過去那些普通方正的樓房已經滿足不了現代農村的住房需求了,人人都希望自家的房子造型好看又特別,室內布局又實用,但尋找適合自家的別墅圖紙確實不易,有的圖紙外觀造型符合審美了,但布局又有些差強人意。農村別墅多種多樣,地方不同,別墅的高度、層數、面積大小都各不相同,今天小編給大家分享一款面向大眾的二層辦三層簡歐12×11米35萬2廳7臥帶娛樂室獨棟別墅施工圖,適合大部分農村家庭,一起來欣賞。
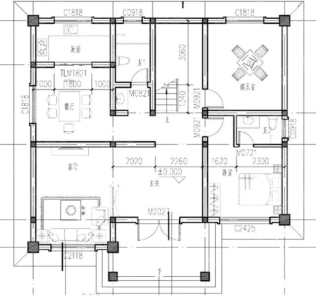
效果圖 圖紙詳情 層數:三層 開間:12米 進深:10.8米 首層占地面積:124.5㎡ 總建筑面積:333.50㎡ 結構形式:磚混結構 主體造價:35萬 平面圖展示
一層平面圖 一層:玄關、客廳、臥室(帶衛生間)、娛樂室、廚房、餐廳、衛生間
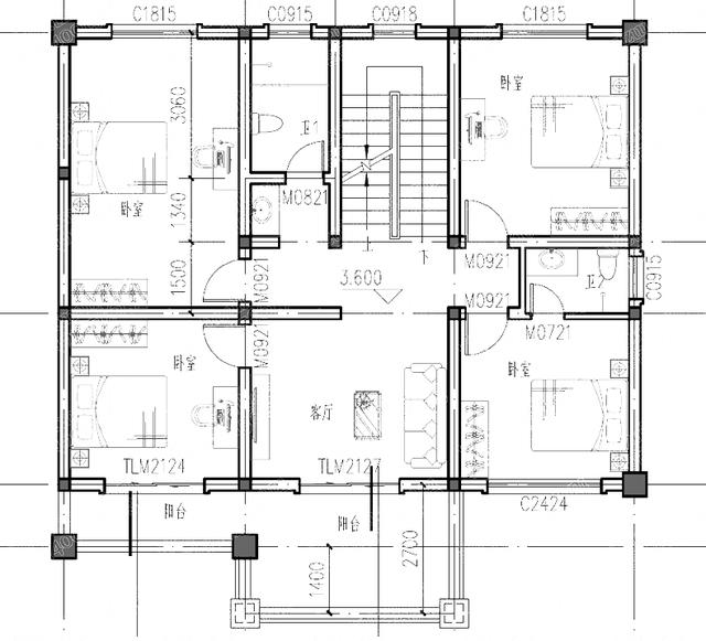
二層平面圖 二層:客廳(帶陽臺)、臥室(帶陽臺)、臥室(帶衛生)、臥室、臥室、公衛
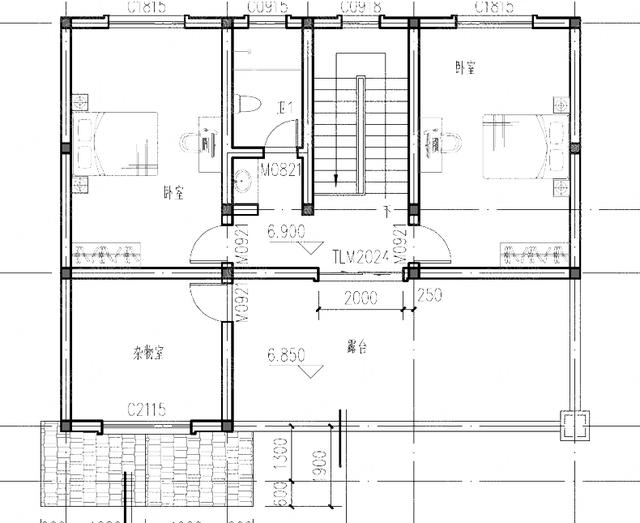
二層平面圖 三層:臥室×2、公衛、露臺、雜物間 圖紙之家-專注農村別墅/自建房設計18年,集合國內200余位經驗豐富的設計師,被評為口碑最好的農村建筑設計公司! |

農村小洋樓設計圖及效果圖,二層樓房設計圖
占地:120平方米
歐式新農村自建三層建筑施工設計圖紙及效果圖大全
占地:106平方米
占地120平米清新脫俗簡單二層別墅設計方案,含效果圖
占地:119.01平方米
300平大戶型豪華三層別墅設計圖,帶總統套房
占地:300平方米
面寬13米簡簡單單一層農村自建別墅設計圖,方正大氣經濟宜居
占地:126.1平方米
新古典中式風格別墅設計圖,全套施工圖+效果圖
占地:188平方米
最美二層樓別墅圖片大全及全套建筑設計圖紙,20萬左右
占地:140平方米
村里三層新中式風自建別墅圖,對稱設計,氣派好看
占地:135.3平方米
鄉村最美四合院設計圖及外觀效果圖片,國人的理想住宅
占地:280.62平方米
三層現代平頂別墅設計圖,簡約時尚百看不厭,外觀令人驚艷!
占地:125.142平方米
陽臺封閉的簡約實用二層別墅設計圖,15x12.8米
占地:165平方米
120平現代實用三層別墅房屋設計圖,含外觀效果圖
占地:120平方米
現代風格精致兩層農村自建房住宅設計圖,帶儲藏室
占地:163平方米
高端大氣三層別墅設計圖,建好就是村里最靚的
占地:120平方米
簡潔大氣140平方三層房子設計圖,帶車庫戶型極佳
占地:140平方米
農村兩層新中式自建房屋設計圖,受歡迎的帶小配房戶型
占地:多戶型可選
漂亮時尚二層樓房設計圖紙,經濟實用,戶型通透
占地:150平方米
100平左右鄉下三層樓房設計圖,戶型方正,小面積宅基地的福音
占地:100平方米
自建一層農村別墅圖,經濟實用新選擇,建房必備參考戶型!
占地:142.88平方米
氣派的歐式風格三層房子設計圖紙,外觀圖太漂亮了
占地:132平方米
推薦:10套新農村自建房設計圖,2026年最新設計
閱讀次數:4825737次
100套鄉村別墅圖片大全,2026年最新設計
閱讀次數:2492203次
6款農村蓋一層平房的設計圖,10萬元就能建起來
閱讀次數:1852637次
這11個一層農村自建房別墅火爆了朋友圈!我最喜歡戶型十!你呢
閱讀次數:750268次
農村6萬元建一層小別墅圖,你敢相信嗎
閱讀次數:567686次
農村5萬塊就能自建房,6套普通房子設計圖分享,你沒看錯!
閱讀次數:419410次
8套農村漂亮三間平房圖片,非常適合在農村修建!
閱讀次數:411197次
農村自建房化糞池怎么做?附方案及施工過程
閱讀次數:391783次
農村一層三間平房設計圖,告別土氣養老房,讓人忍不住點贊
閱讀次數:350581次
新農村二層樓房圖片造價12萬,挑一套回家建房吧!
閱讀次數:349126次
