
|
小編從事設計多年,發現很多城里業主讓我們做私人別墅定制設計,怎么高大尚怎么做,并不是說城里人就比農村朋友更有錢,而是生活在城里,它們接觸新鮮事物和審美一般都比較時尚潮流,它們更注重生活品質,而且也更注重臉面。 而農村自建房呢,業主們更喜歡比較簡單,淳樸,而且它們建房一般都是從生活角度去考慮,怎么實用怎么去建造。 小編今天分享兩款三層別墅設計案例,據調查第一款設計圖,城里人很鐘愛。而農村朋友更喜歡第二款,一起來看看吧! 款式一:城里人最愛高端歐式三層別墅設計圖紙圖紙介紹: 整體為歐式風格,外觀看起來非常大方,不同于傳統歐式那么的華麗。該款更偏向古雅、低調奢華、富麗于一體的獨特風格。 別墅采用瓷磚與真石漆做搭配,更顯沉穩精致、奢華。 建筑占地面積:14.4m*14.1m=176平方米; 建筑面積:492平方米 造價預算35~39萬; 建筑高度:13.85米(含屋頂)坡屋頂; 建好后的實景圖: 設計師做的別墅效果圖:
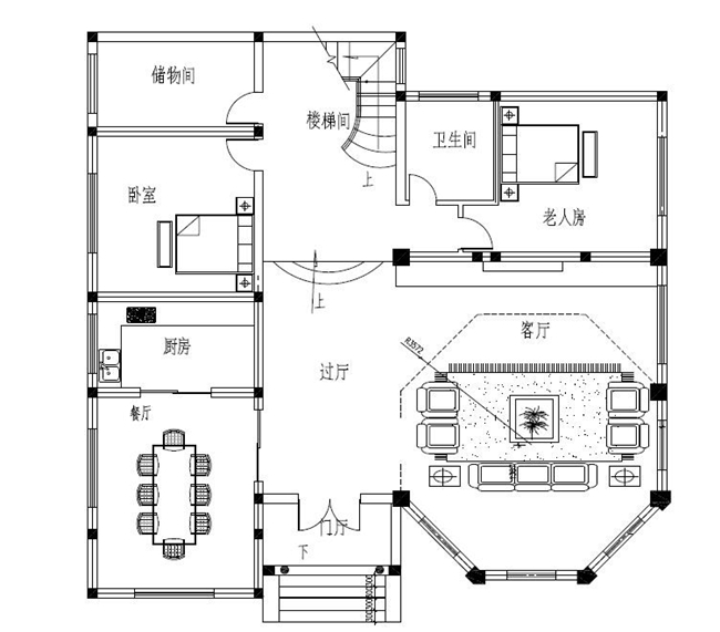
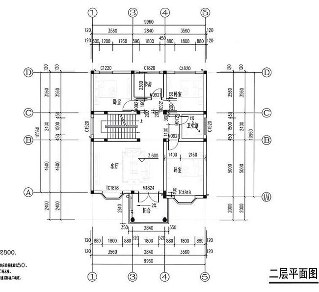
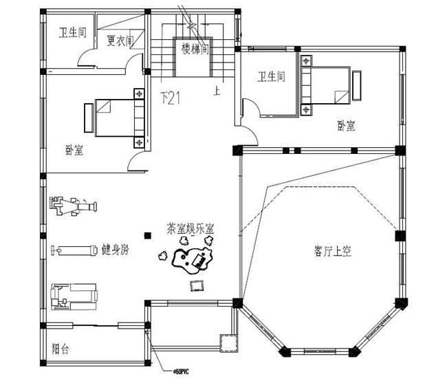
款式二:農村人最愛新農村三層帶露臺自建房設計施工圖圖紙介紹: 本戶型為三層帶露臺別墅。占地面積: 111.68平方米,建筑面積: 305.6平方米,本圖紙戶型合理,采光通風良好。 占地面積:9.96m*12.96m,112平方米左右; 建筑高度:11.69米(含屋頂);
結構形式:磚混結構; 建好后的實景圖: 設計師設計的效果圖:
大家看完之后有什么想法嗎? 其實無論是農村朋友喜歡,還是城里人喜歡,歸根結底都是建房,只不過每個人表達訴求要求不一樣,如果您家也想建房,不妨聯系小編,咱們可以聊聊哦! 圖紙之家-專注農村別墅/自建房設計18年,集合國內200余位經驗豐富的設計師,被評為口碑最好的農村建筑設計公司! |

客廳中空的三層豪華小別墅設計圖,時尚靚麗,鄉下建一棟有面子
占地:171.25平方米
實用農村10萬一層小別墅戶型圖及圖紙,全套施工圖
占地:多種面積
230平米歐式帶地下室三層自建別墅設計施工圖紙及效果圖
占地:230平米
不帶廚房餐廳的二層別墅設計圖,農村建房很多人都這樣做
占地:124平方米左右
兩層樓房設計圖,兩層新農村樓房圖紙,外觀典雅古樸
占地:140平方米
二層簡歐農房!經濟實惠+大氣耐看,20年后不落后
占地:120平方米
鄉村最美四合院設計圖及外觀效果圖片,國人的理想住宅
占地:280.62平方米
100平左右鄉下三層樓房設計圖,戶型方正,小面積宅基地的福音
占地:100平方米
150平米經典二層中式別墅設計圖 ,現代中式相結合
占地:154平方米左右
最好看的農村三層樓房設計圖,占地113平米,小平米大格局
占地:110平方米
大氣的美式三層別墅設計圖,外觀效果圖氣派、美觀
占地:148平方米
簡約大氣四開間二層自建房設計圖,16x10米,經典耐看高顏值
占地:160平方米
一層農村自建房設計圖,造型美觀大氣,占地150平
占地:153.415平方米
面寬17米農村實用自建房一層別墅設計圖,簡約大氣經濟時尚
占地:192.94平方米
155平方米二層別墅房屋設計圖,帶獨立車庫
占地:155平方米
預算30萬左右的新農村三層房屋設計圖推薦,含外觀效果圖
占地:117平方米
農村一層平房別墅設計施工圖效果圖,外觀簡約時尚,17萬到19萬
占地:168平方米
150平二層別墅房屋設計圖,現代風格,造型精致
占地:150平方米
簡單實用的四層農村自建房屋設計圖,占地100平米左右
占地:100平方米
四層簡單新農村房屋設計圖紙,造價低,適合農村自建
占地:多種戶型
推薦:10套新農村自建房設計圖,2026年最新設計
閱讀次數:4825737次
100套鄉村別墅圖片大全,2026年最新設計
閱讀次數:2492203次
6款農村蓋一層平房的設計圖,10萬元就能建起來
閱讀次數:1852637次
這11個一層農村自建房別墅火爆了朋友圈!我最喜歡戶型十!你呢
閱讀次數:750268次
農村6萬元建一層小別墅圖,你敢相信嗎
閱讀次數:567686次
農村5萬塊就能自建房,6套普通房子設計圖分享,你沒看錯!
閱讀次數:419410次
8套農村漂亮三間平房圖片,非常適合在農村修建!
閱讀次數:411197次
農村自建房化糞池怎么做?附方案及施工過程
閱讀次數:391783次
農村一層三間平房設計圖,告別土氣養老房,讓人忍不住點贊
閱讀次數:350581次
新農村二層樓房圖片造價12萬,挑一套回家建房吧!
閱讀次數:349126次
