
|
隨著經濟不斷發展,農村生活水平有了大大提升,他們對于生活的品質也有一定要求,在建房上,對房屋額的外觀設計、室內布局,施工的要求也相對較高。走在農村的路上,你一定會感嘆農村的變化,私家車、小別墅已經不是什么稀奇的事情了,很多家庭的房子比城市的高樓還漂亮精致,可以用翻天覆地一詞來形容農村的變化。 建房子對農村來說確實是大事,需要投入的資金較大,所以我們在建房的時候還需慎重。應謹慎挑選設計圖,這樣不僅能節省成本,還能蓋出理想的房子。下面蓋別墅的小編給大家分享一款11×11米30萬4廳5臥三層帶挑空客廳+旋轉樓梯農村住宅設計圖。 圖紙詳情介紹 本套農村住宅設計圖開間進深11 ×11米,首層占地110㎡,總建筑面積308㎡,采用框架結構,主體預算30萬左右。
效果圖 該戶型采用淡黃色外墻,色彩清新淡雅,富清新文藝氣息;整體屬于簡歐風格,羅馬柱,拱形窗戶,彰顯歐式風情,房間尺度設計適宜,緊湊布局,整體設計端莊穩重。 室內布局
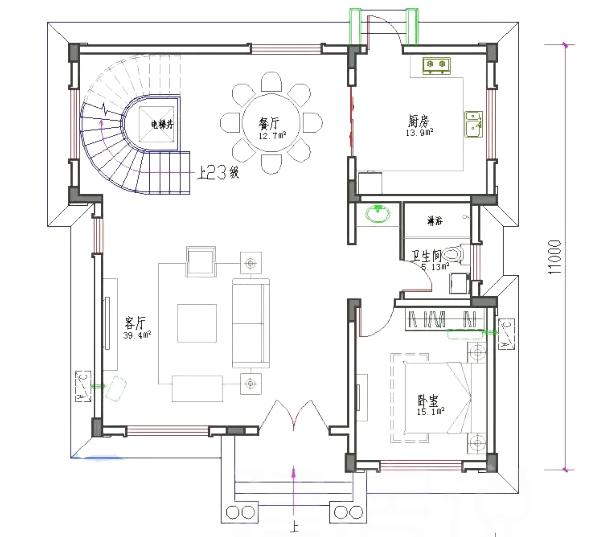
一層平面圖 一層:挑空客廳、臥室、衛生間、廚房、餐廳、電梯井、旋轉樓梯 一層客廳的樓板挑高設計,使得客廳更加寬敞,立體感也更強,客廳與餐廳相連,增大空間感,餐廳左邊有旋轉樓梯,美觀時尚,旋轉樓梯旁邊還設有電梯井,可裝電梯,家里有老人小孩的話,上樓梯也更方便一些。餐廳右邊是廚房,廚房有后門通往室外,廚房前面有一個公用衛生間,衛生間前面是一間臥室。
二層平面圖 二層:起居室(帶露臺)、臥室、臥室、書房、衛生間 二層設有起居室,帶有小露臺,采光效果更佳,本層共2間臥室,還有一個書房,為住戶提供良好的學習和工作環境。
三層平面圖 三層:會客廳、臥室(帶小露臺)、臥室、衛生間、儲藏室、露臺 三層有一個空間較大的會客廳,本層與二層一樣,共設有2間臥室,還有一個儲藏間,方便儲物,收納日常雜物,會客廳設有推拉門通往室外的大露臺,露臺開闊,是賞景的好地方。 圖紙之家-專注農村別墅/自建房設計18年,集合國內200余位經驗豐富的設計師,被評為口碑最好的農村建筑設計公司! |

一層農村自建房設計,背面不開窗,15乘10米,內部布局實用
占地:多戶型可選
帶架空層的兩層別墅設計圖,通透又明亮,建在農村絕對有面子
占地:106.79平方米
好看的三層樓別墅圖片及全套建筑施工設計圖紙
占地:多種戶型
歐式大氣新農村三層別墅豪宅設計圖,外觀高端,對稱設計
占地:225平方米左右
網紅農村一層小別墅設計圖,建一層的必看
占地:多戶型可選
90平方米農村二層房屋設計施工圖紙及效果圖,11x8.5米
占地:90平方米
農村四層樓房設計圖及外觀效果圖,造價60萬左右
占地:163.84平方米
新款現代一層小別墅設計圖,農村自建平房推薦戶型
占地:多戶型可選
16×12米二層歐式帶車庫農村小別墅,既舒適又美觀
占地:180平方米
120平農村三層房屋設計圖,含外觀圖片
占地:120平方米
一層平屋頂自建房圖,簡單而舒適,既省錢不說還不愁沒地曬糧食
占地:106平方米
160平方米經典鄉村二層房屋設計圖紙
占地:160平方米
帶柴火房農村一層自建房設計圖,戶型布局接地氣
占地:126.29平方米
復式別墅農村四層霸氣豪宅設計圖紙,建好你就是村里第一
占地:136.356平方米
四合院別墅設計效果圖及平面圖,全套施工圖紙
占地:220平方米
帶地下室的農村自建三層半歐式別墅設計圖,看著真豪氣!
占地:142.45平方米
120平帶車庫二層農村別墅施工圖,簡約時尚的外觀
占地:119.13平方米
新中式農村三層樓房設計圖,帶地下室,主體建筑面積110平米
占地:110平方米
2026新款二層別墅房屋設計圖,帶外觀圖片
占地:138平方米
2026最新款獨棟中西雙餐廳三層別墅設計圖,精巧實用好看不貴
占地:226.12平方米
推薦:10套新農村自建房設計圖,2026年最新設計
閱讀次數:4825737次
100套鄉村別墅圖片大全,2026年最新設計
閱讀次數:2492203次
6款農村蓋一層平房的設計圖,10萬元就能建起來
閱讀次數:1852637次
這11個一層農村自建房別墅火爆了朋友圈!我最喜歡戶型十!你呢
閱讀次數:750268次
農村6萬元建一層小別墅圖,你敢相信嗎
閱讀次數:567686次
農村5萬塊就能自建房,6套普通房子設計圖分享,你沒看錯!
閱讀次數:419410次
8套農村漂亮三間平房圖片,非常適合在農村修建!
閱讀次數:411197次
農村自建房化糞池怎么做?附方案及施工過程
閱讀次數:391783次
農村一層三間平房設計圖,告別土氣養老房,讓人忍不住點贊
閱讀次數:350581次
新農村二層樓房圖片造價12萬,挑一套回家建房吧!
閱讀次數:349126次
