
|
在農村里其實最講究的就是布局的實用性和經濟性,還有很重要的一點就是宅基地面積的問題,給很多朋友造成了困擾,本期,我們推薦一款開間10米的歐式小別墅,分享給大家做個參考,喜歡就收藏起來吧! 外觀效果圖:
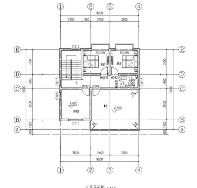
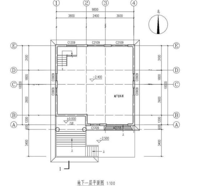
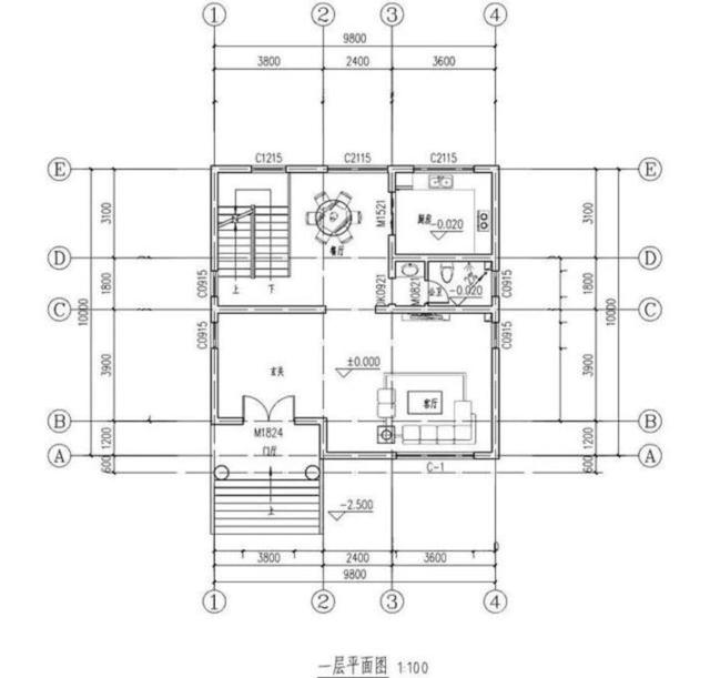
建筑設計信息:開間9.8米,進深10米,建筑占地面積98平米,總建筑面積362平米,建筑檐口高度9.9米,總高度11.7米,不管是占地面積還是高度都非常接近現在的政策限制,建筑采用框架結構建造,上下層架構簡單。
平面布局圖: 建筑地下室沒有做具體的設計和隔斷,除了預留的車位,其他空間可以任意設計,做儲藏室、娛樂室、健身房、酒窖都是不錯的選擇;建筑正門入戶是玄關,右側是客廳,另有廚房、餐廳和衛生間;二層設計有帶露臺的起居室,一間套房,兩間帶飄窗的臥室和衛生間;三層設計有活動室和兩間帶飄窗的臥室,以及頂層大露臺;
圖紙之家-專注農村別墅/自建房設計18年,集合國內200余位經驗豐富的設計師,被評為口碑最好的農村建筑設計公司! |

120平方米農村經典二層房屋設計圖紙,造型精致好看
占地:121平方米
新中式二層農村住宅設計圖,戶型方正,主體造價21萬
占地:135.81平方米
110平左右三間兩層農村別墅房屋設計圖,含外觀效果圖
占地:107平方米
帶柴火房農村一層自建房設計圖,戶型布局接地氣
占地:126.29平方米
農村15萬元一層半小樓圖,最新的戶型設計
占地:182.31平方米
造價33萬左右超漂亮的三層別墅圖紙設計圖,旋轉樓梯戶型設計
占地:121.59平方米
新農村帶陽臺三層樓房圖紙,占地180平米左右,豪華大氣
占地:180平方米
面寬13米三層新中式獨棟別墅設計圖,復式自建房戶型方案
占地:201.25平方米
農村小洋樓設計圖及效果圖,二層樓房設計圖
占地:120平方米
農村兄弟雙拼二層四合院別墅設計圖,戶型左右對稱
占地:430平方米
面寬16米方正實用二層別墅設計圖,中式風格不輸村里的別墅洋房
占地:182.82平方米
復式樓房二層農村別墅圖,村里建一棟絕對人人都羨慕
占地:130.2平方米
帶地下車庫的三層別墅設計圖,160平復式戶型
占地:159.03平方米
建一棟就成了村里的門面擔當!三層歐式別墅,左右對稱太氣派
占地:173.67平方米
經典的農村三層小樓房設計圖,外觀圖片時尚、精致
占地:100平方米
80平方米鄉村一層半帶閣樓自建別墅設計圖,帶車庫
占地:80平方米
100平內簡單精致的小戶型自建房二層設計圖,旋轉樓梯
占地:97.08平方米
豪華二層別墅設計圖紙及效果圖,帶車庫,歐式別墅方案
占地:170平方米
面寬12米三層自建房別墅設計圖,廚房在前面,農村施工隊都能建
占地:138.18平方米
60多平三層現代風格別墅設計圖,小戶型平屋頂
占地:66.4平方米
推薦:10套新農村自建房設計圖,2026年最新設計
閱讀次數:4825737次
100套鄉村別墅圖片大全,2026年最新設計
閱讀次數:2492203次
6款農村蓋一層平房的設計圖,10萬元就能建起來
閱讀次數:1852637次
這11個一層農村自建房別墅火爆了朋友圈!我最喜歡戶型十!你呢
閱讀次數:750268次
農村6萬元建一層小別墅圖,你敢相信嗎
閱讀次數:567686次
農村5萬塊就能自建房,6套普通房子設計圖分享,你沒看錯!
閱讀次數:419410次
8套農村漂亮三間平房圖片,非常適合在農村修建!
閱讀次數:411197次
農村自建房化糞池怎么做?附方案及施工過程
閱讀次數:391783次
農村一層三間平房設計圖,告別土氣養老房,讓人忍不住點贊
閱讀次數:350581次
新農村二層樓房圖片造價12萬,挑一套回家建房吧!
閱讀次數:349126次
