
|
農村別墅風格形態多種多樣,數歐式風格最多,也看膩了羅馬柱。下面給大家實力推薦3棟別墅有3種風格,這三種在農村自建房種比較少。有日式的獨特新穎、法式的精美大氣和現代的時尚簡約。看完你會喜歡這些戶型! 第一款:日式的風格,之間網友說這種風格的少見,于是推薦了這款。
別墅的外觀特點:日式的建筑風格,沒有大氣霸氣的樓層,相當于是一層樓加閣樓形式,屋頂和沿線用的是顏色明亮材料進行勾勒。 屋頂的設計在村里絕對是沒有的,層層疊起的錯落感,格外吸引眼球。
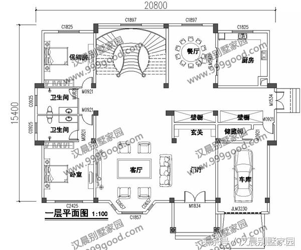
平面功能
第二款:法式的建筑在農村建的話首選需要大宅地,其次是票子。缺一都蓋不出其中大氣的精髓。
法式的建筑形式就是大氣時尚漂亮,層高不高但層次非常多。大大小小的采光窗沒有固定的形態,講究的是不規則動態美。
戶型整體上是對稱的,但是具體到細節之處,沒有全部的一樣的造型。背面效果卻是完全左右對稱,剛好與正面相反的效果,視覺上沖擊讓人過目難忘!
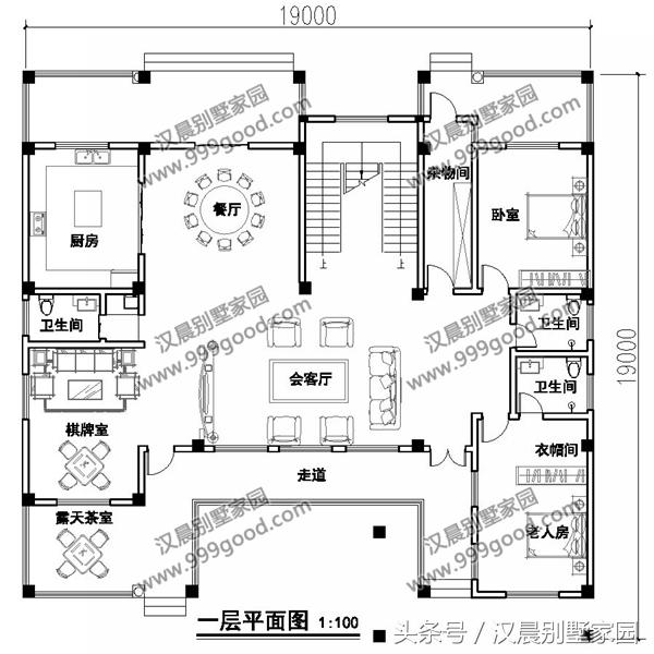
平面功能
第三款:現代別墅建造率也在歐式和中式風格之后,畢竟簡約造型感不強,不能滿足農村人的審美要求。
現代合院的形式,既滿足了農村想要院子的心愿又節省了造價,底下架空的可以當成開放式的車庫,上面的露臺也能乘涼和晾曬。
平面功能
![]() 圖紙之家-專注農村別墅/自建房設計18年,集合國內200余位經驗豐富的設計師,被評為口碑最好的農村建筑設計公司! |

130平方米新農村自建三層別墅設計施工圖,13x11米
占地:130平方米
農村四間一層房屋設計圖,160平方米,用來養老正合適!
占地:160平方米
50萬以內的歐式三層房屋別墅施工設計圖紙及效果圖
占地:169平方米
二層新農村自建房設計圖,帶外觀效果圖
占地:140平方米
2026最火的現代別墅設計圖農村三層戶型,帶地下室
占地:119.79平方米
90平方米農村二層房屋設計施工圖紙及效果圖,11x8.5米
占地:90平方米
新中式別墅一層自建房設計,戶型實用緊湊
占地:170.54平方米
三層別墅40萬左右氣派的外觀效果圖,含全套施工設計圖
占地:161.46平方米
農村二層小樓的設計圖紙,整體外觀凹凸有致,紅色的坡面屋頂
占地:180平方米
新款三層農村自建別墅設計圖,中式風復式客廳
占地:158.96平方米
農村七字型一層別墅圖,獨立廚房設計,鄉村建房優選戶型
占地:159.76平方米
農村7字形漂亮房子設計圖及外觀效果圖
占地:189.3平方米
五開間農村豪華三層別墅設計圖,大格局大氣派,大家庭建房首選
占地:227.04平方米
鄉下建房一層半戶型圖,占地160平米,帶閣樓
占地:多種戶型
經典小戶型新農村房屋住宅設計圖,10萬左右
占地:80平方米
村里蓋房圖紙大廳挑空的三層別墅設計圖,面寬不到10米
占地:122.4平方米
帶柴火房農村一層自建房設計圖,戶型布局接地氣
占地:126.29平方米
20萬左右農村雙拼別墅住宅設計圖,簡單小戶型設計
占地:120平方米
中國最好看的二層農村房子圖片及施工圖紙,20萬現代風格
占地:130平方米
160平方米二層平屋頂房屋設計圖紙及效果圖17x11米
占地:164平方米
推薦:10套新農村自建房設計圖,2026年最新設計
閱讀次數:4825737次
100套鄉村別墅圖片大全,2026年最新設計
閱讀次數:2492203次
6款農村蓋一層平房的設計圖,10萬元就能建起來
閱讀次數:1852637次
這11個一層農村自建房別墅火爆了朋友圈!我最喜歡戶型十!你呢
閱讀次數:750268次
農村6萬元建一層小別墅圖,你敢相信嗎
閱讀次數:567686次
農村5萬塊就能自建房,6套普通房子設計圖分享,你沒看錯!
閱讀次數:419410次
8套農村漂亮三間平房圖片,非常適合在農村修建!
閱讀次數:411197次
農村自建房化糞池怎么做?附方案及施工過程
閱讀次數:391783次
農村一層三間平房設計圖,告別土氣養老房,讓人忍不住點贊
閱讀次數:350581次
新農村二層樓房圖片造價12萬,挑一套回家建房吧!
閱讀次數:349126次
