
|
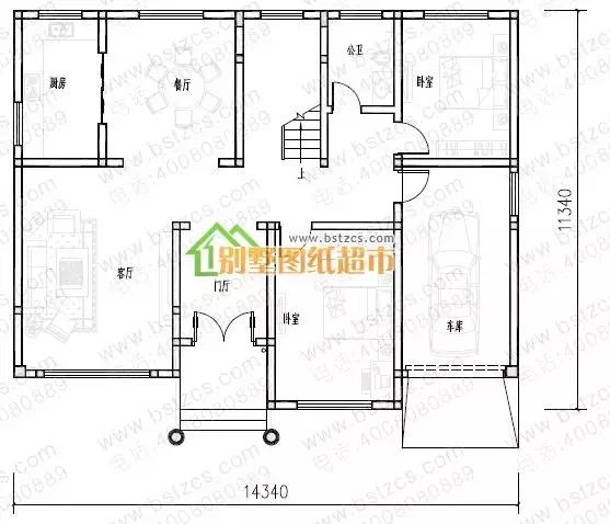
想回鄉建房的朋友,看到很多很漂亮的別墅效果圖,想建又不敢建,既擔心施工隊建不出這個效果,又覺得如果找個普普通通的造型來建,心里又不甘心。今天小編帶來5套農村小別墅效果圖和實拍圖的對比給大家參考,再也不怕找不到好戶型自建房了! 編號: DC0179 層數: 三層 結構形式: 框架結構 主體造價: 36-42萬 開間: 14.34米 進深: 14.045米 占地面積: 154.33平方米 建筑面積: 332.28平方米
一 層:客廳(中空)、臥室(附衛生間)、臥室、棋牌室、廚房、餐廳、衛生間 二 層:起居室、臥室(附衣帽間,衛生間)、2臥室、衛生間 三 層:家庭影院(附露臺)、臥室、洗衣房、露臺 實拍案例
此款案例實拍圖和效果圖一模一樣,高度還原,磚紅色和淺黃色的外墻搭配,亮麗又鮮艷,房子更顯明麗、雅致。別致的外觀造型,寬闊的窗戶設計,房子室內采光充足。白色的羅馬柱和窗套將房子的線條裝飾的十分鮮明。 編號: DC0002 層數: 二層 結構形式: 磚混結構 主體造價: 24-28萬 開間: 14.34米 進深: 11.34米 占地面積: 157.59平方米 建筑面積: 290.71平方米
一 層:門廳、客廳、2臥室、廚房、餐廳、衛生間、車庫 二 層:主臥室(附衛生間,陽臺)、臥室(附陽臺)、臥室(附書房)、臥室、棋牌室、衛生間 實拍案例
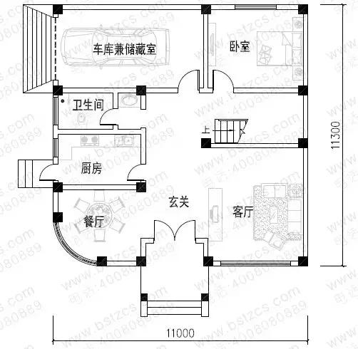
外墻采用裸色的涂料,既不浮夸又顯時尚,低調的配色典雅精致,藍色的屋頂給房子填上了一抹亮色,很好的點綴了整套房子。 編號: DC0067 層數: 三層 結構形式: 框架結構 主體造價: 25-32萬 開間: 11米 進深: 11.3米 占地面積: 120.85平方米 建筑面積: 307.63平方米
一 層: 客廳、臥室、廚房、餐廳、衛生間、車庫或儲藏室 二 層: 客廳、臥室(附衛生間)、2臥室、書房(附陽臺)、衛生間、陽臺 三 層: 2臥室(附衛生間)、露臺 實拍案例
說出來可能不信,此套別墅主體造價才花了25萬。整套房子精致又浪漫,一層墻體裝飾富有特色,黑色的窗戶和白色的窗套相互映襯,房子的二三層的護欄采用的純黑色。房子的每一部分各有特色,但整體又特別和諧! 編號: DC0221 層數: 三層 結構形式: 磚混結構 主體造價: 22-28萬 開間: 9.96米 進深: 12.96米 占地面積: 111.68平方米 建筑面積: 305.6平方米
一 層: 客廳、2臥室、廚房、餐廳、衛生間 二 層: 客廳、3臥室、書房、衛生間、陽臺 三 層: 3臥室、書房、衛生間、露臺 實拍案例
這款外觀非常漂亮,主體外觀完美的復制除了效果圖的樣子,十分的美觀大氣,建在農村賞心悅目。 編號: DC0305 層數: 三層 結構形式: 框架結構 主體造價: 45-50萬 開間: 10.946米 進深: 15.9米 占地面積: 155.35平方米 建筑面積: 480.95平方米
一 層:門廳、客廳(中空)、臥室(附衛生間)、臥室、棋牌室、廚房、餐廳、衛生間 二 層:主臥(附書房,衣帽間,衛生間,2陽臺,露臺)、2臥室、儲存間、衛生間 三 層:健身房(附露臺)、臥室(附衛生間,露臺)、2臥室、書房、衛生間、露臺、涼亭 實拍案例
八角亭是整套房子的特色和亮點,將房子歐式感完美的凸顯。藍色的玻璃更貼近大自然的色彩,素色的墻面與它相結合那堪稱是絕配,整套房子造型時尚,建在農村堪稱經典。 圖紙之家-專注農村別墅/自建房設計18年,集合國內200余位經驗豐富的設計師,被評為口碑最好的農村建筑設計公司! |

帶庭院中式二層四合院別墅設計效果圖片,方方正正
占地:404平方米
150平米田園風格二層別墅設計圖紙,沉穩大氣有內涵
占地:150平方米
開間4米多的農村三層別墅設計圖,一開間三層自建房
占地:66.65平方米
13.5米乘11米兩層半別墅設計圖,中式與現代相融合
占地:148.5平方米
農村二層仿古尖屋頂別墅設計圖,外觀古樸耐看
占地:87平方米左右
三層奢華歐式別墅圖片及全套設計圖,帶地下室和車庫
占地:208平方米左右
兄弟共建一層雙拼平房設計圖,省錢省心又可相互照應
占地:177.27平方米
18米寬一層中式小院設計圖,三合院戶型布局寬敞大氣
占地:232.75平方米
新農村二層小別墅全套設計圖紙(含外觀效果圖)
占地:85.6平方米
農村25萬別墅款式二層自建房設計圖,外觀簡約大氣
占地:多種戶型
130平方米歐式實用農村二層樓別墅圖紙帶外觀圖12X13米
占地:132平方米
200平方米別墅設計圖紙(含效果圖),農村別墅方案精選
占地:200.26平方米
中式四合院農村自建房設計圖,白墻黛瓦,四水歸堂
占地:137.72平方米
簡約實用農村自建房戶型圖,美觀經濟又通透,南北通透住得爽!
占地:160.6平方米
110平方米二層自建小別墅設計CAD施工圖紙帶效果圖,12x13米
占地:110平方米
18X12米農村二層溫馨小別墅設計圖,美式風格
占地:203平方米
帶小院七字形一層自建房戶型設計圖,平屋頂圖紙
占地:201.08平方米
雅致的鄉下二層蓋別墅設計圖紙,造價35萬左右
占地:178平方米
兩層三間農村自建房圖,125平有7間臥室,全家人都能住得下
占地:125.34平方米
帶小院新農村房屋設計圖紙,三層別墅推薦
占地:115平方米
推薦:10套新農村自建房設計圖,2026年最新設計
閱讀次數:4825737次
100套鄉村別墅圖片大全,2026年最新設計
閱讀次數:2492203次
6款農村蓋一層平房的設計圖,10萬元就能建起來
閱讀次數:1852637次
這11個一層農村自建房別墅火爆了朋友圈!我最喜歡戶型十!你呢
閱讀次數:750268次
農村6萬元建一層小別墅圖,你敢相信嗎
閱讀次數:567686次
農村5萬塊就能自建房,6套普通房子設計圖分享,你沒看錯!
閱讀次數:419410次
8套農村漂亮三間平房圖片,非常適合在農村修建!
閱讀次數:411197次
農村自建房化糞池怎么做?附方案及施工過程
閱讀次數:391783次
農村一層三間平房設計圖,告別土氣養老房,讓人忍不住點贊
閱讀次數:350581次
新農村二層樓房圖片造價12萬,挑一套回家建房吧!
閱讀次數:349126次
