
|
現代農村別墅的比傳統的自建房好看的點在于造型比較豐富,細節之處的點綴之筆,整體上的和諧統一。任何一處的修飾多一筆多余,少一筆不足,剛剛好的設計正是我們對農村自建房的審美追求,就拿下面這2棟別墅來說,你覺得是有車庫好看還是無車庫好看?
一層入戶便是門廳,左邊車庫右邊客廳,進門就能感受到滿滿的人氣,廚房和餐廳在后面,設有我一間臥室帶衛生間。
二層客廳挑空,式室內通透明亮,一個套間有臥室、衣帽間衛生間陽臺和露臺,相當的齊全,這應該是戶主住的場所。
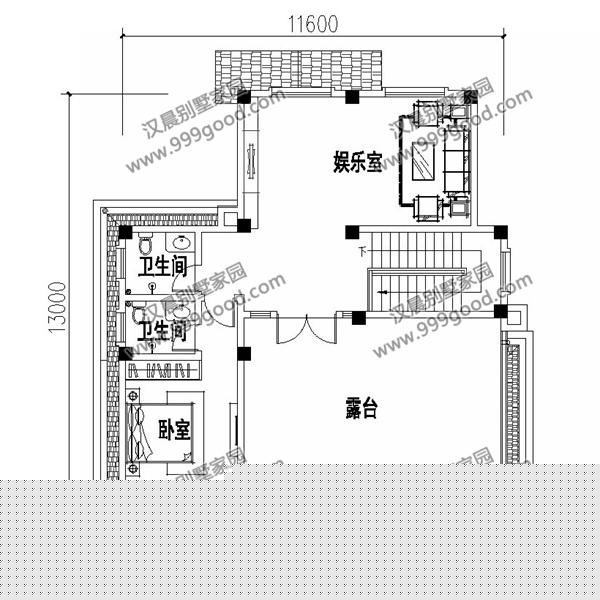
三層娛樂室和露臺給室內很大的想象空間,可以任意塑造成其他的功能區間。
這棟別墅整體外觀看是將左右互換了一下,再就是車庫的差別。將臥室改成了臥室,一層有兩間臥室,可以作為老人房和客房或儲藏室。
靛藍的屋頂與天空一色,渾然天成,露臺加上老虎窗加強氣勢,歐式的門廳窗套以及檐托使別墅的造型錦上添花。
左邊是客廳,右邊臥室,區間規劃整齊清晰。入戶臺階,下雨天也避免積水,樓梯等設計的都比較私密。
二層臥室數量比較多,一間公用的書房和客廳相得益彰,四面通風采光都比較好。
三層一間棋牌室,雖然放在了頂層,平時年輕人都不在老家,也就過年的時候派上用場,屬于使用率不高的設施。
關注本頭條號,更多經典別墅戶型和農村建房案例分享! 圖紙之家-專注農村別墅/自建房設計18年,集合國內200余位經驗豐富的設計師,被評為口碑最好的農村建筑設計公司! |

農村二層別墅優選設計圖,戶型小巧精致,顏值與實用并存!
占地:95.25平方米
新農村田園風格兩層半別墅設計圖,外觀造型非常漂亮
占地:147.8平方米
10米×12米30萬以內農村建房三層豪華歐式別墅圖,處處顯品味
占地:120平方米
回老家蓋房就選這款新中式一層設計,16乘8米大小正合適
占地:130.1平方米
小開間三層新中式小別墅設計圖,外觀圖優雅大氣,讓人心動!
占地:103.18平方米
面寬8米多的三層農村別墅設計圖,小開間宅基地推薦
占地:112.82平方米
鄉村中式四合院二層別墅設計圖,中式韻味十足
占地:223平方米左右
四間兩層別墅房屋設計圖,外觀效果圖好看
占地:235平方米
10萬內2層小洋樓設計圖,平屋頂,戶型設計合理
占地:90平方米
農村三間三層豪宅設計圖,自建別墅推薦戶型,帶地下室
占地:170平方米
一層農村必蓋戶型設計方案,養老自住兩相宜,經濟實惠又耐用!
占地:150.36平方米
11×10米農村二層別墅圖,百平占地經典實用舒適大氣
占地:103.47平方米
簡約大氣四開間二層自建房設計圖,16x10米,經典耐看高顏值
占地:160平方米
170平米自建三層房屋別墅設計圖紙及效果圖
占地:170平米
新款240平方米三層雙拼別墅設計圖,歐式兄弟雙拼圖片
占地:240平方米
帶電梯高端四層別墅房屋設計圖,外觀圖大氣、上檔次
占地:220平方米
一層帶閣樓的自建別墅設計圖,省錢又實用
占地:166平方米
30萬左右的新農村自建三層別墅施工設計圖紙及效果圖
占地:148平方米
占地120平米清新脫俗簡單二層別墅設計方案,含效果圖
占地:119.01平方米
150平米左右農村二層房屋設計圖,造價25萬左右漂亮實用
占地:150平方米
推薦:10套新農村自建房設計圖,2026年最新設計
閱讀次數:4825737次
100套鄉村別墅圖片大全,2026年最新設計
閱讀次數:2492203次
6款農村蓋一層平房的設計圖,10萬元就能建起來
閱讀次數:1852637次
這11個一層農村自建房別墅火爆了朋友圈!我最喜歡戶型十!你呢
閱讀次數:750268次
農村6萬元建一層小別墅圖,你敢相信嗎
閱讀次數:567686次
農村5萬塊就能自建房,6套普通房子設計圖分享,你沒看錯!
閱讀次數:419410次
8套農村漂亮三間平房圖片,非常適合在農村修建!
閱讀次數:411197次
農村自建房化糞池怎么做?附方案及施工過程
閱讀次數:391783次
農村一層三間平房設計圖,告別土氣養老房,讓人忍不住點贊
閱讀次數:350581次
新農村二層樓房圖片造價12萬,挑一套回家建房吧!
閱讀次數:349126次
