
|
周圍人家都建起了別墅,看著眼紅,但是看了下自己那只有100平米的地,再看看他們的地,只能暗自神傷。。。。。。沒關系,下面就由我來給你推薦幾款精致別墅,100平地也能建起令人羨慕不已的別墅,一般人我還不告訴他! 戶型一
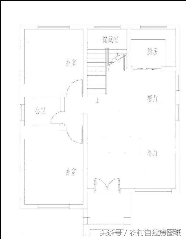
樓層:兩層 開間:8.9米 進深:10.3米 占地面積:96.57平方米 建筑面積:191.04平方米 結構形式:磚混
精致的建筑風格,擁有4個臥室并且還有露臺,完全能滿足一個家庭的需要,并且在這款別墅樓梯處,下方還有儲物室,將空間完全利用,只需15萬,讓你擁有一個精致的別墅。 戶型二
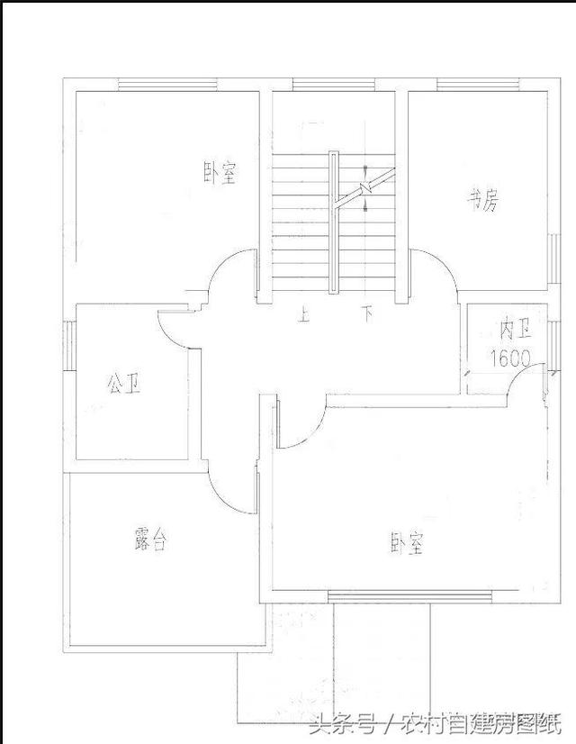
樓層:兩層 開間:8米已已已已已經7y121 進深:11.3米 占地面積:99.64平方米 建筑面積:203.32平方米 結構形式:磚混
這款別墅,雖說是小戶型,占地不過100平米,但是他帶給人的,卻是一種高端大氣的感覺,良好的采光設計,讓陽光充滿整個房屋,給人暖意十足。 看了前面兩種是不是覺得其實100平米也能建出如此精致的別墅?什么,還嫌層數不夠!好,這可是你逼我出大招了! 戶型三
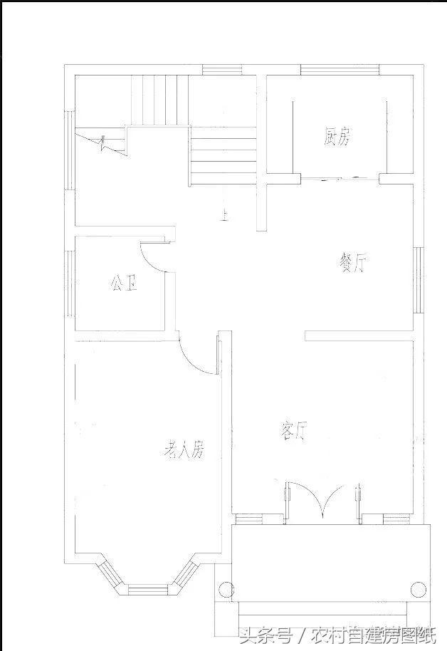
樓層:三層 開間:11.7米 進深:9.2米 占地面積:100平方米 建筑面積:240.11平方米 結構形式:磚混
擁有3層樓,占地只需100平米,擁有堂屋和大露臺,是不是給你一種眼前一亮的感覺。 誰說100平米沒法建好房,有了這幾個設計,是不是更有底氣,我不僅要用這100平米建好房,而且,我還要建三層!讓別人羨慕去吧! 圖紙之家-專注農村別墅/自建房設計18年,集合國內200余位經驗豐富的設計師,被評為口碑最好的農村建筑設計公司! |

12米面寬一層農村別墅設計圖,實用又舒適
占地:110.41平方米
90平米三層農村房子設計圖,簡單大氣實用
占地:94.28平方米
四層(三層半)豪華歐式別墅房屋設計圖,外觀高端、大氣
占地:150平方米
新農村復試兩層半樓房設計圖,帶大露臺,簡單經濟實用大氣
占地:190平方米
頂配三拼三層別墅設計,獨立入戶+共享庭院,兄弟三家共享奢華
占地:367.44平方米
復式、旋轉樓梯三層別墅設計方案圖,戶型合理、實用
占地:138平方米
230平方農村雙拼別墅設計圖,26x11米自建房屋戶型
占地:230平方米
農村二層復式小別墅設計,進深12米,農村建房最受歡迎的款
占地:149.096 平方
農村四間三層豪華別墅設計方案圖,造型輕奢雅致
占地:200平方米
10米×13米最好看的農村三層樓房圖,客廳中空
占地:124平方米
一眼就驚艷的二層新中式別墅設計圖,大氣做夢都想回家蓋棟!
占地:128.58平方米
一層半復式帶閣樓別墅設計圖,含外觀圖片
占地:150平方米
200平米二層自建房別墅設計圖,外觀漂亮布局實用
占地:207.09平方米
小戶型三層別墅設計圖,戶型經典,外觀精致、美觀
占地:95平方米
20萬農村一層半小洋樓圖,自建別墅設計方案推薦
占地:155平方米
120平方米新農村二層自建房屋設計圖紙大全14x9米
占地:120平方米
四間兩層實用簡約的住房設計圖,毛坯24萬,農村建正合適
占地:159.48平方米
新農村四層房屋設計圖紙,高端大氣,占地150平方米
占地:150平方米
簡單經濟一層自建養老房,12米乘9.5米,溫暖舒適施工簡單
占地:103.2平方米
面寬11米超實用的農村一層別墅設計圖,南北通透造價不高
占地:110.47平方米
推薦:10套新農村自建房設計圖,2026年最新設計
閱讀次數:4825737次
100套鄉村別墅圖片大全,2026年最新設計
閱讀次數:2492203次
6款農村蓋一層平房的設計圖,10萬元就能建起來
閱讀次數:1852637次
這11個一層農村自建房別墅火爆了朋友圈!我最喜歡戶型十!你呢
閱讀次數:750268次
農村6萬元建一層小別墅圖,你敢相信嗎
閱讀次數:567686次
農村5萬塊就能自建房,6套普通房子設計圖分享,你沒看錯!
閱讀次數:419410次
8套農村漂亮三間平房圖片,非常適合在農村修建!
閱讀次數:411197次
農村自建房化糞池怎么做?附方案及施工過程
閱讀次數:391783次
農村一層三間平房設計圖,告別土氣養老房,讓人忍不住點贊
閱讀次數:350581次
新農村二層樓房圖片造價12萬,挑一套回家建房吧!
閱讀次數:349126次
