
|
建兩棟房子太貴?宅基地也不夠大?那還不如建一個雙拼別墅,即漂亮也實用,關鍵是花費也沒建兩棟房子多。雙拼別墅,逐漸成為近年來建房的新寵,在外觀上它左右對稱,四平八穩,貼合我國的傳統審美,在使用屬性上,適合家中兄弟二人建造,既相互關照又相互獨立,是和諧大家庭的最優選擇之一。小編這里有套雙拼別墅可以與大家分享一下。
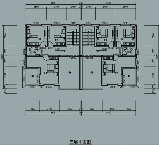
本方案為穩重大氣的三層雙拼別墅,戶型很合理,面積適中,帶車庫和屋頂花園,設計師推薦雙拼戶型。開間:19.04米,進深:11.00米【含門廳11.82米】 建筑層數:三層;建筑高度:9.6米(不帶坡屋頂);
設計功能: 一層:客廳、廚房兼餐廳、臥室、衛生間、車庫、儲藏室; 二層:小客廳、臥室x3、衛生間、露臺、陽臺; 三層:主臥(帶衣帽間)、臥室x2、衛生間、露臺x2;
立面圖:
![]() 圖紙之家-專注農村別墅/自建房設計18年,集合國內200余位經驗豐富的設計師,被評為口碑最好的農村建筑設計公司! |

8×12米農村三層別墅自建房設計圖,小開間精選方案
占地:103平方米
復式客廳挑空三層別墅設計圖,帶外觀效果圖片,推薦
占地:150平方米
新中式別墅一層自建房設計,戶型實用緊湊
占地:170.54平方米
230平方米新農村二層自建別墅設計圖紙帶外觀圖,20X11米
爆款120平米三層農村別墅房屋設計圖,室內布局功能齊全,色彩搭
占地:120平方米
簡約L型一層平房自建房設計圖,經濟實用
占地:145.283平方米
占地110平米兩層半農村房子設計圖,簡單實用
占地:110.25平方米
新中式三層雙拼別墅設計圖及效果圖,中式大氣風格
占地:235.26平方米
三層帶車庫農村別墅設計圖紙(含外觀效果圖)
占地:147.7平方米
人字坡房屋一層別墅設計圖,簡約低調超實用,、
占地:101.17平方米
農村一層半房屋設計圖,帶外觀效果圖,外觀時尚
占地:155平方米
兄弟共建一層雙拼平房設計圖,省錢省心又可相互照應
占地:177.27平方米
鄉村二層簡歐小戶型別墅圖設計,占地90平方米左右
占地:92.12平方米
四間兩層實用簡約的住房設計圖,毛坯24萬,農村建正合適
占地:159.48平方米
130平方米現代簡約農村兩層樓房施工設計圖紙帶外觀圖
占地:126平方米
建房老師傅力薦!這塊二層簡歐設計圖,花錢少、顏值高,必火
占地:131.65平方米
堂屋共用的三層雙拼別墅設計圖,總占地面積245平米
占地:245平方米
230平(單戶115平)雙拼別墅房屋設計圖及效果圖大全
占地:230平方米
200平方米別墅設計圖紙(含效果圖),農村別墅方案精選
占地:200.26平方米
面寬8米的新農村三層自建房設計圖平屋頂,全套cad圖紙+效果圖
占地:115平方米
推薦:10套新農村自建房設計圖,2026年最新設計
閱讀次數:4825737次
100套鄉村別墅圖片大全,2026年最新設計
閱讀次數:2492203次
6款農村蓋一層平房的設計圖,10萬元就能建起來
閱讀次數:1852637次
這11個一層農村自建房別墅火爆了朋友圈!我最喜歡戶型十!你呢
閱讀次數:750268次
農村6萬元建一層小別墅圖,你敢相信嗎
閱讀次數:567686次
農村5萬塊就能自建房,6套普通房子設計圖分享,你沒看錯!
閱讀次數:419410次
8套農村漂亮三間平房圖片,非常適合在農村修建!
閱讀次數:411197次
農村自建房化糞池怎么做?附方案及施工過程
閱讀次數:391783次
農村一層三間平房設計圖,告別土氣養老房,讓人忍不住點贊
閱讀次數:350581次
新農村二層樓房圖片造價12萬,挑一套回家建房吧!
閱讀次數:349126次
