
|
在農村里建房會有限高,但有的家庭好幾口人一起居住,臥室的需求也就大了,不能往上蓋,就可以利用地下的面積,建個地下室,就有更多實用空間。今天推薦的這款別墅,二層帶地下室,造價70萬左右,外觀別致大方,內部空間建有娛樂室、健身房、影音室等,臥室眾多,布局舒適,十分適合多人口的大家庭修建。
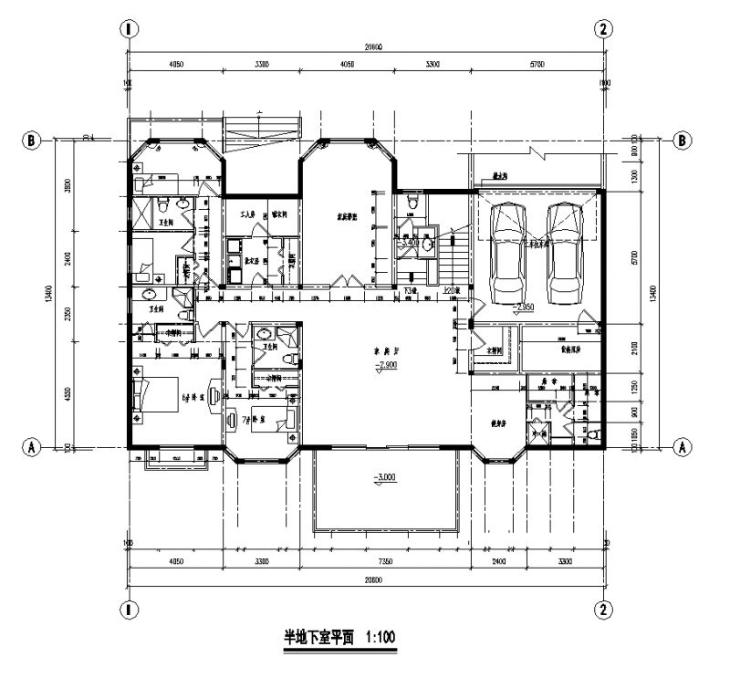
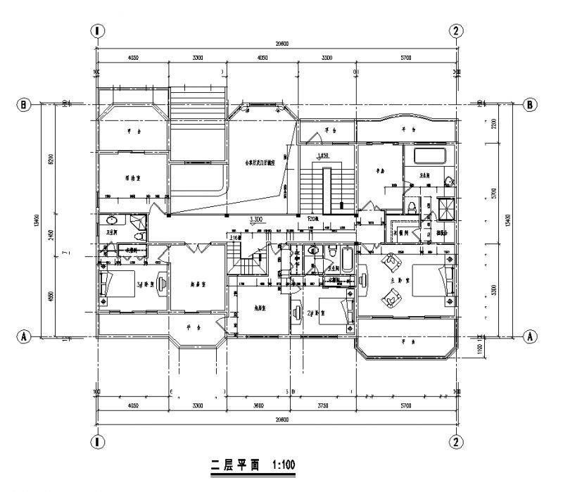
▲圖片編號:18081501 開間:20.6米 進深:13.4米 地下室面積:250.78平方米 首層面積:246.97平方米 建筑面積:682.4平方米 建筑層數:2層+半地下層 建筑高度:9.2米(含屋頂) 屋頂形式:坡屋頂 建筑結構:框架結構 主體造價:70萬(僅供參考)
本戶型為單家獨院式,二層帶地下室別墅,開間20.6米、進深13.4米,外墻采用比較大氣沉穩的色系,造型精致、美觀大方,入戶設有臺階,上有露臺,下有地下室,整體通風采光良好,絕對是萬里挑一的好戶型!
半地下室設有家庭廳、設備用房、健身房、淋浴室、桑拿室、衣帽間、臥室。地下室為休閑起居用,家庭廳面積大,很適合農村一大家子齊聚,有地方交流;臥室有4間,可以提供給留宿的客人;車庫是二車位的,不用擔心空間小;健身房和影音室,豐富日常生活。
一層設有門廳、家庭廳、會客廳、早餐廳、正餐廳、廚房、臥室、書房、衛生間、衣帽間、平臺。入戶有門廳,避免開門見山;分有會客廳和家庭廳,可以根據來客不同分開使用;餐廳有兩個,適合農村聚餐的時候;一層的臥室帶獨衛和衣帽間,可以給家中父母居住。
二層設有會客廳及門廳挑空、起居室、活動室、臥室、書房、衣帽間、衛生間、平臺。會客廳和門廳采用挑空設計,美觀大氣、視野開闊;書房外連平臺,光線充足,適合辦公學習;主臥室配套齊全,私密性良好;2間側臥帶起居室、獨衛,居住者可得到很好的休息;多處有平臺,可以通風透氣,也有更多的空間晾曬衣物。
圖紙之家-專注農村別墅/自建房設計18年,集合國內200余位經驗豐富的設計師,被評為口碑最好的農村建筑設計公司! |

140平方米現代偏中式實用型三層房屋設計圖紙,新農村建房推薦
占地:142平方米
農村一層7字型平房別墅設計圖,“L”自行戶型,外觀簡約低調
占地:213.39平方米
農村自建三層別墅設計圖,開間17米進深13米,外觀對稱設計
占地:187.6平方米
小型新中式二層小別墅圖紙設計方案,好看造價不高
占地:232.98平方米
中國最好看的二層農村房子圖片及施工圖紙,20萬現代風格
占地:130平方米
150平方米二層別墅設計及效果圖展示下載,17X10米
占地:150平方米
農村兩間兩層樓房設計圖,造價15萬左右,獨立的廚房設計,干凈
占地:95平方米
新農村歐式時尚二層別墅設計圖紙,120平方米自建房
占地:多種戶型
經典小戶型二層新農村房屋設計圖紙,客廳中空,造價20萬
占地:94平方米
大氣新中式三層雙拼別墅設計圖及外觀,總面寬20米多
占地:205.76平方米
農村三層復式樓房住宅設計圖,私人別墅設計
占地:165平方米
120平方米新農村四層別墅設計圖紙12X10米50萬以內
占地:120平方米
2026二層農村新款別墅戶型圖,占地不到110平米
占地:110平方米
100平方三層樓房設計圖及圖片,戶型設計簡約時尚
占地:100平方米
帶獨立廚房的二層自建房設計圖,大戶型方案
占地:233平方米
140平方米新農村二層自建平屋頂房屋設計圖紙帶外觀效果圖
占地:140平方米左右
時尚的農村二層別墅圖紙設計,現代風格,簡約的外觀
占地:152平方米左右
鄉村典型自建房中式二層四合院別墅設計圖,左右對稱設計
占地:430平方米
歐式兩層別墅樓房設計圖紙施工方案,高端豪華外觀圖片
占地:138平方米
占地130平三層現代別墅設計圖方案,帶電梯和地下室設計
占地:134.75平方米
推薦:10套新農村自建房設計圖,2026年最新設計
閱讀次數:4825737次
100套鄉村別墅圖片大全,2026年最新設計
閱讀次數:2492203次
6款農村蓋一層平房的設計圖,10萬元就能建起來
閱讀次數:1852637次
這11個一層農村自建房別墅火爆了朋友圈!我最喜歡戶型十!你呢
閱讀次數:750268次
農村6萬元建一層小別墅圖,你敢相信嗎
閱讀次數:567686次
農村5萬塊就能自建房,6套普通房子設計圖分享,你沒看錯!
閱讀次數:419410次
8套農村漂亮三間平房圖片,非常適合在農村修建!
閱讀次數:411197次
農村自建房化糞池怎么做?附方案及施工過程
閱讀次數:391783次
農村一層三間平房設計圖,告別土氣養老房,讓人忍不住點贊
閱讀次數:350581次
新農村二層樓房圖片造價12萬,挑一套回家建房吧!
閱讀次數:349126次
