
|
別墅好不好問你鄰居就知道,雖然是句玩笑話但也有點道理,兩家人房子挨在一起不得不讓人產生比較,造價差距太大沒什么好說的,可差不多的造價建出來的結果也同樣大相徑庭,在農村尋常家庭里,二層別墅造價大概控制在20到30w之間,三層別墅大概在30到40w之間,排除非要建豪華的和宅基地過大的,款式選擇上這價格段上的不要太多了。今天帶來的這款別墅造價35萬的三層別墅,可比起40w左右的都不多讓,大氣美觀,室內設計上更是把你能想到美好家的元素全設計上,一起來看看吧!
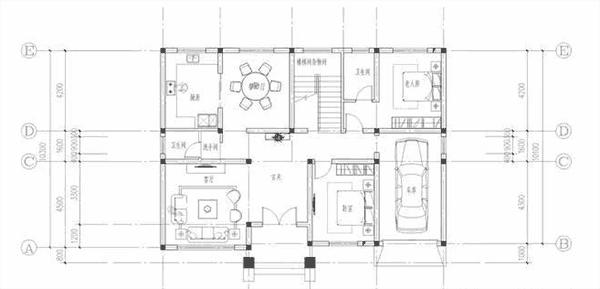
三種配色方案,任你選擇,外形也是層次感設計感一流,大露臺小陽臺的設計實用性美觀度都值得點贊,在村里建一套這樣的小別墅著實抓人眼球,完全不懼對比。開間:14.7,進深:10.3米,占地面積:152.2平方米,建筑面積:429.4平方米。
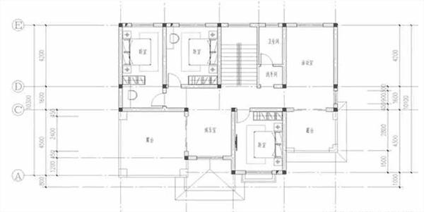
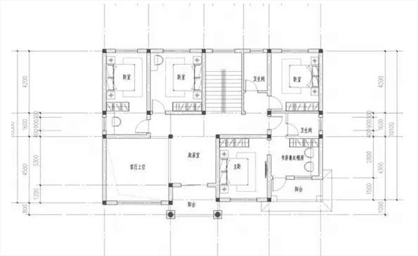
平面設計也是簡單實用,分區明確,一定程度上節約了造價,9室的設計更是霸道,主臥搭配獨立衛浴,衣帽間書房,方便主人家生活。三樓除了設計有臥室露臺還搭配了娛樂間、活動室,提升生活情趣。
這款三層別墅看的是不是直接想告老還鄉,你喜歡么? 圖紙之家-專注農村別墅/自建房設計18年,集合國內200余位經驗豐富的設計師,被評為口碑最好的農村建筑設計公司! |

農村三層帶地下室住宅設計圖及圖片,房內設計了兩個套間
占地:210平方米
大氣農村一層自建別墅方案,絕對讓人羨慕的“平房”
占地:158.39平方米
10米×13米最好看的農村三層樓房圖,客廳中空
占地:124平方米
一層帶閣樓農村別墅設計圖,多得一層可變空間,太值了!
占地:165.89平方米
一層5間歐式平房小洋樓建筑設計圖紙,大戶型一層別墅戶型
占地:216平方米
大戶型三層別墅設計圖,高貴大氣,占地面積將近300平
占地:273.33平方米
古典韻味的四層房屋設計圖,占地140平米左右,這樣的外觀配上紅
占地:140平方米
二層精美偏法式風格別墅設計圖,不但顏值高,品質還高
占地:154.17平方米
一層農村必蓋戶型設計方案,養老自住兩相宜,經濟實惠又耐用!
占地:150.36平方米
新農村自建房設計圖及效果圖大全,新農村住宅精選
占地:112平方米
農村兩開間農村別墅設計圖,典雅大氣,完全不輸大戶型
占地:116.26平方米
125平方米新農村二層房屋施工設計CAD圖紙加效果圖
占地:125平方米
自建一層農村別墅圖,經濟實用新選擇,建房必備參考戶型!
占地:142.88平方米
230平方米豪華歐式二層別墅CAD設計圖紙帶外觀效果圖,21.6×15米
占地:236平方米
160平方米二層平屋頂房屋設計圖紙及效果圖17x11米
占地:164平方米
三層歐式自建房別墅設計方案,11x11米洋氣實用,飽受大家好評
占地:127平方米
建完被夸半年!現代風三層農村別墅,顏值抗打還百看不厭
占地:136.01平方米
一層農房別墅設計圖紙,140平方米,面寬15米
占地:140平方米
120平方米農村漂亮實用的兩層別墅設計圖紙,含外觀圖片
占地:120平方米
150平米簡單大方的三層農村自建房設計圖,坡層頂,色彩鮮明,布
占地:150平方米
推薦:10套新農村自建房設計圖,2026年最新設計
閱讀次數:4825737次
100套鄉村別墅圖片大全,2026年最新設計
閱讀次數:2492203次
6款農村蓋一層平房的設計圖,10萬元就能建起來
閱讀次數:1852637次
這11個一層農村自建房別墅火爆了朋友圈!我最喜歡戶型十!你呢
閱讀次數:750268次
農村6萬元建一層小別墅圖,你敢相信嗎
閱讀次數:567686次
農村5萬塊就能自建房,6套普通房子設計圖分享,你沒看錯!
閱讀次數:419410次
8套農村漂亮三間平房圖片,非常適合在農村修建!
閱讀次數:411197次
農村自建房化糞池怎么做?附方案及施工過程
閱讀次數:391783次
農村一層三間平房設計圖,告別土氣養老房,讓人忍不住點贊
閱讀次數:350581次
新農村二層樓房圖片造價12萬,挑一套回家建房吧!
閱讀次數:349126次
