
|
現在,在農村里建房主要是以二層、三層為主,但是五層別墅,在南方也是比較普遍的,占地面積小,但是住房總面積會大很多,如果你家那里不限高,你也可以建一棟這樣的別墅哦。一起來看看今天的這棟暖暖的別墅吧。 別墅效果圖: 這棟現代別墅外立面采用米白和暖橘色搭配,溫暖而又時尚洋氣,多窗設計,保證每層,室內都有良好的采光。別墅的布局一層是大廳,二層~五層是住家,分別是一層一套獨立的住宅,可以同時4家人住,解決家庭兄弟姐妹多的家庭住家問題,而且還互不干擾,也可以一套自己住,另外幾套出租出去,3套房子一年的租金也是很可觀的。
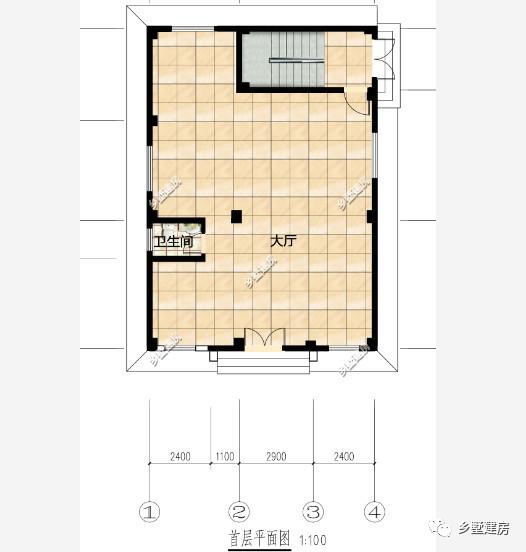
基礎信息 占地尺寸:9×12.7米 占地面積:128.36平方米 建筑面積:700.65平方米 結構類型:框架結構 建筑層數:5層 建筑高度:17.2米 主體造價:71萬左右 一層平面圖: 設有:大廳、衛生間、樓梯,一層入戶是大廳,西側是一個小衛生間,北邊是樓梯位置,旁邊還開了側門,方便出入。如果是住家,大廳可以作為娛樂室,臺球室、棋牌室、健身房,如果是出租,可以放上接待臺、組合沙發,作為接待前臺,和客戶休憩的地方。
二層~四層平面圖: 設有:主臥、次臥、衛生間、廚房、餐廳、客廳、陽臺,上樓梯后,入戶是餐廳和廚房,南側是主臥和客廳位置,采光更好,陽臺可以晾曬衣物,作為客廳的一個延伸,主臥和次臥之間是一個衛生間。整個戶型方正,布局合理,且所有空間都是明亮的,無暗房。
五層平面圖: 設有:主臥、書房、衛生間、廚房、餐廳、客廳、陽臺,上樓梯后,入戶是客廳、餐廳和廚房,成柔性連接,南側是主臥和書房位置,采光更好,陽臺可以晾曬衣物,作為主臥的一個延伸,主臥套內設有書房,衛生間也設置在套內,方便主人生活,提高主人生活品質。整個戶型方正,布局合理,且所有空間都是明亮的,無暗房。
今日分享:
![]() 圖紙之家-專注農村別墅/自建房設計18年,集合國內200余位經驗豐富的設計師,被評為口碑最好的農村建筑設計公司! |

省錢美觀一層自建房子設計圖,父母養老住很適合
占地:117平方米
農村13萬元二層小樓圖,簡單易建,造價低
占地:110平方米
現代三層農村房屋設計圖紙及效果圖,帶全套cad建筑圖
占地:95平方米
簡單二層農村別墅設計圖,占地適中,簡約造型,實用又經濟!
占地:128.4平方米
復式200平米三層樓房設計圖紙,大露臺還有健身房和書房
占地:200平方米
160平方米農村二層四合院別墅設計圖及外觀圖片
占地:158平方米
中國最美的四合院別墅設計圖方案,復式挑空客廳戶型
占地:343.57平方米
農村二層復式小別墅設計,進深12米,農村建房最受歡迎的款
占地:149.096 平方
130平四間二層小洋樓設計圖,含外觀圖片
占地:130平方米
帶架空層的農村一層小別墅設計圖,大氣穩重又很實用
占地:123.5平方米
經典中式三合院設計,一層空間實用大氣,輕松實現理想家園!
占地:160.53平方米
30萬左右的新農村自建三層別墅施工設計圖紙及效果圖
占地:148平方米
漂亮的農村三層小樓房設計圖,簡單大氣,帶車庫
占地:150平方米
農村七字形獨棟一層別墅設計圖,設計感十足
占地:274.51平方米
一眼就驚艷的二層新中式別墅設計圖,大氣做夢都想回家蓋棟!
占地:128.58平方米
農村二層半新中式小別墅設計圖(帶閣樓層),二層半自建房戶型
占地:144平方米
農村三間一層別墅設計圖,經濟實用還好看
占地:139.56平方米
13.5米乘11米兩層半別墅設計圖,中式與現代相融合
占地:148.5平方米
面寬14.5米三層獨棟別墅設計圖,經典設計,大氣之作
占地:123.85平方米
新農村三層房屋住宅設計圖紙大全(含效果圖)
占地:122平方米
推薦:10套新農村自建房設計圖,2026年最新設計
閱讀次數:4825737次
100套鄉村別墅圖片大全,2026年最新設計
閱讀次數:2492203次
6款農村蓋一層平房的設計圖,10萬元就能建起來
閱讀次數:1852637次
這11個一層農村自建房別墅火爆了朋友圈!我最喜歡戶型十!你呢
閱讀次數:750268次
農村6萬元建一層小別墅圖,你敢相信嗎
閱讀次數:567686次
農村5萬塊就能自建房,6套普通房子設計圖分享,你沒看錯!
閱讀次數:419410次
8套農村漂亮三間平房圖片,非常適合在農村修建!
閱讀次數:411197次
農村自建房化糞池怎么做?附方案及施工過程
閱讀次數:391783次
農村一層三間平房設計圖,告別土氣養老房,讓人忍不住點贊
閱讀次數:350581次
新農村二層樓房圖片造價12萬,挑一套回家建房吧!
閱讀次數:349126次
