
|
40萬2廳7臥三層別墅設計圖,車庫+旋轉樓梯+挑空客廳+套間+落地窗 本套三層別墅設計圖高貴大氣,外觀設計豐富,有多面體結構,門廊,陽臺、大露臺、坡屋頂,功能特色方面,有車庫、旋轉樓梯、挑空客廳、臥室套間、多個落地窗等,戶型美觀實用,高低錯落,視覺效果極佳。
效果圖 層數:三層 開間:13.4米 進深:14.5米 首層占地面積:158.27平方米 總建筑面積:388.34平方米 結構形式:框架結構 主體造價:40萬 功能設計
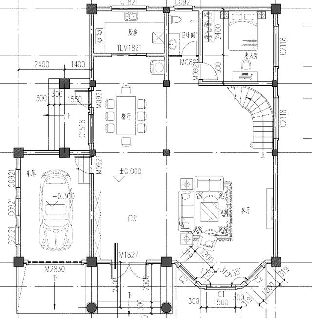
一層平面圖 一層:車庫、門廳、挑空客廳、廚房、餐廳、老人房、公衛
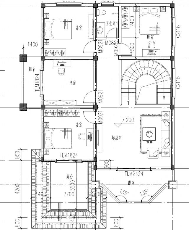
二層平面圖 二層:書房、臥室(帶陽臺)、臥室×2、公衛
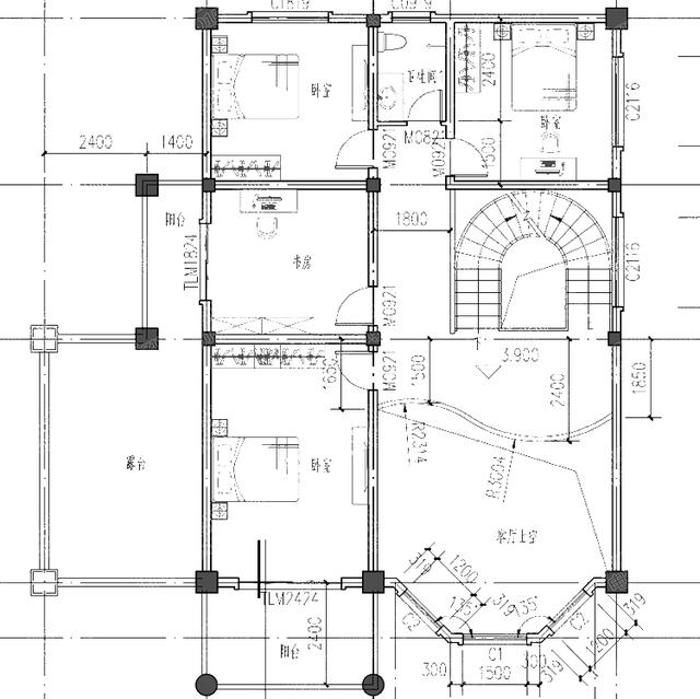
三層平面圖 三層:起居室、臥室(帶露臺)、臥室×2、公衛、書房 圖紙之家-專注農村別墅/自建房設計18年,集合國內200余位經驗豐富的設計師,被評為口碑最好的農村建筑設計公司! |

復式樓房二層農村別墅圖,村里建一棟絕對人人都羨慕
占地:130.2平方米
140平方米清新別致新農村兩層房屋設計圖紙大全12x13米
占地:140平方米
農村一層小別墅設計圖,經濟大氣,16米乘9米
占地:124.12平方米
平屋頂12米寬別墅三層設計圖,平頂照樣建的漂亮
占地:129.6平方米
帶地下室三間二層農村自建房設計圖,現代平屋頂設計
占地:99.98平方米
三層歐式自建房別墅設計方案,11x11米洋氣實用,飽受大家好評
占地:127平方米
大戶型美觀一層平房自建房設計圖,面寬19米左右
占地:245.1平方米
農村最好看兩層小樓圖及全套CAD施工圖紙,新中式風格,簡潔大氣
占地:150平方米
現代二層樓房圖片造價25萬,含全套設計圖,風格獨特
占地:多戶型可選
新農村小洋樓三層別墅戶型設計圖,開間9米,造價25萬
占地:94平方米
大面寬一層別墅設計圖紙,新中式風格兩款戶型
占地:多戶型可選
農村三間一層別墅設計圖,經濟實用還好看
占地:139.56平方米
二層平頂別墅設計圖,漂亮經濟實用二層農村小別墅最新房屋設計
占地:多種戶型
新農村兩層樓房設計圖,占地110平米,戶型簡單實用
占地:110平方米
農村一層帶小院房屋設計圖,帶院子一層自建房別墅戶型圖
占地:161.16平方米
120平方米農村經典二層房屋設計圖紙,造型精致好看
占地:121平方米
農村四間二層別墅設計方案圖,外觀精致、時尚
占地:152平方米
農村25萬別墅款式二層自建房設計圖,外觀簡約大氣
占地:多種戶型
10X13米新款歐式三層別墅樓房設計圖,外觀清新明亮
占地:140平方米
好看又簡單二層仿古中式四合院樓房設計圖
占地:352平方米
推薦:10套新農村自建房設計圖,2026年最新設計
閱讀次數:4825737次
100套鄉村別墅圖片大全,2026年最新設計
閱讀次數:2492203次
6款農村蓋一層平房的設計圖,10萬元就能建起來
閱讀次數:1852637次
這11個一層農村自建房別墅火爆了朋友圈!我最喜歡戶型十!你呢
閱讀次數:750268次
農村6萬元建一層小別墅圖,你敢相信嗎
閱讀次數:567686次
農村5萬塊就能自建房,6套普通房子設計圖分享,你沒看錯!
閱讀次數:419410次
8套農村漂亮三間平房圖片,非常適合在農村修建!
閱讀次數:411197次
農村自建房化糞池怎么做?附方案及施工過程
閱讀次數:391783次
農村一層三間平房設計圖,告別土氣養老房,讓人忍不住點贊
閱讀次數:350581次
新農村二層樓房圖片造價12萬,挑一套回家建房吧!
閱讀次數:349126次
